EasyManua.ls Logo

CEA MAXI 505 - Page 81

Default Icon
Print Icon
To Next Page IconTo Next Page
To Next Page IconTo Next Page
To Previous Page IconTo Previous Page
To Previous Page IconTo Previous Page
Loading...
81
2101A788
IT
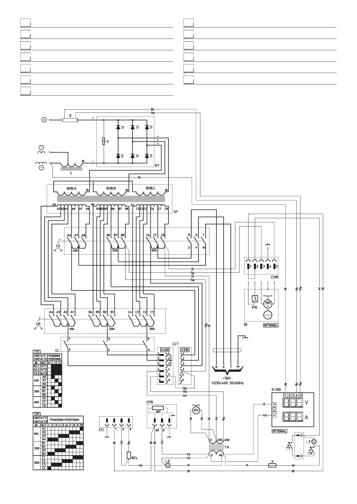
Schema elettrico MAXI 505
EN
Wiring diagram MAXI 505
FR
Schéma électrique MAXI 505
DE
Schaltplan MAXI 505
ES
Esquema eléctrico MAXI 505
NL
Elektrisk skema MAXI 505
PT
Esquema eléctrico MAXI 505
DA
Forbindelsesdiagram MAXI 505
SV
Elektiska schema MAXI 505
FI
Sähkökaavio MAXI 505
N
Elektriske skjema MAXI 505
EL
ΗλεκτρικώνιαγραμμάτωνMAXI505
RU
ЭлектрическаясхемаMAXI505

Table of Contents

Related product manuals