EasyManua.ls Logo

Chamberlain liftmaster CB2 - Page 8

Chamberlain liftmaster CB2
Print Icon
To Next Page IconTo Next Page
To Next Page IconTo Next Page
To Previous Page IconTo Previous Page
To Previous Page IconTo Previous Page
Loading...
F-3
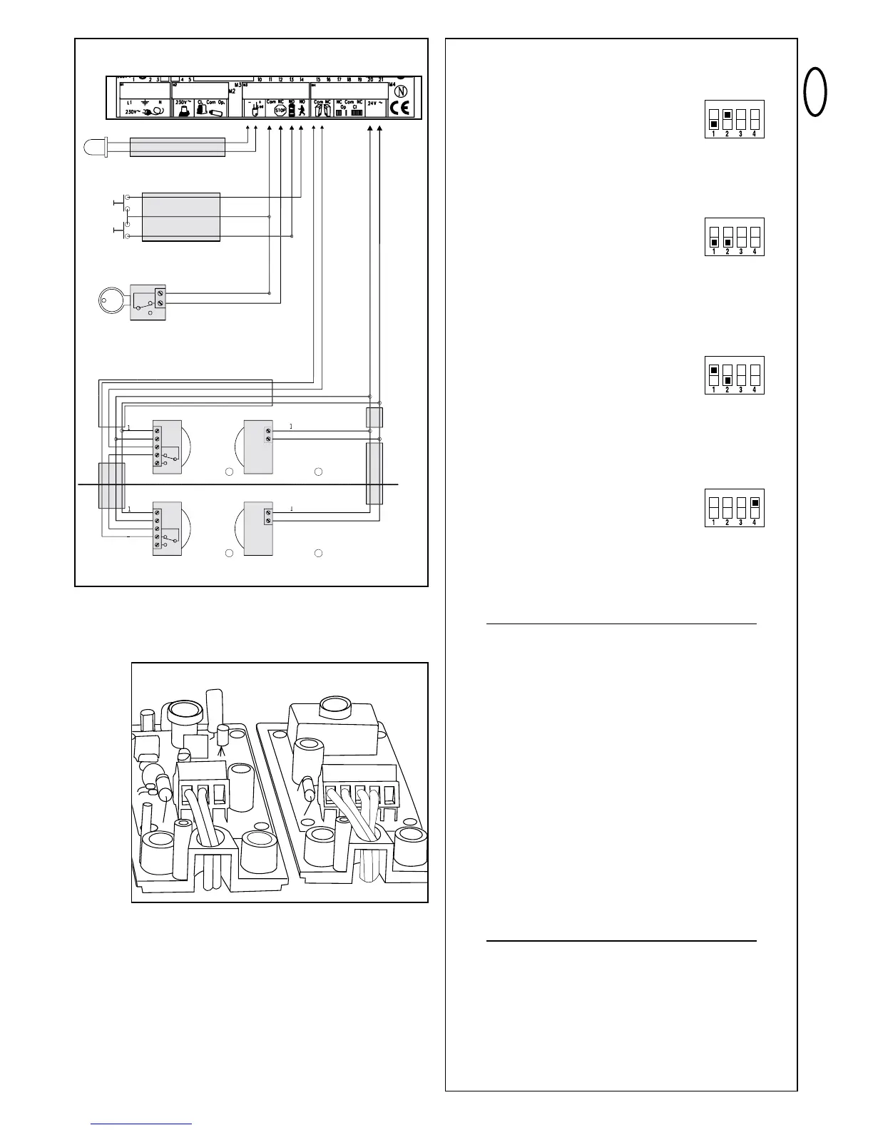
SCHEMA DE RACCORDEMENT
N
C
N
C
24V~
24V~
24V~
24V~
2
2
3
3
2B2
2B
2B
2B2
S
T
OP
O
uvertur
e
p
artiell
e
K
A
N
C
EN
O
PTI
ON
1
1
2
3
4
1
2
3
4
4
1
2
1
2
O
uvertur
e
com
pl
è
t
e
EN
O
PTI
ON
+ -
NC C NO
+ -
PROGRAMMES
La commande comporte 4 modes de fonctionnement (programmes).
Le programme souhaité se règle à l'aide des commutateurs DIP 1 + 2.
Standard (pas à pas) :
Commutateur DIP 1 OFF
Commutateur DIP 2 ON
Le portail ne se ferme pas automatiquement. Le trimmer
(potentiomètre) B est inopérant. La barrière photoélectrique inverse le
mode de fonctionnement du portail sur "Ouvert" lorsqu'il se ferme. Si
la barrière photoélectrique doit également être active dans le sens
OUVERT, il faut alors la raccorder aux contacts 11 + 12 (Stop).
Automatique :
Commutateur DIP 1 OFF
Commutateur DIP 2 OFF
Une fois qu'il s'est ouvert complètement, le portail se referme
automatiquement au terme de la temporisation réglée (pause,
trimmer B). La barrière photoélectrique inverse le mode de
fonctionnement du portail sur OUVERT lorsqu'il se ferme. Une
interruption de la barrière photoélectrique lorsque le portail est ouvert
a pour effet de prolonger le temps de pause réglé.
Automatique (fermeture rapide) :
Commutateur DIP 1 ON
Commutateur DIP 2 OFF
Si la commande reçoit une impulsion provenant de la télécommande
ou d'un interrupteur durant le fonctionnement dans le sens
d'ouverture, le portail se ferme immédiatement. Une interruption de la
barrière photoélectrique lorsque le portail attend en position ouverte
raccourcit le temps de pause réglé et provoque la fermeture
immédiate du portail (autres fonctions : identiques à celles du mode
"Automatique").
Homme mort :
Commutateur DIP 4 ON
Pour fonctionner, la commande du portail doit recevoir un signal
continu provenant de l'interrupteur à clé ou de la télécommande. En
cas d'interruption du signal, le portail s'arrête et change de sens dès
réception du signal suivant. Cette fonction doit être systématiquement
utilisée lorsque la porte ne comporte pas toutes les protections
prescrites ou lorsque la barrière photoélectrique est hors service.
REGLAGES
Une fois que vous avez opté pour un programme, il est également
nécessaire de régler les potentiomètres.
Potentiomètre A Réglage de la force (Force)
Il définit la force de fonctionnement du moteur. La force nécessaire
dépend du poids et du mode de fonctionnement du portail.
La force mesurée au niveau de l'arête du portail en cours de
fermeture ne doit pas dépasser 400 N. En cas de réglage à une
valeur supérieure à 400 N, il faut installer la "barrière
photoélectrique".
Trimmer B Pause (délai d'attente en position ouverte)
En cas de réglage du programme automatique ou semi-automatique
avec STOP, il faut définir le délai d'attente dans PORTAIL OUVERT.
Le portail se ferme après écoulement de la temporisation réglée.
Trimmer C Frein (Brake)
Le portail s'arrête dès qu'il a atteint sa fin de course. Selon le poids et
le mode de fonctionnement du portail, il poursuit encore légèrement
sa course sous l'effet de l'élan. La fonction "Frein" permet de freiner
efficacement le portail et donc de minimiser toute poursuite
intempestive de sa course. Butée à gauche = ARRET frein.
COMMUTATEURS DIP (A POSITIONS MULTIPLES)
Commutateur 1 Programme
Commutateur 2 Programme
Commutateur 3 Capteur de régime (option)
Commutateur 4 Homme mort (l'entraînement ne fonctionne que
tant qu'un signal est délivré)

Related product manuals