EasyManua.ls Logo

ChiQ CPS570F - Page 18

ChiQ CPS570F
94 pages
Print Icon
To Next Page IconTo Next Page
To Next Page IconTo Next Page
To Previous Page IconTo Previous Page
To Previous Page IconTo Previous Page
Loading...
FR
30
mémoire de mise hors tension, un délai de mise sous tension, une alarme automatique, une congélation rapide et une
mise hors tension du réfrigérateur, etc. sont disponibles.
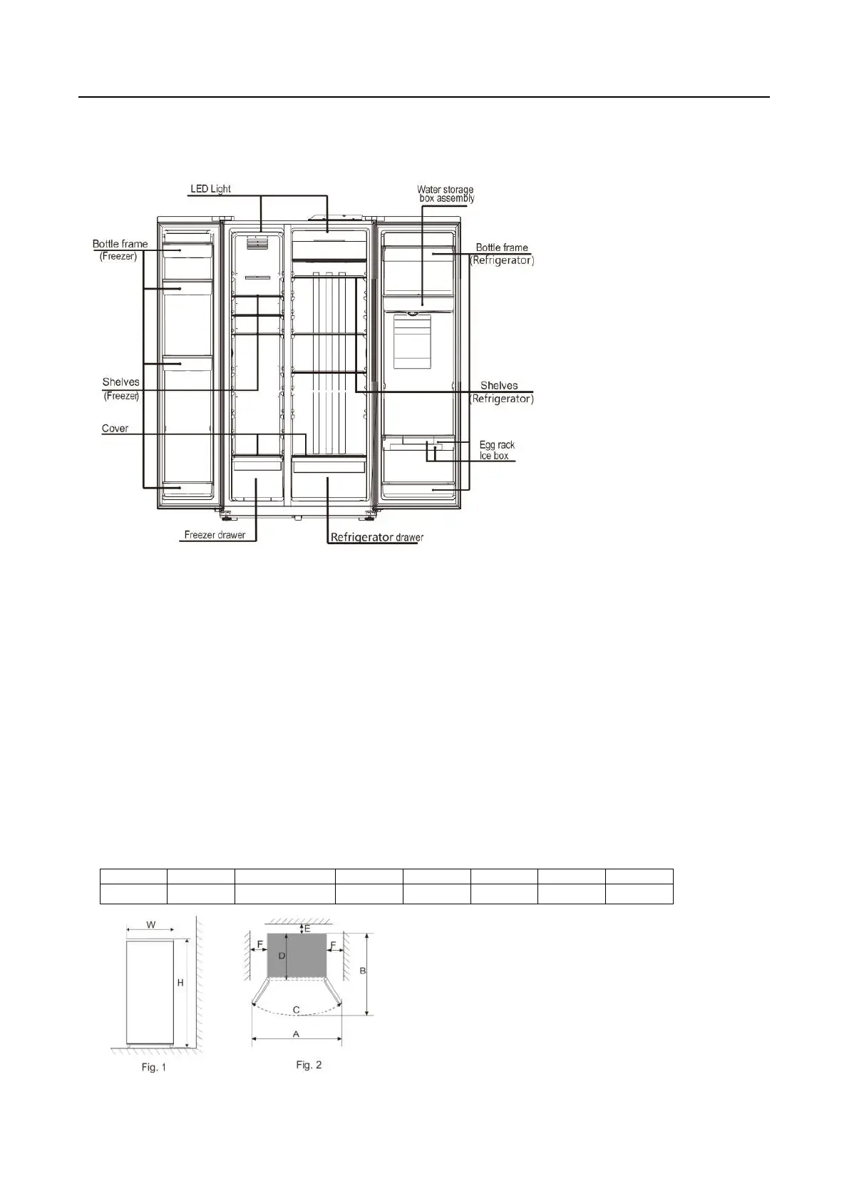
Vue explosée et liste des pièces
Remarque : En raison d'innovations technologiques, les descriptions du produit dans ce manuel peuvent ne
pas être totalement compatibles avec votre réfrigérateur. Les détails sont conformes à l'article.
III. Préparations avant l’utilisation
Emplacement dinstallation
7. Condition de ventilation
Le lieu choisi pour l'installation du réfrigérateur doit être bien ventilé et ne pas être sujet à de l'air chaud. Ne placez pas
le réfrigérateur à proximité d'une source de chaleur, telle qu'une cuisinière ou une chaudière, et évitez de l'exposer
directement au soleil, pour garantir ainsi un effet de réfrigération tout en réduisant la consommation d'énergie. Ne placez
pas le réfrigérateur dans un endroit humide, de manière à éviter la rouille et les fuites d’électricité. Le résultat de la
division de l'espace total de la pièce dans laquelle le réfrigérateur est installé par la quantité de charge de réfrigérant du
réfrigérateur ne doit pas être inférieur à 8 g/ M
3
.
Remarque : La quantité de réfrigérant chargé pour le réfrigérateur est indiquée sur la plaque signalétique.
8. Espace de dissipation thermique
Lorsqu’il fonctionne, le réfrigérateur dégage de la chaleur dans l’environnement. Par conséquent, vous devez ménager
au moins 300 mm d'espace libre au-dessus du réfrigérateur, plus de 100 mm des deux côtés et 50 mm à l' arrière du
réfrigérateur.
Dimensions en mm
La D H A B
C (°)
E
F
912 704 1770 1524 1062 160
50 100
Remarque : Le schéma 1 et le schéma 2 présentent uniquement lespace requis pour le produit.

Related product manuals