EasyManua.ls Logo

ChiQ CPS570F - Page 7

ChiQ CPS570F
94 pages
Print Icon
To Next Page IconTo Next Page
To Next Page IconTo Next Page
To Previous Page IconTo Previous Page
To Previous Page IconTo Previous Page
Loading...
EN
6
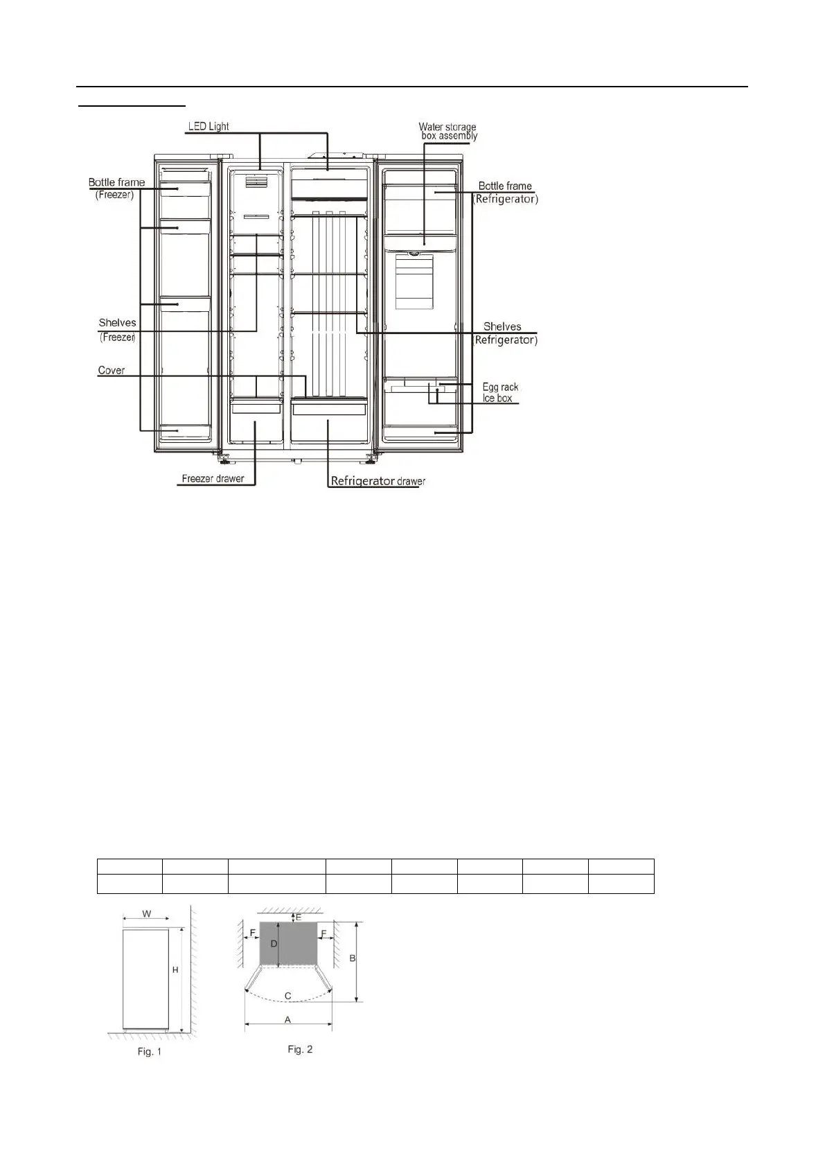
Explosive views
ote: Due to technological innovation, the product descriptions in this manual may not be completely consistent
with your refrigerator. Details are in accordance with the real product.
III. Preparations for use
Installation location:
1. Ventilation condition
The position you select for the refrigerator installation should be well-ventilated and has less hot air. Do not locate the
refrigerator near a heat source such as cooker, and avoid it from direct sunlight, thus guaranteeing the refrigeration effect
while saving energy consumption. Do not locate the refrigerator in the damp place, so as to prevent the refrigerator from
rusting and leaking electricity.The result of the total space of the room in which the refrigerator is installed being divided by
the refrigerant charge amount of the refrigerator shall not be less than 8 g/ M
3
.
Note: The amount of refrigerant charged for the refrigerator can be found on the nameplate.
2. Heat dissipation space
When working, the refrigerator gives off heat to surroundings. Therefore, at least 300mm of free space should be spared
at the top side, more than 100mm on both sides, and above 50mm at the back side of the refrigerator.
Dimensions in mm:
W D H A B
C(°)
E
F
912 704 1770 1524 1062 160
50 100
NoteNoteFigure 1, Figure 2 only illustrate the space demand of the product.

Related product manuals