EasyManua.ls Logo

Clark GEX 20s - Daily Inspection Procedure

Clark GEX 20s
132 pages
Print Icon
To Next Page IconTo Next Page
To Next Page IconTo Next Page
To Previous Page IconTo Previous Page
To Previous Page IconTo Previous Page
Loading...
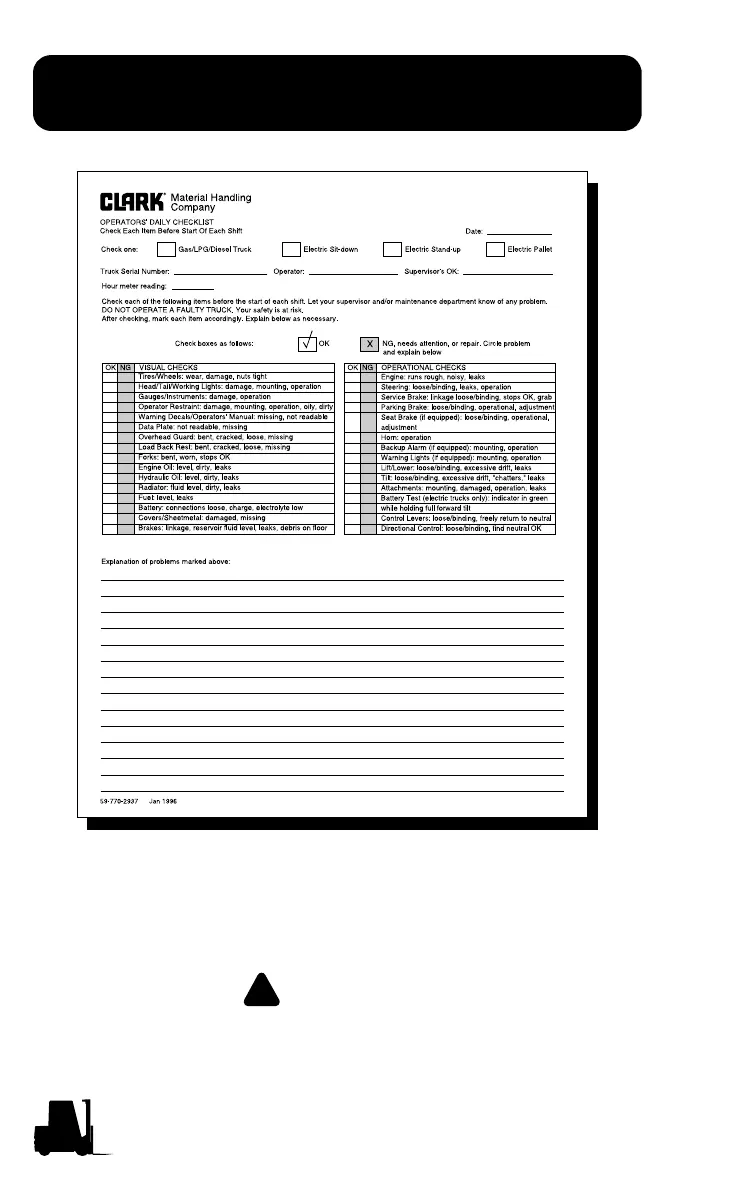
1-2 Daily Inspection
Daily Inspection
At the beginning of each shift, inspect your truck and fill out a daily
inspection sheet.
Check for damage and maintenance problems.
Have repairs made before you operate the truck.
CAUTION
!
DO NOT MAKE REPAIRS YOURSELF. Lift truck mechanics
are trained professionals. They know how to make repairs
safely. (See Section 4)

Related product manuals