EasyManua.ls Logo

Clayton CF700M - Duct Work Installation

Clayton CF700M
32 pages
Print Icon
To Next Page IconTo Next Page
To Next Page IconTo Next Page
To Previous Page IconTo Previous Page
To Previous Page IconTo Previous Page
Loading...
8
Duct Work Installation
We strongly recommend that the hot air ductwork be installed by a home heating specialist. If doing the
installation yourself, before you decide which installation will best suit your needs, consult a qualied heating
technician and follow his recommendations as to the safest and most efcient method of installation.
This furnace can be installed in three ways, as a stand alone unit, parallel, and in series with an existing furnace.
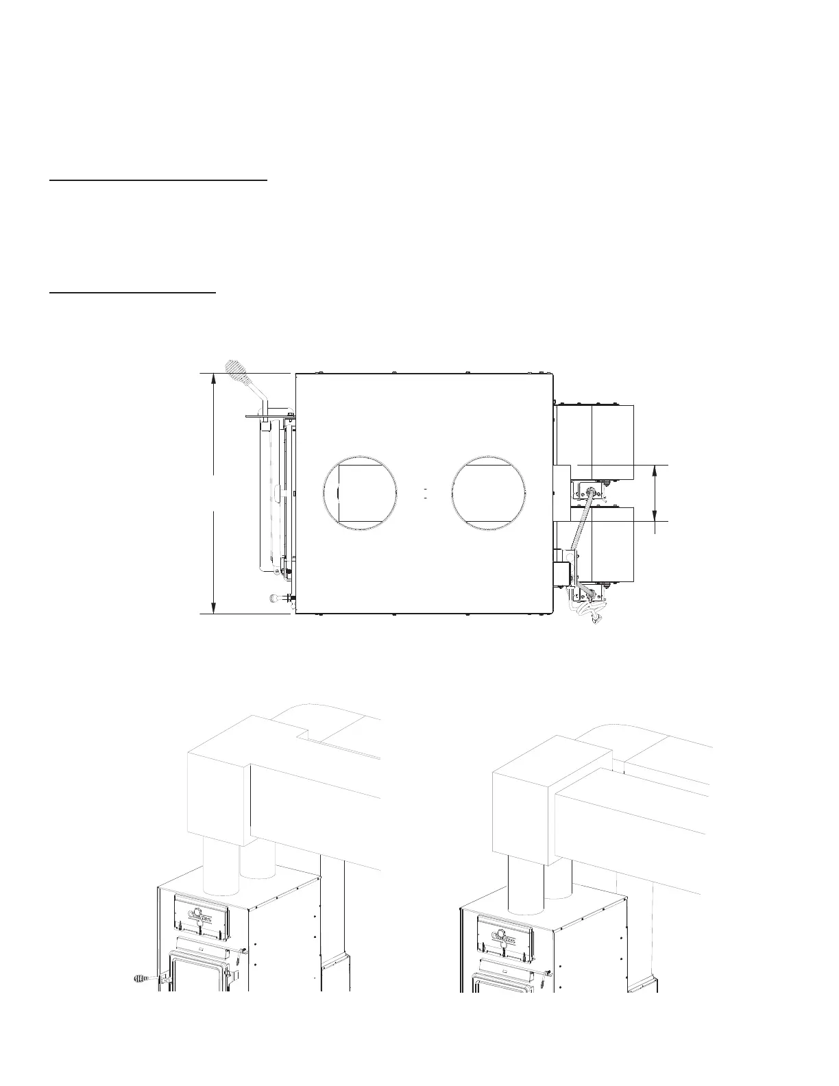
SUPPLY AIR (HOT AIR) PLENUM
The warm-air supply duct shall be constructed of metal in accordance with NFPA 90B, 2-1.1. The plenums installed
to the furnace shall be constructed of metal in accordance with NFPA 90B, 2-1.3.
When installing this furnace the hot air plenum is to have a minimum height of 24” (610mm) if the top of the rst
vertical section is not ush with the top of the rst horizontal section of ductwork. If the top of the plenum is ush
with the top of the rst horizontal section of ductwork then the minium height is 15” (381mm).
RETURN AIR (FRESH AIR)
The return (fresh) air intake on the furnace is on the rear of the unit. The ductwork must be mechanically
attached to the unit or blower kit box with sheet metal screws to ensure a proper operation.
26.25
6.12
Supply Air (Hot Air) Duct Work Outlet Size
Supply Air Plenum Minimum
Height Of 24”
Supply Air Plenum With
Minimum Height Of 15”