EasyManua.ls Logo

ClearCom FOR-22 - Schematic for FOR-22 Module PCB

Default Icon
28 pages
Print Icon
To Next Page IconTo Next Page
To Next Page IconTo Next Page
To Previous Page IconTo Previous Page
To Previous Page IconTo Previous Page
Loading...
FOR-22 4-WIRE INTERFACE
3-3
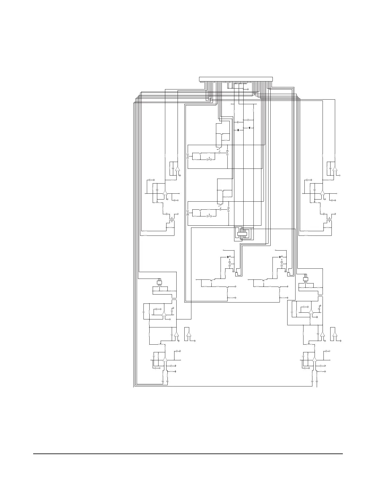
SCHEMATIC FOR FOR-22 MODULE PCB
Figure 2: Schematic for FOR-22 Main Board PCB, Rev. B
+
TO
MATRIX
FROM
IFB
CALL
RECEIVE
4-50VDC EITHER
POLARITY
4-8mA
IFB
MIC
LINE
SEND
MATRIX
CALL
CALL
RECEIVE
CW
MIC
CW
LINE
CCW
MATRIX
4-50VDC EITHER
POLARITY
TO
FOR CALL LOGIC
RECEIVE
FOR CALL LOGIC
RECEIVE
+
4-8mA
CCW
RECEIVE
MATRIX
CW
RECEIVE
CCW
* R113
NOT
LOADED
TO
MATRIX SEND
FROM
CCW
CW
*R213
NOT
LOADED
CHANNEL
A
CHANNEL
B
CHANNEL
A
CHANNEL
B
TO LEVEL
DETECT
PCB
SEND
SEND
CALL
CH. A
CH. B
CH. A CH. B
TO
MATRIX
-8V
+8V
+8V
-8V
+8V
-8V
+8V
-8V
+8V
-8V
-8V
+8V
-8V
+8V
+8V
-8V
-8V
+8V
T102
AUDIO 10K : 10K
1
6
5
3
4
2
JP100
LEVEL SELECT JUMPER
1
3
5
2
4
6
+
+
+
+
+
+
C111
.1 uF
12
Q104
MMBTA56
R132
10.0K
1 2
R212
0
12
R109
221
12
C219
33 pF
1 2
R111
0
12
R112
0
12
C205
33 pF
1 2
R113
*
12
R121
4.75K
1 2
R124
4.75K
1 2
C215 33 pF
1 2
R117
10.0K
1 2
R115
100
1 2
+
-
IC104B
LM833
5
6
7
D103
BAW56
1 2
3
P102
50K
13
2
R221
4.75K
1 2
R204
27.4K
1 2
C102
.22 uF
1 2
D203
BAW56
1 2
3
Q204
MMBTA56
IC203
MOC211
12
5 6
7
R213
*
12
C117
.1 uF
12
C113
22uF
35V
12
+
-
IC101A
LM833
3
2
1
84
R106
10.0K
1 2
C110
33 pF
1 2
R118
56.2
1 2
R125
82.5
1 2
D102
BAV99
12
3
C207
33 pF
1 2
C101
.22 uF
1 2
R101
27.4K
1 2
..
T201
AUDIO 600 : 600
2 11
5 8
C218
.1 uF
1 2
+
-
IC101B
LM833
5
6
7
C211
.1 uF
12
R208
2.74K
12
Q201
MMBT2222A
3
1
2
D201 BAV70
12
3
JP200
LEVEL SELECT JUMPER
1
3
5
2
4
6
+
+
+
+
+
+
R203
27.4K
1 2
R224
4.75K
1 2
C107
33 pF
1 2
R228
47.5K
12
LED101
AMBER
21
R215
100
1 2
R220
4.75K
1 2
+
-
IC201A
LM833
3
2
1
84
R229
150
1 2
RL101
1
4
3
2
5
..
T101
AUDIO 600 : 600
2 11
5 8
C202
.22 uF
1 2
R211
0
12
D2
GF1A
2 1
R103
27.4K
1 2
+
-
IC102A
LM833 SOIC
3
2
1
84
C209
.22 uF
12
R110
10.0
12
R102
27.4K
1 2
Q202
MMBT5551
3
1
2
R120
4.75K
1 2
R205
10.0K
1 2
R219
56.2
1 2
R227
10.0K
1 2
+
-
IC202B
LM833
5
6
7
R209
221
12
D104
BAW56
1 2
3
J1
EURO 64 M
1A
1C
2A
2C
3A
3C
4A
4C
5A
5C
6A
6C
7A
7C
8A
8C
9A
9C
10A
10C
11A
11C
12A
12C
13A
13C
14A
14C
15A
15C
16A
16C
17A
17C
18A
18C
19A
19C
20A
20C
21A
21C
22A
22C
23A
23C
24A
24C
25A
25C
26A
26C
27A
27C
28A
28C
29A
30A
30C
31A
31C
32A
32C
29C
R104
27.4K
1 2
R225
82.5
1 2
R105
10.0K
1 2
R126
10.0K
1 2
+
-
IC204B
LM833
5
6
7
C204
.1 uF
12
J2
1
3
5
7
9
11
13
2
4
6
8
10
12
14
+
+
+
+
+
+
+
+
+
+
+
+
+
+
Q101
MMBT2222A
3
1
2
+
-
IC201B
LM833
5
6
7
R231
10.0K
1 2
C106
.1 uF
12
C214
.1 uF
12
Q102
MMBT5551
3
1
2
P202
50K
13
2
C217
.1 uF
12
C203
33 pF
12
R226
10.0K
1 2
Q103
MMBT2222A
3
1
2
C104
.1 uF
12
R130
1.00k
1 2
R201
27.4K
1 2
D101 BAV 70
12
3
R202
27.4K
1 2
C112
22uF
35V
12
D202
BAV99
12
3
C118
.1 uF
1 2
RL201
1
4
3
2
5
R131
10.0K
1 2
R123
10.0
12
T202
AUDIO 10K : 10K
1
6
5
3
4
2
+
-
IC202A
LM833
3
2
1
84
R108
2.74K
12
C103
33 pF
12
+
-
IC204A
LM833
3
2
1
84
+
-
IC102B
LM833
5
6
7
R128
47.5K
12
LED201
AMBER
21
R232
10.0K
1 2
C210
33 pF
1 2
IC103
MOC211
12
5 6
7
R230
1.00k
1 2
C115 33 pF
1 2
R129
150
1 2
Q203
MMBT2222A
3
1
2
R218
56.2
1 2
C119
33 pF
1 2
R122
10.0
12
R114
10.0K
1 2
R116
10.0K
1 2
R206
10.0K
1 2
R127
10.0K
1 2
C206
.1 uF
12
+
-
IC104A
LM833
3
2
1
84
D1
GF1A
2 1
P101
50K
13
2
C105
33 pF
1 2
R217
10.0K
1 2
R214
10.0K
1 2
C201
.22 uF
1 2
C114
.1 uF
12
D204
BAW56
1 2
3
R119
56.2
1 2
C109
.22 uF
12
P201
50K
13
2
R210
10.0
12
R216
10.0K
1 2