EasyManua.ls Logo

COMEM R.I.S. - Component Identification and Diagrams; Device Component Labels; Accessories and Connections

COMEM R.I.S.
Print Icon
To Next Page IconTo Next Page
To Next Page IconTo Next Page
To Previous Page IconTo Previous Page
To Previous Page IconTo Previous Page
Loading...
COMEM manuale uso RIS 2010 7:COMEM Uso RIS 6-12-2010 9:49 Pagina 33
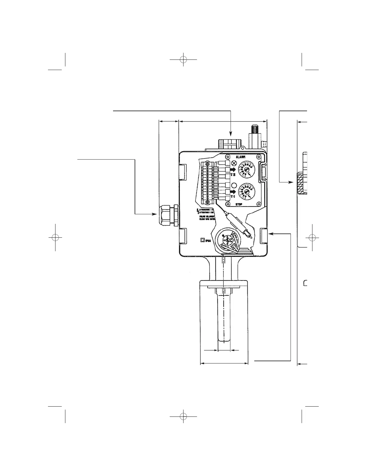
fig. / Abb. 1
32
VALVOLA
DI VENTILAZIONE
VENTILATION
VALVE
SOUPAPE DE
VENTILATION
LÜFTUNGSVENTIL
VALVULA DE
VENTILACION
MANICOTTO DI RIEMPIMENTO OLIO DISPOSITIVO R.I.S.
R.I.S. DEVICE OIL FILLER SLEEVE
ÖLEINFÜLLSTOPFEN R.I.S.-VORRICHTUNG
MANCHON REMPLISSAGE HUILE DISPOSITIF R.I.S.
MANGUITO DE LLENADO CON ACEITE DEL DISPOSITIVO R.I.S.
MAGNETE PER
MAGNET FOR
MAGNET FÜR
A
IMAN
T
POUR
IMAN PARA TE
30
160
PRESSACAVO M25X1,5
CABLE CONNECTION M25X1,5
KLEMMKASTEN ANSCHLUß M25X1,5
PRESSE-CABLE M25X1,5
A
BRAZADERA PARA CABLE M25X1,5
Ø22
Ø85