EasyManua.ls Logo

Coonara INBUILT - Horizontal Flue Installation (Inbuilt)

Coonara INBUILT
21 pages
Print Icon
To Next Page IconTo Next Page
To Next Page IconTo Next Page
To Previous Page IconTo Previous Page
To Previous Page IconTo Previous Page
Loading...
Revised: 23/08/2012 Printed
12
Printed: 20/03/2013
INBUILT MODEL
Horizontal Flue Installation
Installation into an existing fireplace.
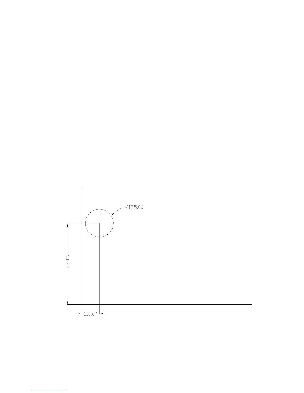
1. Mark the centre line of the heater location and using the diagram (Fig 1) determine the
exact location for the flue pipes and flue terminal.
NOTE – Check that the location for the flue terminal conforms to the requirements of
AS/NZS 5601 location of a flue terminal.
2. Cut the required opening in the brick work.
NOTE – Allow sufficient space for the gas connection.
3. Connect Gas
4. Fit the bends and short inner and outer flue pipes to the heater spigot.
5. Slide the heater into position with the flue pipes protruding through the hole in the rear of
the fireplace.
6. After final positioning – Fix the appliance firmly into position using the fixing brackets on
either side of the heater casing.
7. Trim the inner flue to 50mm longer than the outer flue
NOTE – It may be necessary to trim the outer flue depending on wall thickness.
8. Attach the cowl backing plate to the wall. Seal with silicon sealant
9. Fit the wall cowl to the flues, Attach cowl to the backing plate.
Fig 1: Rear of heater showing exact location of flue (shown from rear).

Related product manuals