EasyManua.ls Logo

Cooper & Hunter CH-S09FVX - Page 35

Cooper & Hunter CH-S09FVX
80 pages
Print Icon
To Next Page IconTo Next Page
To Next Page IconTo Next Page
To Previous Page IconTo Previous Page
To Previous Page IconTo Previous Page
Loading...
32
Installation and Maintenance
Service Manual
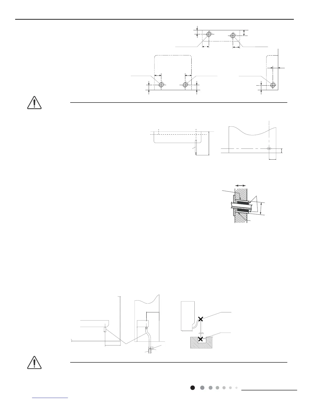
(2) The location of the hole is different depending on
which side of the pipe is taken out .
(3) For piping ,see6.Connecting the refrigerant pipe ,
under Indoor Unit Installation(1).
(4) Allow space around the pipe for a easier
indoor unit pipe connection.
Min.allowable length
The suggested shortest pipe length is 2.5m,in order to
avoid noise from the outdoor unit and vibration.
(Mechanical noise and vibration may occur depending on
how the unit is installed and the environment in which it is
used.)
See the installation manual for the outdoor unit for the
maximum pipe length.
For multi-connections ,see the installation manual for
the multi-outdoor unit.
2. Boring A Wall Hole and Installing Wall Embedded Pipe
For walls containing metal frame or metal board ,be sure to use a wall embedded
pipe and wall cover in the feed-through hole to
Be sure to caulk the gaps around the pipes with caulking material to prevent
water leakage.
(1) Bore a feed-through hole of 65mm in the wall so it has a down slope toward the
outside.
(2) Insert a wall pipe into the hole.
(3) Insert a wall cover into wall pipe .
(4) After completing refrigerant piping, wiring, and drain piping, caulk pipe hole gap with putty.
3. Drain Piping
(1) Use commercial regid polyvinyl chloride pipe general VP 20 pipe, outer diameter 26mm, inner diameter 20mm for the drain pipe.
(2)The drain hose (outer diameter 18mm at connecting end, 220mm long)is supplied with the indoor unit. Prepare the drain pipe
picture below position.
(3) The drain pipe should be inclined downward so that water will ow smoothly without any accumulation.(Should not be trap.)
(4) Insert the drain hose to this depth so it wont be pulled out of the drain pipe.
(5) Insulate the indoor drain pipe with 10mm or more of insulation material to prevent condensation.
(6) Remove the air lters and pour some water into the drain pan to check the water ows smoothly.
Use polyvinyl chloride adhesive agent for gluing. Failure to do so may cause water leakage.
45
45
45
45
60
75
75
75
75
45
Left back piping
gnipipmottobthgiRgnipipmottobtfeL
Wall
(Unit : mm)
Right back piping
Left/right piping
CAUTION
CAUTION
350
wall
Refrigerant pipe
45
75
Floor
Inside Outside
Caulking
Wall embedded pipe
(field supply)
Wall hole cover
(field supply)
Wall embedded pipe
(field supply)
Φ65
100
Drain hose
100
150
Vinyl chloride
drain pipe
50mm
or more
Reducer
Must be no trap
Do not touch water

Related product manuals