EasyManua.ls Logo

Cornelius HS - Technische Daten und Darstellung; Technical Data and Diagrams

Cornelius HS
26 pages
Print Icon
To Next Page IconTo Next Page
To Next Page IconTo Next Page
To Previous Page IconTo Previous Page
To Previous Page IconTo Previous Page
Loading...
Balance Carbonator / Balance Karbonator
Manual operation / Gebrauchsanweisung
Carbonator/Karbonator HS/HK
Seite
24
Cornelius Deutschland GmbH
Document no/ Dokumenten-Nr.: TD22022600ML
Version A, 11.05.2020, Index 0
Technische Daten und Darstellung / Technical data and diagrams
Anschlußspannung / Power supply:
230 V/50 Hz
Leistungsaufnahme / Power consumption:
300 Watt
Pumpenleistung bei / Pump flow rate at 10 bar:
280 l/h
Pumpendruck / Pump head HK:
11 bar
Pumpendruck / Pump head HS:
12 bar
Karbonatorleistung / Carbonator flow rate HK:
220 l/h
Karbonatorleistung / Carbonator flow rate HS:
200 l/h
Wassereingangsdruck / Water inlet pressure:
2-3 bar
CO
2
-Druck / Pressure:
5,5 bar
CO
2
-Volumen / Volume:
4,0%
Karbonatorbehälter / Carbonator bowl
Gesamtinhalt / Total volume:
2,2 l
Füllinhalt / Net volume:
1,6 l
Differenz / Diffference min/max:
0,3 l
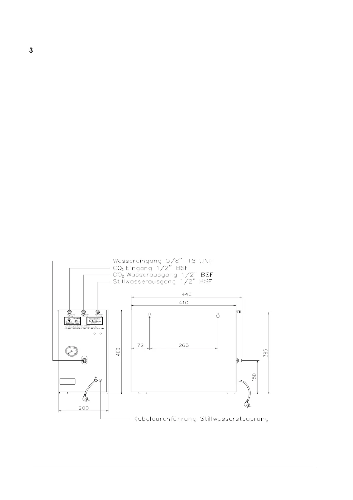
Abmessungen / Dimensions
Breite / Width:
410 mm
Höhe / Height:
400 mm
Tiefe / Depth:
200 mm
Gewicht / Weight:
17 kg