EasyManua.ls Logo

Cornelius IWC630 - Page 57

Cornelius IWC630
66 pages
Print Icon
To Next Page IconTo Next Page
To Next Page IconTo Next Page
To Previous Page IconTo Previous Page
To Previous Page IconTo Previous Page
Loading...
54
250 VAC
CAPACITOR
START
OR
COMPRESSOR
145-174 mfd
RD
WH
RD
YL
CAPACITOR
RUN
COMPRESSOR
RD
RD
YL
C
R
S
OVERLOAD
EXTERNAL
COMPRESSOR
2
1
WH
5
VALVE
BK
BK
BL
WATER DUMP
M
FAN MOTOR
START RELAY
POTENTIAL
CONDENSOR
(A/C ONLY)
RD
370 VAC
35 mfd
See note 2
WH
M
WH
RD
BL
HOT GAS
SOLENOID
BL
WATER PUMP
CORD
PUMP
BK
LIQUID LINE
SOLENOID
RD
BR
BK
M
RD
BK
(R/C ONLY)
BR
BK
2
YL
3
6
8
5
7
1
BL
CO
450 PSIG
BK
BR
D-15
GR
GR
D-14
Water
Dump
Relay
Valve
BL
CONDENSATION FAN
(W/C & R/C ONLY)
RD
BK
GR
BK
CRANKCASE
RD
BK
BR
BR
RD
HEATER
(RC ONLY)
YL
S
N
SWITCH
RH Evap.
Switch
UNIT
BL
CONTACTOR
RH Evap.
D-13
2
230V
1
115V
Switch
Selector
Voltage
Valve
Fan
GR
D-12
RD
Error
Thickness Pot.
Adjustable Ice
GR
GR
Pump
D-11
D-6
D-5
Switch
Harvest
Manual
Hot Gas
Condenser
Transformer
YL
Test
Plug
S
N
See note 1
LH Evap.
Switch
Suction Line
Sensor
(Brown Lead)
Condenser
Sensor
(White Lead)
Unit
(if required)
To Stacked
Cable
Micro
Stacking
Processor
Plug
Plug
Suction
Plug
Plug
Options
LH Evap.
Condenser
D-10
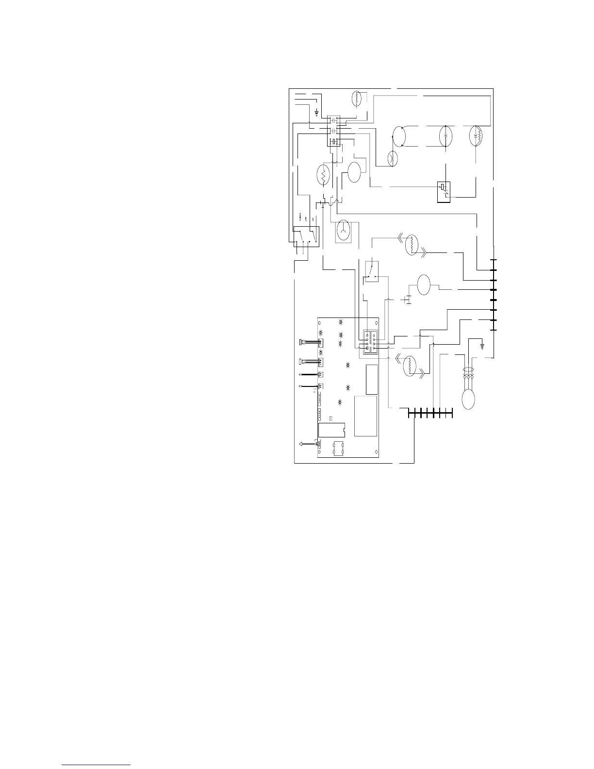
IAC 830, IWC 830 & IRC 830
IAC 630, IWC 630 & IRC 630
Water
4
3
(W/C & RC ONLY)
HIGH PRESSURE CONTROL
COMPRESSOR
SWITCH
WATER DUMP
RD
RD
MANUAL RESET
NOTE 1: CONDENSER SENSOR USED ONLY ON A/C UNITS.
1.8K ohm RESISTER USED ONLY ON W/C & R/C UNITS.
NOTE 2: CAPACITORS USED ON 630 BRISTOL COMPRESSOR:
RUN CAP, 25mfd 440 VAC
START CAP. 161-193mfd 250 VAC

Related product manuals