EasyManua.ls Logo

Dacor ERV3015 - Planning the Duct Work

Dacor ERV3015
20 pages
Print Icon
To Next Page IconTo Next Page
To Next Page IconTo Next Page
To Previous Page IconTo Previous Page
To Previous Page IconTo Previous Page
Loading...
8
Installation Specifications
Installations with ILHSF and REMP series blowers:
With ILHSF and REMP blowers, the downdraft vent can
be configured to exhaust through the back, the bottom or
either side by removing the appropriate exhaust knock-out
shown on the facing page.
• When connecting the duct work to the back of the unit,
the customer must supply a 3 ¼ x 10 rectangular tran-
sition to make the connection.
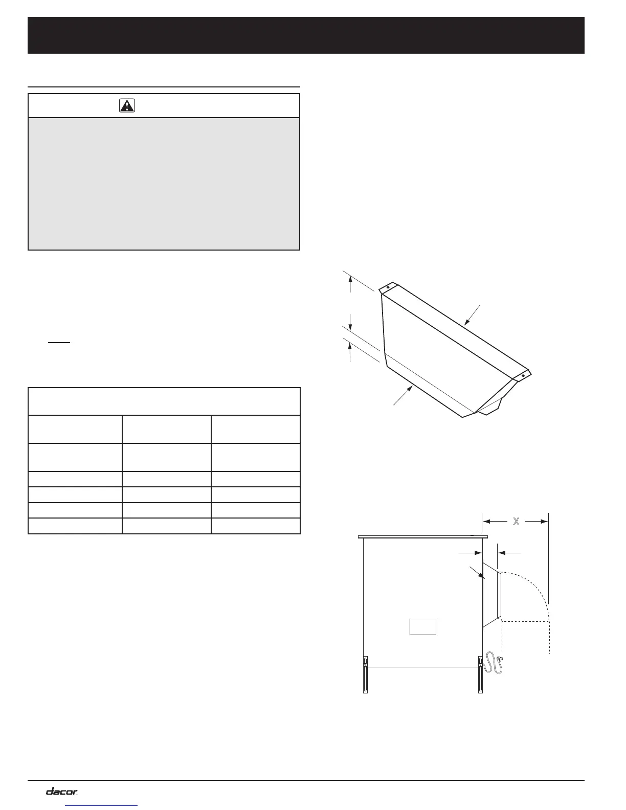
• For side and bottom exhaust connections, use the sup-
plied transition to connect the duct work to the unit. It
transitions between the 1
5
/8 x 16 exhaust outlet on the
unit and a 3 ¼ x 10 rectangular duct connection. On
bottom exhaust installations cut a hole in the floor to
allow the transition and/or duct work to pass through
the floor (see page 13).
• On side exhaust installations, allow five inches of space
on the side for the 2 x 16 to 3 ¼ x 10 transition plus
additional space for the duct attached to it (X).
Planning the Duct Work
WARNING
• To reduce the risk of fire and to properly exhaust air,
be sure to duct air outside the house or building. Do
not vent exhaust air into spaces within walls or ceil-
ings or into attics, crawl spaces or garages.
• TO REDUCE THE RISK OF FIRE, USE ONLY METAL
DUCT WORK.
• DO NOT install more than one blower to increase the
length of the duct run. Even small differences between
blower air flow rates can greatly reduce the air draw
by the downdraft vent.
Local building codes may require the use of makeup air
systems with ventilation systems that move air greater than
the specified movement rate (CFM). The specified rate var-
ies based on locale. Consult a qualified HVAC specialist
when designing the system for the requirements in your
area and to assure optimal performance.
You must install one of the Dacor blower models listed
below for the downdraft vent to operate properly. See the
blower installation instructions for directions. For model
CABP3, see the instructions later in this manual.
APPROVED DACOR BLOWERS FOR USE WITH
MODEL ERV-PRV SERIES DOWNDRAFT VENTS
Dacor Blower
Model Number
Rating
Compatible with
Vent Models
CABP3
1
600 CFM
2
ERV3015
3
ERV3615
3
ILHSF8 600 CFM
4
ALL
ILHSF10 1100 CFM
4
ALL
REMP3 600 CFM
4
ALL
REMP16 1000 CFM
4
ALL
1
IMPORTANT: Due to a lack of clearance, do not use a
CABP3 blower if a range or wall oven is to be installed in
front of the downdraft vent.
2
Nominal rating at zero inches static pressure, see the
CABP3 blower ratings on page 17 for actual rating.
3
Revision B and later units only.
4
Nominal rating at zero inches static pressure. See blower
installation instructions for actual ratings.
For installations with CABP3 blowers:
• Installation with a CABP3 blower requires Dacor adapt-
er kit # AERVCAB.
• The blower assembly is mounted to the front of the
downdraft vent with the exhaust pointing in the desired
direction. See page 10.
• The CABP3 blower output connects directly to 3 ¼ x 10
rectangular duct.
1
5
/
8
x 16 duct
transistion
5”
X
3 ¼ x 10 to duct work
2 x 16, connects to
side or bottom exhaust
on downdraft
1"
(2.5 cm)
5"
(12.7 cm)
1
5
/
8
x 16 Duct Transition

Other manuals for Dacor ERV3015

Related product manuals