EasyManua.ls Logo

Dacor ERV3015 - Installation Instructions; Installation Preparation

Dacor ERV3015
20 pages
Print Icon
To Next Page IconTo Next Page
To Next Page IconTo Next Page
To Previous Page IconTo Previous Page
To Previous Page IconTo Previous Page
Loading...
12
Installation Preparation
Verify Package Contents
1. Unpack the unit and verify that all required parts have
been provided. If any item is missing or damaged,
please contact your dealer immediately. Do not install a
damaged or incomplete appliance. The customer must
report cosmetic issues within 30 days of installation.
Parts List
• Product literature
• Anchoring legs (left - PN 36861, right - PN 36862)
• 2 wood screws, #14 x 2 1/2 (PN 83047)
• 3 wire nuts
• 1
5
/8 x 16 to 3 ¼ x 10 duct transition (PN 13768)
• 2 sheet metal screws, #10 x 1/2 (PN 83022)
• 2 keps nuts, 1/4-20 (PN 83049)
• 2 flat washers, 1/4-20 (PN 83203)
• Insulation foam (tape)
Installation with CABP3 blower requires Dacor adapter kit
# AERVCAB. Kit includes adapter, wiring diagram label
(PN 106770), 3 wing nuts (PN 83035), 3 flat washers (PN
83008) and 6 lock washers (PN83340).
WARNING
• If the electrical service (electrical outlet) does not meet
the Electrical Specifications on page 2, do not
proceed with the installation. Call a licensed electrician
and have an electrical outlet installed that meets the
specifications.
• Install the vent only in a vertical orientation. Do not
mount the vent on a slant or angle.
• Do not enlarge or modify the exhaust knock-outs or
cut an exhaust hole in a location on the chassis other
than those shown. Doing so may cause an increase in
noise and decrease performance.
NOTE: The downdraft vent installs in the back of the cut-
out, separate from the range or cooktop. Install the down-
draft vent before installing the range or cooktop.
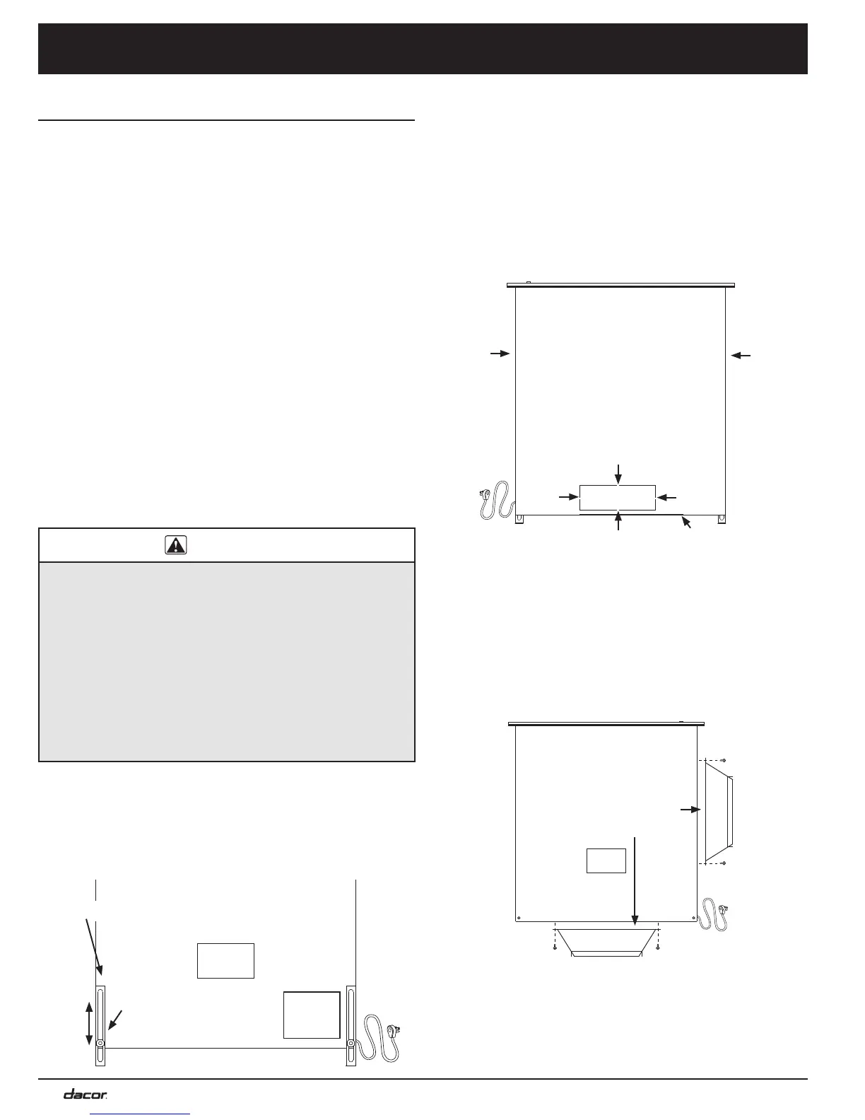
2. Start by loosely attaching the anchoring legs to the
studs on the left and right sides of the downdraft vent
using the provided Keps nuts and washers.
Installation Preparation for Downdraft Vent
with ILHSF or REMP Series Blower:
NOTE: For units using the CABP3 cabinet blower, skip to
Installation Preparation for Downdraft Vent with CABP3
Cabinet Blower, on facing page.
1. Remove the appropriate side, back or bottom exhaust
knockout, depending on the desired exhaust configu-
ration, from the downdraft vent chassis by cutting the
metal cross overs and removing the insert (see below).
2. Cut and remove the foil material inside the knock-out
hole. If you fail to remove the foil, the vent will not work.
• If the unit will vent through the bottom or side,
install the suppled 1
5
/8 x 16 to 3 ¼ x 10 transition
to the exhaust location. Before installing, peel the
protective backing off the foam tape and apply it to
the transition flanges. Attach the transition with the
provided sheet metal screws (see below).
• If the unit will exhaust air from the back, attach a
3 ¼ x 10 duct to the vent hole created by removing
the knock-out on the back of the unit.
3. Skip to Installing the Downdraft Vent in the Cutout
on page 13.
Installation Instructions
Back of unit
Side
knock-out
Side
knock-out
Bottom knock-out
Rear knock-out with
metal cross overs
shown
Put nuts/
washers on
studs
Front of unit
Anchor leg
Transition side
installation
Transition bottom
installation
Attach sealing
foam

Other manuals for Dacor ERV3015

Related product manuals