EasyManua.ls Logo

Dacor ERV3015 - Product Dimensions - ERV3015 and ERV3615

Dacor ERV3015
20 pages
Print Icon
To Next Page IconTo Next Page
To Next Page IconTo Next Page
To Previous Page IconTo Previous Page
To Previous Page IconTo Previous Page
Loading...
3
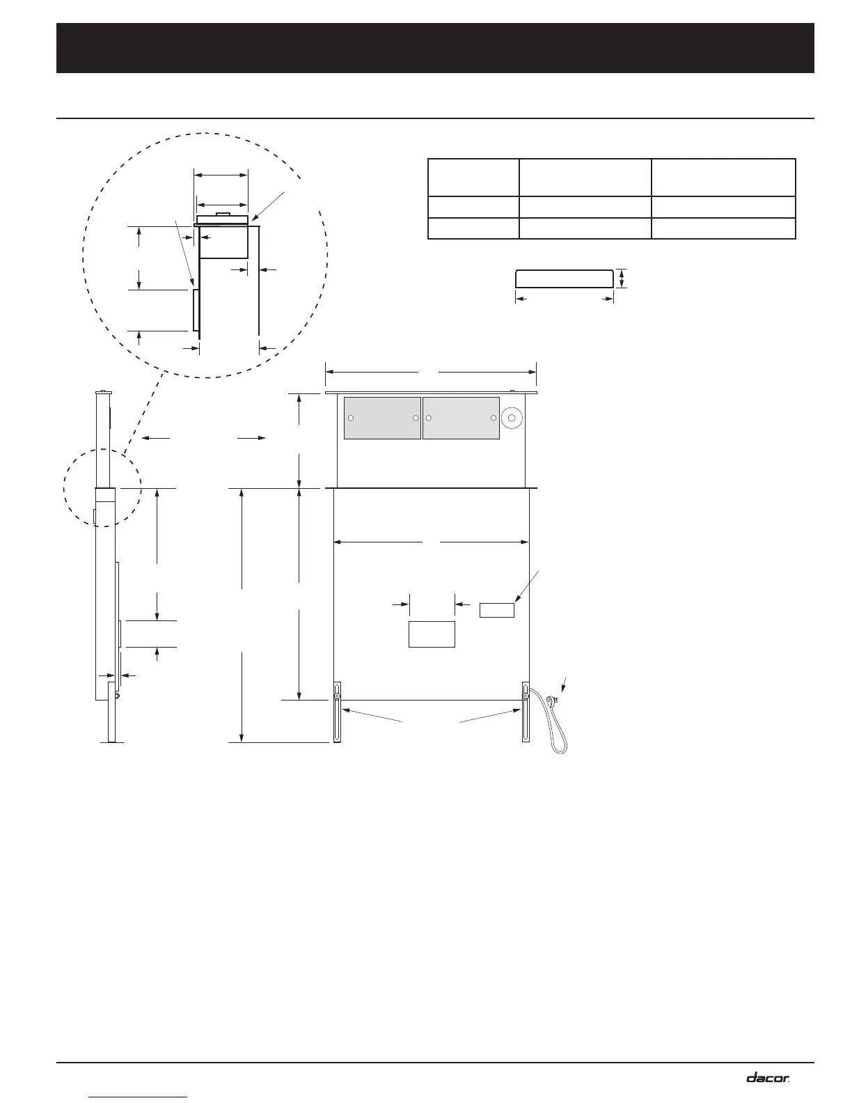
Product Dimensions - ERV3015 and ERV3615
Product Specifications
15"
(38.1 cm)
30"
(76.2 cm)
20”
(50.8 cm)
1 1/8”
(2.9 cm)
28" 3 prong
grounded
power cord
Motor
cover
Front of unit
6”
(15.2 cm)
2 9/16”
(6.5 cm)
9/16”
(1.4 cm)
3”
(7.6 cm)
1 15/16
(4.9 cm)
B
A
2 1/8
(5.4 cm)
2 3/16”
(5.6 cm)
3/16”
(5 mm)
5/16” (8 mm)
thick stiffener
across back
Top cap with
vent down
Vent shown
in raised
position
3 3/4”
(9.5 cm)
30 1/4”
(76.8 cm)
to
37 1/4”
(94.6 cm)
Adjustable
anchor legs
Product
data label
Tolerances: ±1/16” (±1.6 mm) unless otherwise stated
Model
Number
A - Top Cap
Width
B - Chassis
Width
ERV3015 30” (76.2 cm) 27 3/8” (69.5 cm)
ERV3615 36” (91.4 cm) 33 3/8” (84.8 cm)
See pages 9 and
10 for exhaust
locations and
dimensions.
** Maximum height of downdraft vent must not exceed maximum specified counter
height for cooking appliance. See installation instructions for cooking appliance.
* Total chassis depth with optional CABP3 blower installed is 10 3/8” (26.3 cm).
*
**
2 1/8" (5.4 cm)
3/8"
(1.0 cm)
2 1/8" (5.4 cm)
ERV top cap - side view
PRV top cap - side view
7/16"
(1.1 cm)

Other manuals for Dacor ERV3015

Related product manuals