EasyManua.ls Logo

Dacor RV46 - Page 10

Dacor RV46
19 pages
Print Icon
To Next Page IconTo Next Page
To Next Page IconTo Next Page
To Previous Page IconTo Previous Page
To Previous Page IconTo Previous Page
Loading...
Q
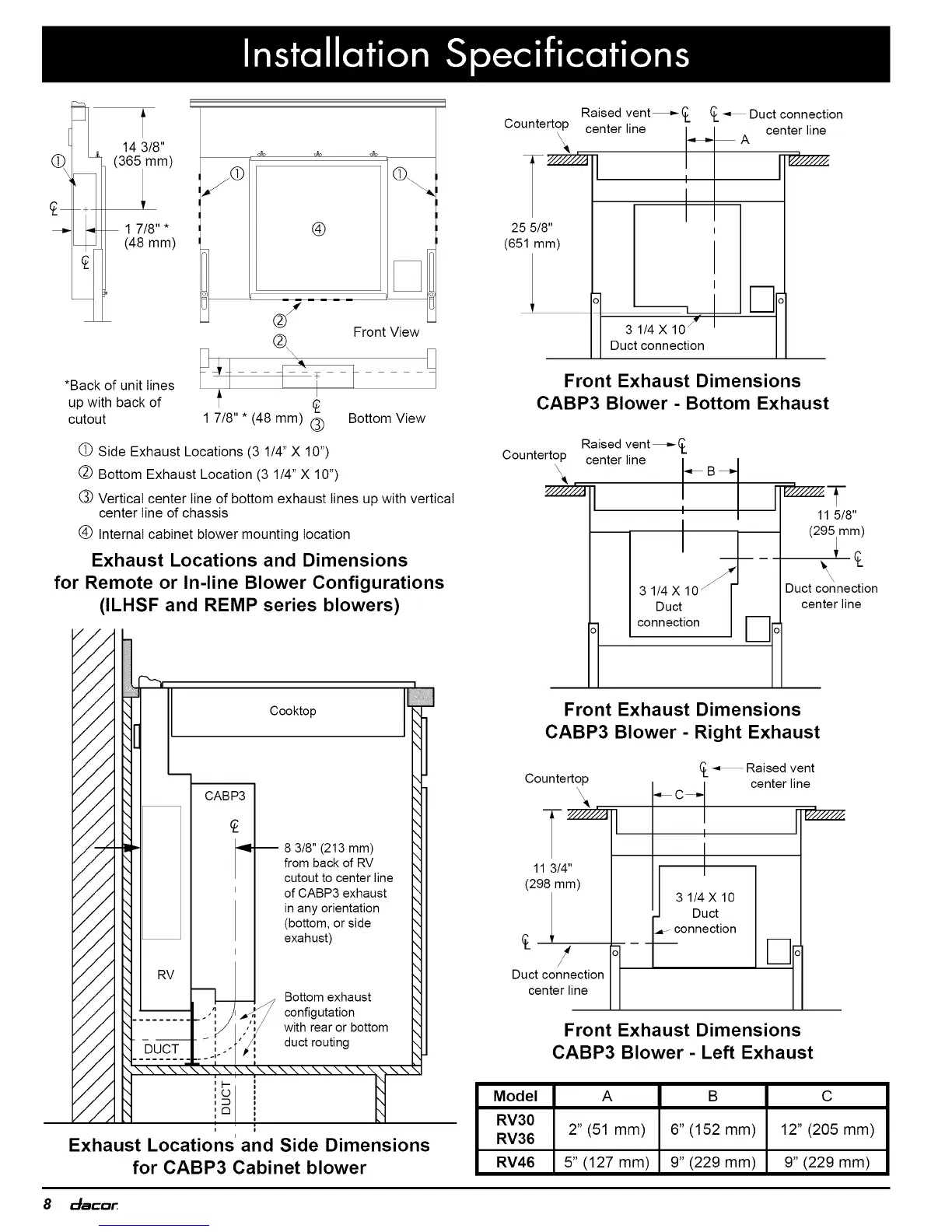
14 3/8"
315;/i,i. )
(48 mm)
®
O_
®
Front View
Raised vent_C L
C°unterttP_center line I_
25 5/8"
(651 mm)
3 1/4X 10_l_--
Duct connection
CL _ Duct connection
center line
A
_2-///-/_l
D
*Back of unit lines
A
I
up with back of "
¢
cutout 1 7/8" * (48 mm) ,_ Bottom View
(_ Side Exhaust Locations (3 1/4" X 10")
(_) Bottom Exhaust Location (3 1/4" X 10")
(3) Vertical center line of bottom exhaust lines up with vertical
center line of chassis
(_ Internal cabinet blower mounting location
Exhaust Locations and Dimensions
for Remote or In-line Blower Configurations
(ILHSF and REMP series blowers)
.... I I
k cooktop
_--I t _._8 3/8" (213 mm) k'_
ElI I / / frombackofRV _,]
I_1 I I / | cutout to center line
H I I i | of CABP3 exhaust
NI I I /in anyorientation N
11I I I / (bottom, orside ['_
HIll l l exahust_
M N
Bottom exhaust
___ ,1_J _ configutation ['_
H | lj .",/" with rear or bottom k_
H /D_ -i ..f _,' duct routing [q
..t-" i
bl........ _--i" , Pr
I\\\\\\\\\\\\\\\\\\\\\\\\\\\1
' ;
bl i_ ,
L"I ;2 : ,_
N ,:D , N
NI I n I N
LI '. '. ht
l l
i
Exhaust Locations and Side Dimensions
for CABP3 Cabinet blower
Front Exhaust Dimensions
CABP3 Blower - Bottom Exhaust
Countertop
Raised vent_C L
center line
I 11 5/8"
:oX, ou oo
Front Exhaust Dimensions
CABP3 Blower - Right Exhaust
Countertop
( iection t I -" 3 l//ucXt 10
T - connection
__
Du:te:t:r_l _lne
-,,, Raised vent
center line
Front Exhaust Dimensions
CABP3 Blower- Left Exhaust
Model A B C
RV30
2" (51 mm) 6" (152 mm) 12" (205 mm)
RV36
RV46 5" (127 mm) 9" (229 mm) 9" (229 mm)
8 _mC_

Other manuals for Dacor RV46

Related product manuals