EasyManua.ls Logo

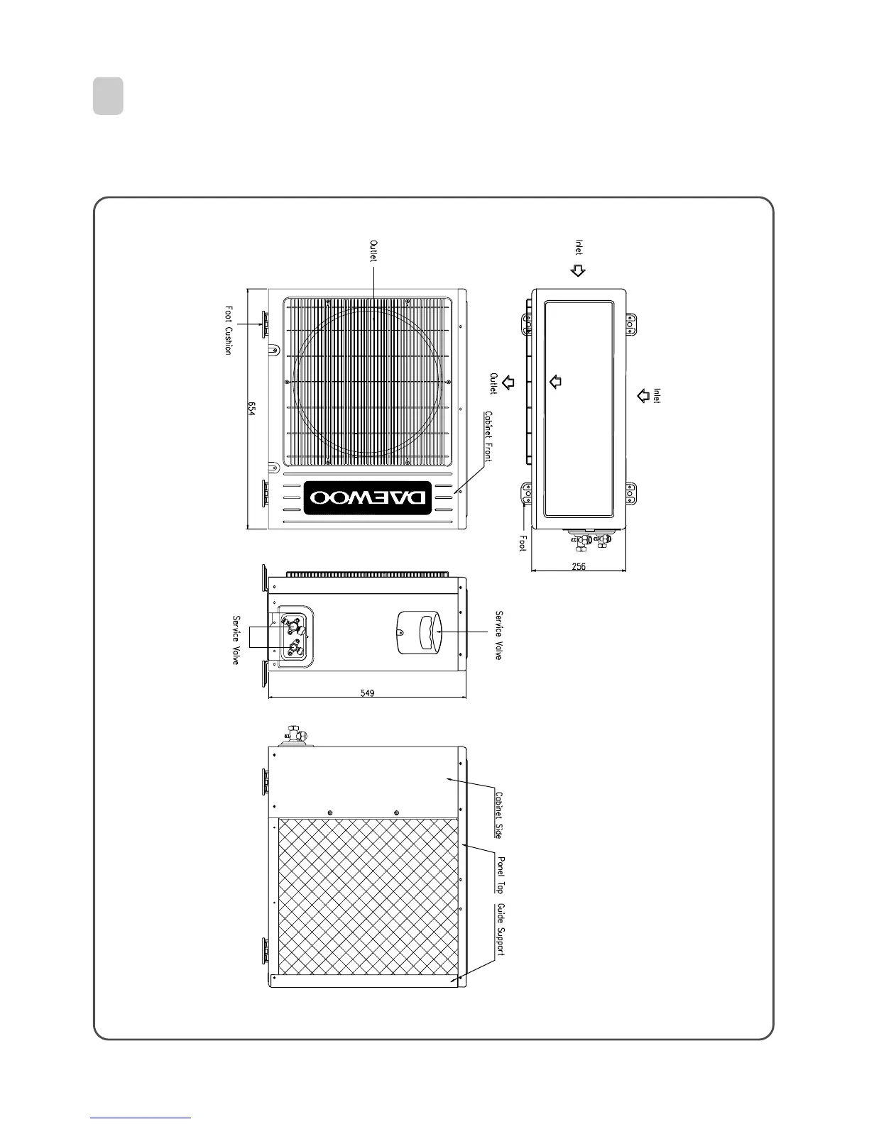
Daewoo DSB-123PH - Outdoor Unit Outline and Dimensions

Daewoo DSB-123PH
147 pages
Print Icon
To Next Page IconTo Next Page
To Next Page IconTo Next Page
To Previous Page IconTo Previous Page
To Previous Page IconTo Previous Page
Loading...
13
* DSB-092A/092AH/123A/123AH/123PH
2
OUTDOOR UNIT

Related product manuals