EasyManua.ls Logo

Daewoo DTY-21B4 - DTY-2880

Daewoo DTY-21B4
85 pages
Print Icon
To Next Page IconTo Next Page
To Next Page IconTo Next Page
To Previous Page IconTo Previous Page
To Previous Page IconTo Previous Page
Loading...
CP-520/520A/520F Service Manual
DTV R&D Europe
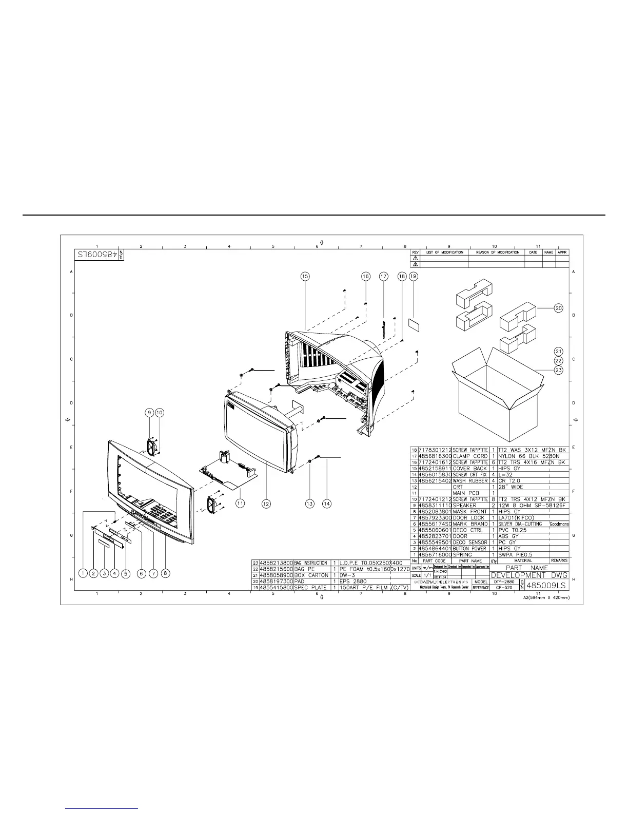
7. Exploded View
7-2 DTY-2880
70

Table of Contents

Related product manuals