EasyManua.ls Logo

Daewoo DWD-F1221 - SPECIFICATIONS; Model Specifications; WIRING DIAGRAM; Electrical Schematics

Daewoo DWD-F1221
24 pages
Print Icon
To Next Page IconTo Next Page
To Next Page IconTo Next Page
To Previous Page IconTo Previous Page
To Previous Page IconTo Previous Page
Loading...
23
Dimension (mm)
Maximum mass of textile (kg)
Unit Weight (kg)
Standard Water Consumption
Spin Speed (RPM)
Operating Water Pressure
595 x 540 x 850 (WxHxD)
6.0
64(Net) / 68(Gross)
50
l
No Spin/400/800/1000 No Spin/400/800/1200
0.03MPa ~ 0.8MPa (0.3kgf/cm
2
~ 8kgf/cm
2
)
MODEL DWD-F1021/F1022/F1023 DWD-F1221/F1222/F1223
SPECIFICATION
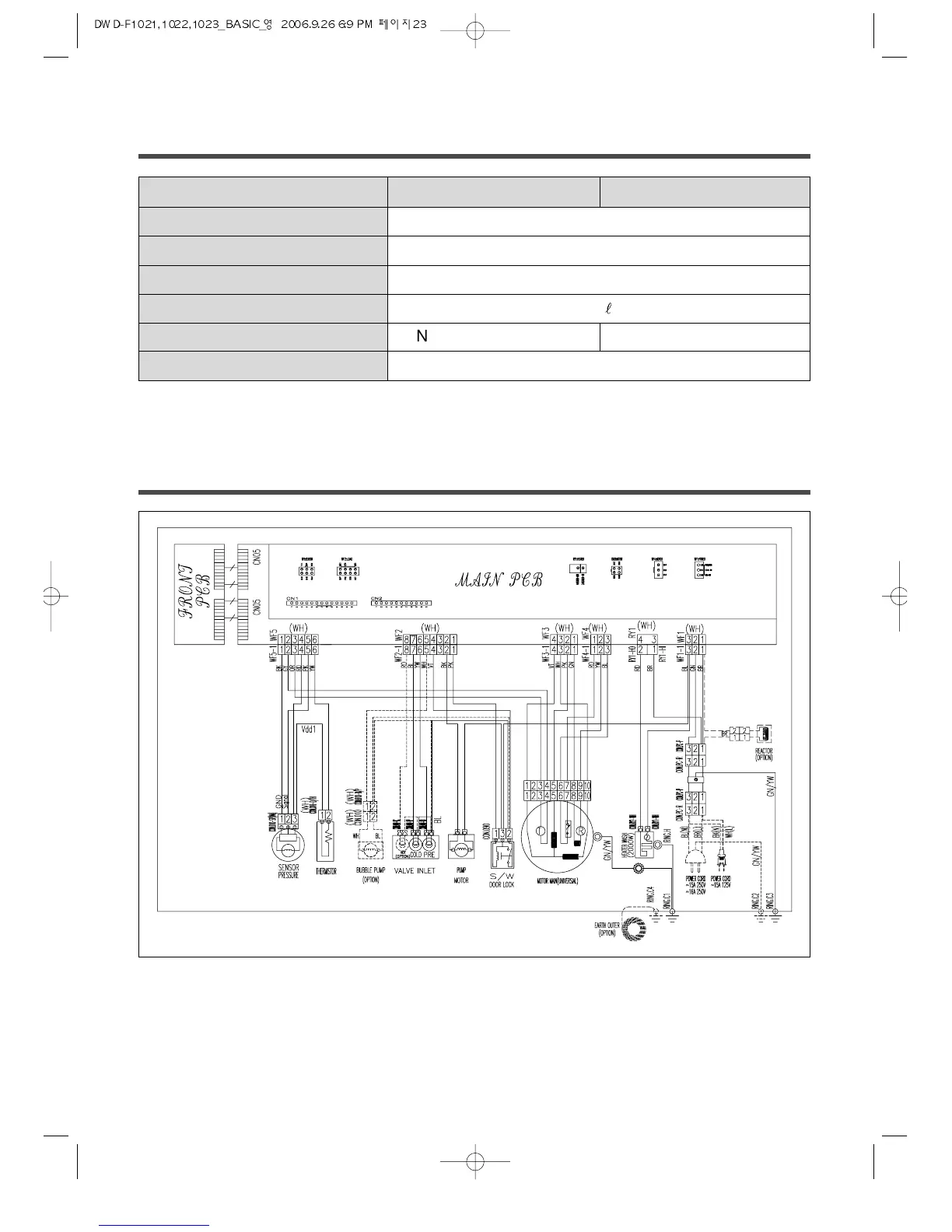
WIRING DIAGRAM

Other manuals for Daewoo DWD-F1221

Related product manuals