EasyManua.ls Logo

Daewoo ERF-384 - 5. REFRIGERANT CYCLE DIAGRAM

Daewoo ERF-384
67 pages
Print Icon
To Next Page IconTo Next Page
To Next Page IconTo Next Page
To Previous Page IconTo Previous Page
To Previous Page IconTo Previous Page
Loading...
8
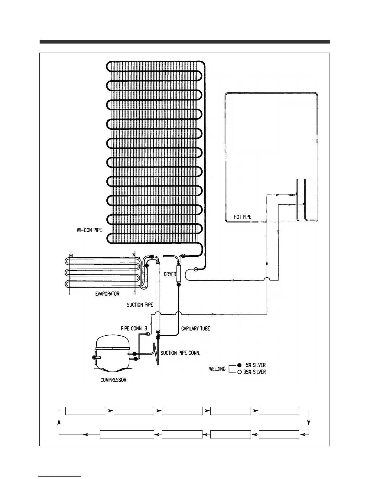
5. REFRIGERANT CYCLE DIAGRAM
PIPE CONN. B HOT PIPE WI-CON PIPE DRYER
CAPILLARY TUBE
COMPRESSOR
SUCTION PIPE CONN. SUCTION PIPE EVAPORATOR

Related product manuals