EasyManua.ls Logo

Daewoo FRS-U20DA Series - Page 94

Daewoo FRS-U20DA Series
96 pages
Print Icon
To Next Page IconTo Next Page
To Next Page IconTo Next Page
To Previous Page IconTo Previous Page
To Previous Page IconTo Previous Page
Loading...
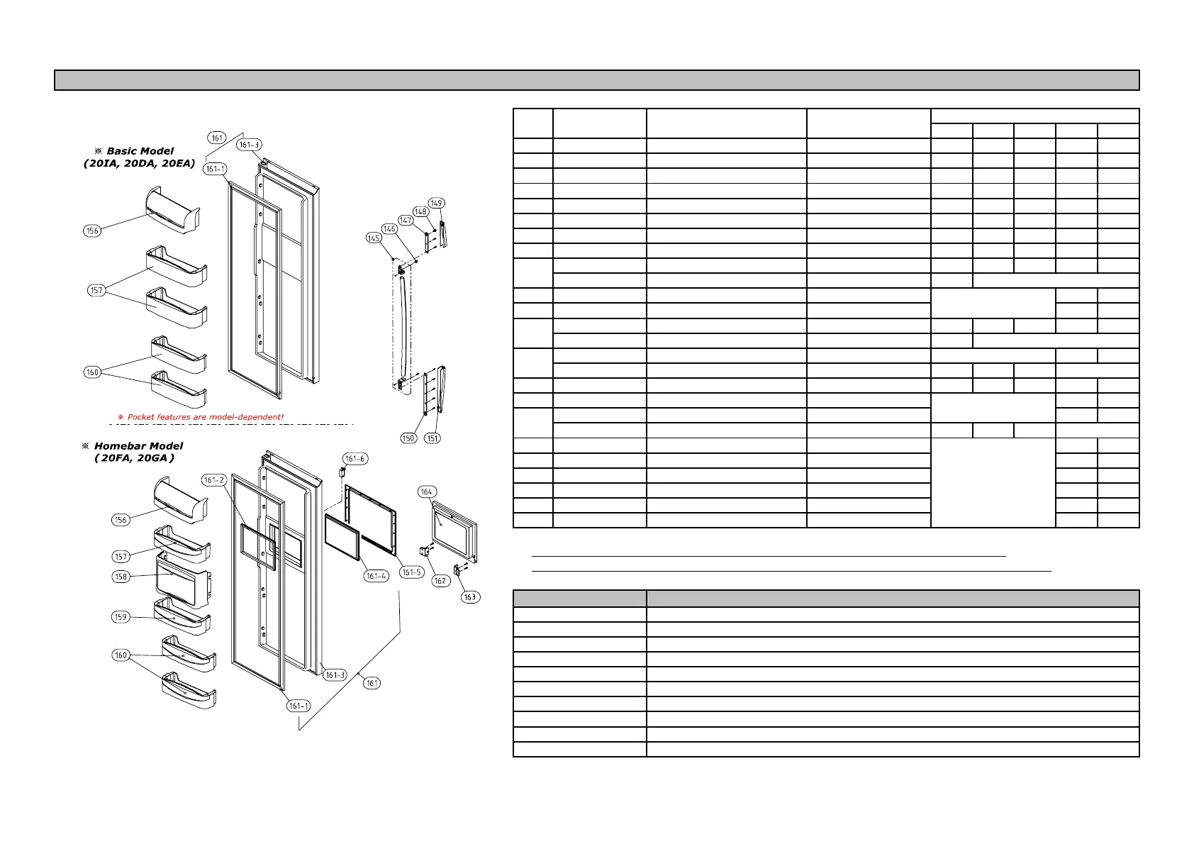
20IA 20DA 20EA 20FA 20GA
145 3012641500 HANDLE AS FRU-571I
11111
146 3016002700 SPECIAL SCREW
WASR+TRS5X16MFZN
2222
2
147 3010339500 BASE HANDLE *T HIPS
1111
1
148 7112401211 SCREW TAPPING T1 TRS 4*12 MFZN
8888
8
149 3011446400 COVER HNDLDECO *T ABS+SPRAY
11111
150 3010339600 BASE HANDLE *U HIPS
1111
1
151 3011446500 COVER HNDLDECO *U ABS+SPRAY
1111
1
156 3019027500 POCKET DAIRY AS FRU-571I
11111
3019027200 POCKET R *M AS FRU-541D
x2211
3019026800 POCKET R FRU-571I
2
158 3011187000 CASE H/BAR AS FRU-541F
11
159 3019027700 POCKET R H/BAR AS FRU-541F
11
3019027300 POCKET R *S AS FRU-541D
x2222
3019026900 POCKET R *S FRU-571I
2
3000060510 ASSY R DR FRU-541F
11
3000060500 ASSY R DR FRU-571I
111
161-1 3012318900 GASKET R DR AS PVC
11111
161-2 3012319300 GASKET H/BAR B AS PVC
11
3000058000 ASSY R DR URT FRU-541F
11
3000058010 ASSY R DR URT FRU-571I
111
161-4 3012319400 GASKET H/BAR A AS PVC
11
161-5 3011497200 COVER FRAME H/BAR ABS
11
161-6 3018125600 SWITCH H/BAR DR AS SP101B-2D1(T)
11
162 3015204500 STOPPER H/BAR DR *R PO T4.0
11
163 3015204400 STOPPER H/BAR DR *L PO T4.0
11
164 3011765000 DOOR H/BAR URT AS FRU-541F
11
- Some parts can be chaged for improving their perfomance without notice.
- Above parts number doesn't describe your own colour & printing. Please remind!
x
-
x
93
No. 161 Renumbering.
161
161-3
x
x
x
x
157
160
x
Date
A
mendment Note
07. 4. 6.
Q'ty
Refrigerator Doo
NO PART-CODE PART NAME SPEC.