EasyManua.ls Logo

Daikin 4MKD90BVM - Page 285

Daikin 4MKD90BVM
298 pages
Print Icon
To Next Page IconTo Next Page
To Next Page IconTo Next Page
To Previous Page IconTo Previous Page
To Previous Page IconTo Previous Page
Loading...
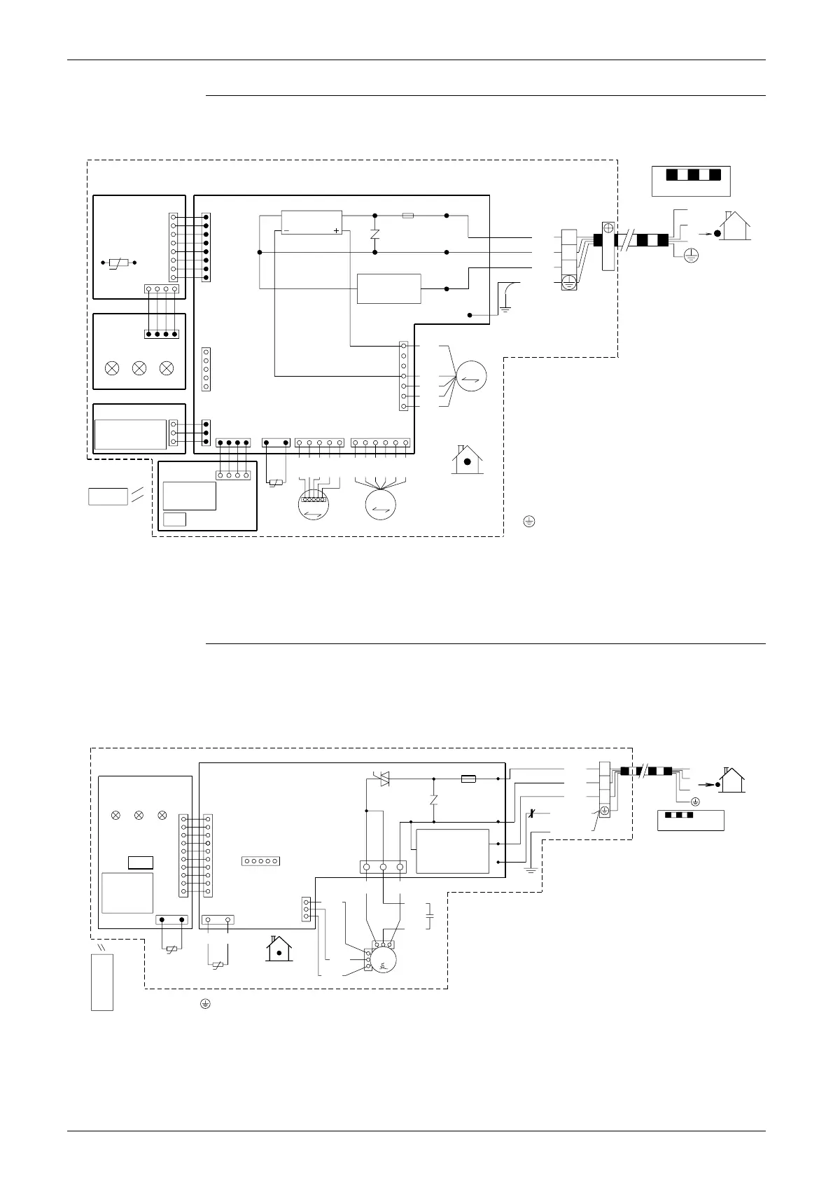
Wiring Diagrams Si12-411A
274 Appendix
FTKD50/60/71BVM, FTK(X)D50/60/71BVMA
FTK(X)S60/71BVMB, FTXS60/71BVMA(8)
2.1.2 Duct Connected Type
CDKD25/35/50/60CVM, CDK(X)D25/35/50/60CVMA, CDK(X)S25/35/50/60CVMB, CDXS25/35/50/60CVMA
CONTROLLER
WIRELESS
REMOTE
PCB4
PCB3
PCB5
INTELLIGENT EYE
LED1
H1P
R1T
SENSOR
t
S37
S38
°
LED2
H2P
LED3
H3P
PCB2
S27
S36
S1W
RECEIVER
SIGNAL
S26
S35
S21
S29
S28
PCB1
R2T
S32
t°
~
RECTIFIER
1
RED
M1S
M
S6
ORG
YLW
~
PNK
5
BLU
1
TRANSMISSION
BRN
RED
CIRCUIT
M2S
S8
M
ORG
YLW
7
1
3.15A
S1
PNK
6
Fu
BLU
WHT
BRN
RED
BLU
ORG
H2
H3
H1
INDOOR
FG
M1F
M
GRN
R1T, R2T : THERMISTOR
M1S, M2S : SWING MOTOR
PCB1~ PCB5 : PRINTED CIRCUIT BOARD
WHT
RED
/
BLK
Fu : FUSE
M1F : FAN MOTOR
H1 ~ H3 : HARNESS
S1 ~ S38 : CONNECTOR
H1P ~ H3P : PILOT LAMP
FG : FRAME GROUND
YLW
X1M : TERMINAL STRIP
S1W : OPERATION SWITCH
X1M
3
2
1
: PROTECTIVE EARTH
THE MAIN POWER SUPPLY IS
ON AGAIN.
TURNED OFF AND THEN BACK
NOTE THAT OPERATION WILL
RESTART AUTOMATICALLY IF
FIELD WIRING.
CAUTION
3
2
1
3D038530J
OUTDOOR
PCB2
RECEIVER
SIGNAL
LED
H1P
CONTROLLER
REMOTE
WIRELESS
LED
H2P
S1W
LED
H3P
2
RTH1
R1T
t°
10
1
S1
1
C1
BRN
F1U :
S26
2
PCB1
S32
R2T
t°
1
10
:
:
BRN
S21
1
FUSE
(
CAPACITOR
(
M1F
)
PROTECTIVE EARTH
TERMINAL FOR
CENTRALIZED CONTROL
indoor
3
1
S7
BLU
GRY
PPL
S1
)
RED
6
V1TR
1
M1F
~
M
3
BLK
Q1M
130°C
1
WHT
YLW
TRANSMISSION
CIRCUIT
C1
3.15A
F1U
Q1M
M1F
V1TR
S1W
X1M
Z1C
H1P ~H3P
R1T ~R2T
PCB1 ~PCB2 :
S1 ~S32, RTH1
GND
H2
H3
H1
:
:
:
:
:
:
:
:
PHASE CONTROL CIRCUIT
NOISE FILTER
(
FERRITE CORE
)
THERMAL PROTECTOR
(
M1F EMBEDDED
)
Z1C
FAN MOTOR
THERMISTOR
PILOT LAMP
TERMINAL BLOCK
OPERATION SWITCH
PRINTED CIRCUIT BOARD
N=2
:CONNECTOR
GRN
GRN
WHT
/
/
BLK
RED
YLW
YLW
X1M
2
3
1
NOTE THAT OPERATION WILL
THE MAIN POWER SUPPLY IS
TURNED OFF AND THEN BACK
RESTART AUTOMATICALLY IF
ON AGAIN.
CAUTION
FIELD WIRING.
3D045012C
2
3
1
outdoor

Table of Contents

Related product manuals