EasyManua.ls Logo

Daikin 4MKD90BVM - Wiring Diagrams; Indoor Units

Daikin 4MKD90BVM
298 pages
Print Icon
To Next Page IconTo Next Page
To Next Page IconTo Next Page
To Previous Page IconTo Previous Page
To Previous Page IconTo Previous Page
Loading...
Si12-411A Wiring Diagrams
Appendix 273
2. Wiring Diagrams
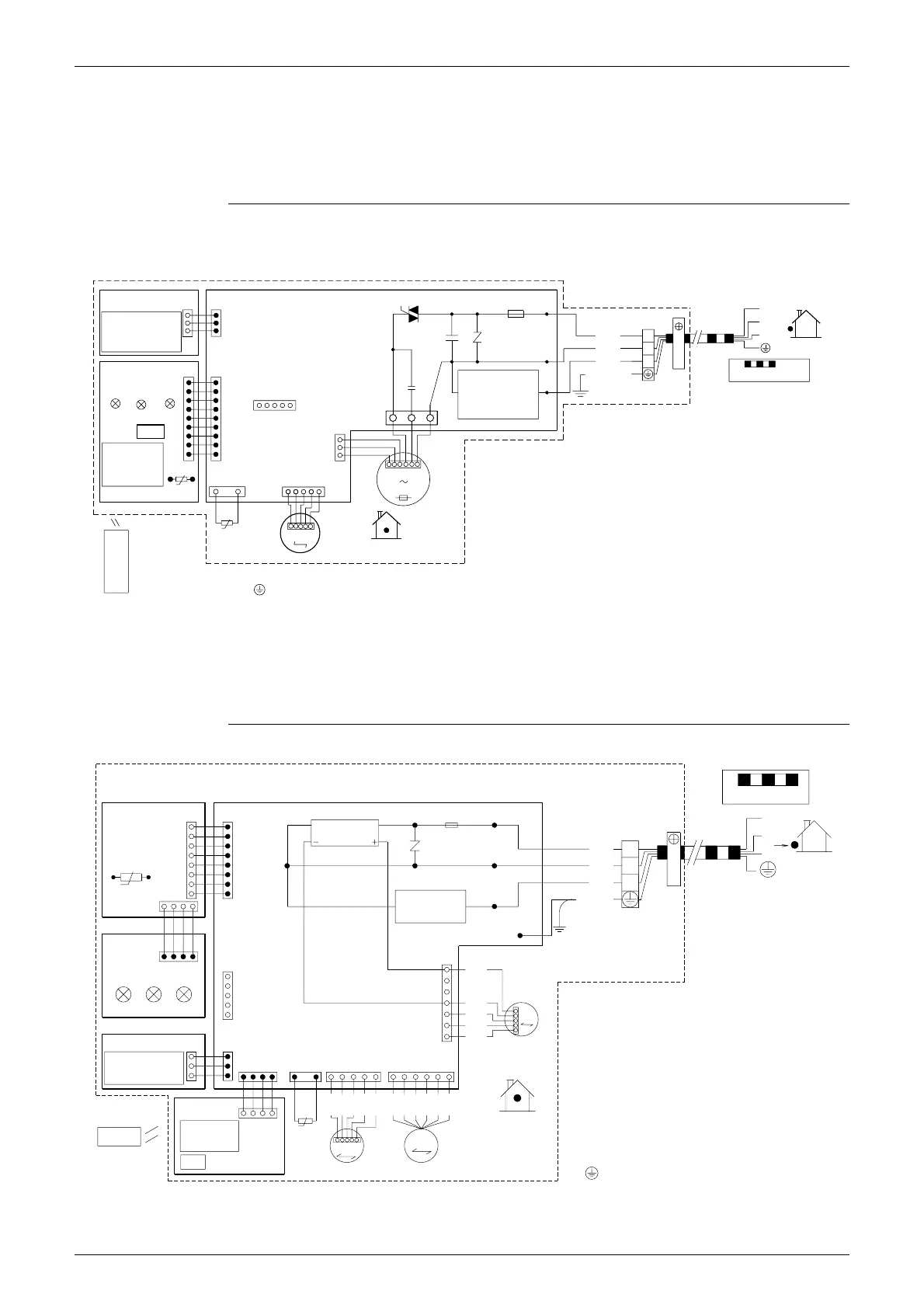
2.1 Indoor Units
2.1.1 Wall Mounted Type
FTKE25/35BVM, FTK(X)E25/35BVMA
FTK(X)S20CVMB(9), FTK(X)S25/35CVMB(9)(8), ATXS20/25/35CVMB(9), FTXS25/35BVMA
FTK(X)S50BVMB, FTXS50BVMA(8), ATXS50CVMB
LED1
PCB2
PCB3
H1P
EYE SENSOR
INTELLIGENT-
RECEIVER
SIGNAL
CONTROLLER
LED2
H2P
S1W
WIRELESS
REMOTE
LED3
H3P
R1T
S27
t°
S36 S35
S26
S32
R2T
t°
S21
PCB1
(
FU
C70
TERMINAL FOR
CENTRALIZED CONTROL
: FUSE
: PROTECTIVE EARTH
S6
: RUNNING CAPACITOR
M
M1S
S7
indoor
)
S1
1
t°
M
M1F
C70
140°C
TRANSMISSION
CIRCUIT
3.15A
Fu
X1M
M1F
M1S
S1W
H1P~H3P
S1~S36
PCB1~PCB3
R1T~R2T
H2
H3
H1
: PILOT LAMP
: FAN MOTOR
: SWING MOTOR
: PRINTED CIRCUIT BOARD
: THERMISTOR
: CONNECTOR
: OPERATION SWITCH
: TERMINAL STRIP
GRN
WHT
RED
BLK
/
YLW
X1M
2
3
1
NOTE THAT OPERATION WILL
THE MAIN POWER SUPPLY IS
TURNED OFF AND THEN BACK
RESTART AUTOMATICALLY IF
ON AGAIN.
CAUTION
FIELD WIRING.
2
3
1
outdoor
3D033599E
3D038065G
CONTROLLER
WIRELESS
REMOTE
PCB4
PCB3
PCB5
INTELLIGENT EYE
LED1
H1P
R1T
SENSOR
t°
S37
S38
LED2
H2P
LED3
H3P
PCB2
S27
S36
S1W
RECEIVER
SIGNAL
S26
S35
S21
S29
S28
PCB1
R2T
S32
t°
~
RECTIFIER
1
RED
M1S
M
S6
ORG
YLW
~
PNK
5
BLU
1
TRANSMISSION
BRN
RED
CIRCUIT
M2S
S8
M
ORG
YLW
7
1
3.15A
S1
PNK
6
Fu
BLU
WHT
BRN
RED
BLU
ORG
H2
H3
H1
INDOOR
M1F
FG
M
GRN
FG
Fu
H1~H3
H1P~H3P
M1F
M1S
,
M2S
PCB1~PCB5
R1T
,
R2T
S1~S38
S1W
X1M
WHT
RED
/
BLK
YLW
X1M
3
2
1
: SWING MOTOR
: THERMISTOR
: PROTECTIVE EARTH
THE MAIN POWER SUPPLY IS
ON AGAIN.
TURNED OFF AND THEN BACK
NOTE THAT OPERATION WILL
RESTART AUTOMATICALLY IF
FIELD WIRING.
CAUTION
3
2
1
OUTDOOR
: FRAME GROUND
: FUSE
: HARNESS
: PILOT LAMP
: FAN MOTOR
: PRINTED CIRCUIT BOARD
: CONNECTOR
: OPERATION SWITCH
: TERMINAL STRIP

Table of Contents

Related product manuals