EasyManua.ls Logo

Daikin Advanced plus - Page 173

Daikin Advanced plus
Print Icon
To Next Page IconTo Next Page
To Next Page IconTo Next Page
To Previous Page IconTo Previous Page
To Previous Page IconTo Previous Page
Loading...
7
FWEC3
Advanced plus electr
onic controller
FC66002765
   
.:     ,  
     

4
     :

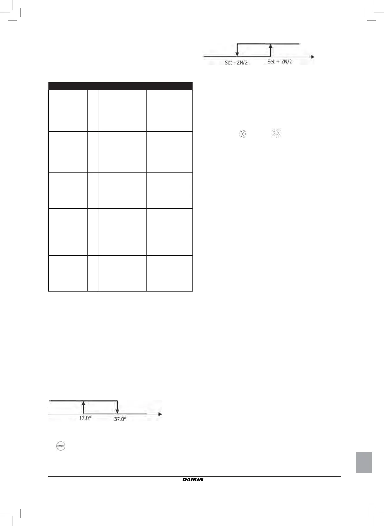
:
SET
       
ZN
    ( P03)
       
  
() 
()

 
      
:
-   ,     
 (3  4)
-  ,     0% 
100%
         
     (   )
   ,     
         
 P14.    ,     
       ()
(/OFF  ).    ,   
 ,       
    P14.     
  P14    
      .
:    ,  
 ,    
      
      
P00.       
 “ ”   
,    
     
      
    
 .     , 
    
 .
,       
     (  
 )   :
-      ON/OFF ( 
)  3 ,     
( ),
-      ON/OFF (  )
 4 ,     
( ),
-        3 ,
     (
),
-        4 ,
     (
),
-       ON/OFF,
     (
),
-      

  
 0-10V ( P14)
          
 14     ()  
   .    , 
      P14    
    .
ΤΥΠΟΣ ΜΟΝΑΔΑΣ P14
AOUT1 AOUT2
ΜΟΝΑΔΑ ΜΕ 2 Η
4 ΣΩΛΗΝΕΣ ΜΕ
ΒΑΛΒΙΔΑ(ΕΣ)
ΟΝ/OFF ΚΑΙ
ΑΝΕΜΙΣΤΗΡΑ
ΧΩΡΙΣ
ΔΙΑΜΟΡΦΩΣΗ
0
ΜΗ
ΧΡΗΣΙΜΟΠΟΙΟΥΜΕΝΗ
ΜΗ
ΧΡΗΣΙΜΟΠΟΙΟΥΜΕΝΗ
ΜΟΝΑΔΑ ΜΕ
2 ΣΩΛΗΝΕΣ
ΜΕ ΒΑΛΒΙΔΑ
ΔΙΑΜΟΡΦΩΣΗΣ
ΚΑΙ ΑΝΕΜΙΣΤΗΡΑ
ΧΩΡΙΣ
ΔΙΑΜΟΡΦΩΣΗ
1
ΔΙΑΜΟΡΦΩΣΗ
ΒΑΛΒΙΔΑΣ
--
ΜΟΝΑΔΑ ΜΕ
2 ΣΩΛΗΝΕΣ
ΜΕ ΒΑΛΒΙΔΑ
ΔΙΑΜΟΡΦΩΣΗΣ
ΚΑΙ ΑΝΕΜΙΣΤΗΡΑ
ΔΙΑΜΟΡΦΩΣΗΣ
2
ΔΙΑΜΟΡΦΩΣΗ
ΒΑΛΒΙΔΑΣ
ΔΙΑΜΟΡΦΩΣΗ
ΑΝΕΜΙΣΤΗΡΑ
ΜΟΝΑΔΑ ΜΕ
4 ΣΩΛΗΝΕΣ
ΜΕ ΒΑΛΒΙΔΕΣ
ΔΙΑΜΟΡΦΩΣΗΣ
(ΔΕΝ
ΕΠΙΤΡΕΠΕΤΑΙ Ο
ΑΝΕΜΙΣΤΗΡΑΣ
ΔΙΑΜΟΡΦΩΣΗΣ)
3
ΔΙΑΜΟΡΦΩΣΗ
ΒΑΛΒΙΔΑΣ ΚΡΥΟΥ
ΝΕΡΟΥ
ΔΙΑΜΟΡΦΩΣΗ
ΒΑΛΒΙΔΑΣ ΖΕΣΤΟΥ
ΝΕΡΟΥ
ΜΟΝΑΔΑ ΜΕ 2 Η
4 ΣΩΛΗΝΕΣ ΜΕ
ΒΑΛΒΙΔΑ(ΕΣ)
ΟΝ/OFF ΚΑΙ
ΕΞΑΕΡΙΣΜΟ
ΔΙΑΜΟΡΦΩΣΗΣ
4--
ΔΙΑΜΟΡΦΩΣΗ
ΑΝΕΜΙΣΤΗΡΑ
 
    RS485
  ,  Bus,    
   2 ,   
   RS485   (
,   GND).
       AWG 24
(. 0,511 mm)
         
 ( 4):
    «MASTER-SLA
VE»   
       
   .
.: (1)     :
  A(-)  B(+)
(2)     ( 
  )

 / 
 4      
 ,       
      ( P00):
1
:        
2 :       
1 ( : .   )
3
     


 


 

Related product manuals