EasyManua.ls Logo

Daikin AGZ045E - Dimensions and Weights - Packaged Units

Daikin AGZ045E
112 pages
Print Icon
To Next Page IconTo Next Page
To Next Page IconTo Next Page
To Previous Page IconTo Previous Page
To Previous Page IconTo Previous Page
Loading...
IOM 1206-7 • TRAILBLAZER
MODEL AGZ CHILLERS 20 www.DaikinApplied.com
dImensIons and WeIghTs - paCkaged UnITs
dImensIons and WeIghTs - paCkaged UnITs
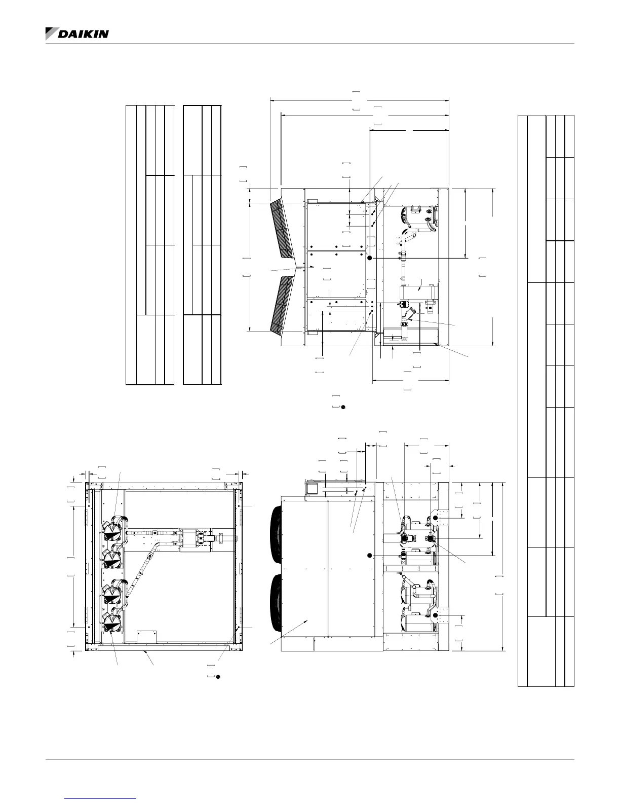
Figure 31: AGZ030E - AGZ035E
1822
71.8
209
8.2
REF.
2389
94.1
2546
100.2
165
6.5
370
14.6
2X
64
2.5
497
19.6
1094
43.1
22
.875
KNOCKOUTS
FIELD CONTROL
CONNECTIONS
QTY. 3
2235
88.0
DIMENSION DOES NOT INCLUDE
LIFTING BRACKETS
B
153
6.0
A
X
Y
CONTROL
BOX
FRONT LEFT
CORNER POST
PURPOSELY
HIDDEN
EVAP.
WYE-STRAINER
REQUIRED
(FACTORY OR FIELD
INSTALLED OPTION)
[22]
Ø.875
POWER ENTRY
KNOCKOUTS
FRONT OR
RIGHT SIDE
635
25.0
266
10.5
797
31.4
506
19.9
2396
94.3
506
19.9
51
2.0
80
3.2
152
6.0
127
5.0
Z
BLANK PANELS ARE
USED ON UNIT SIDES.
SLOPED 50" COILS
USED ON INSIDE.
[22]
Ø.875 KNOCKOUTS
POWER ENTRY KNOCKOUTS
ARE ON THE OPPOSITE
SIDE OF CONTROL BOX
EVAP.
WATER
INLET
EVAP.
WATER
OUTLET
L1
L2
L3
L4
337
13.3
1721
67.8
337
13.3
52
2.0
52
2.0
19
.750
QTY. 4
M1 - M4, ISOLATOR MOUNTING HOLE LOCATIONS ON BOTTOM SURFACE OF UNIT BASE
M3 M1
M2M4
L4 L2
L1L3
COMPRESSORS
CIRCUIT #2
COMPRESSORS
CIRCUIT #1
L1 - L4,
LIFTING
LOCATIONS
TOP VIEW WITH
COILS AND
FANS REMOVED
SHIPPING WEIGHT
OPERATING
WEIGHT
LBS (KG) LBS (KG) L1 L2 L3 L4 M1 M2 M3 M4
AGZ030E 2947 (1337) 2960 (1343) 1011 (459) 799 (362) 635 (288) 502 (228) 980 (445) 775 (352) 673 (305) 532 (241)
AGZ035E 2873 (1303) 2887 (1310) 1051 (477) 861 (391) 528 (240) 433 (196) 1005 (456) 824 (374) 581 (264) 476 (216)
PACKAGE UNITS WITH MICROCHANNEL COILS
UNIT MODEL
LIFTING (SHIPPING) WEIGHT BY CORNER LBS (KG) MOUNTING (OPERATING) WEIGHT LBS (KG)
X Y Z
AGZ030E 38.9 (988) 44.5 (1130) 40.9 (1039)
AGZ035E 39.7 (1008) 45.5 (1156) 38.1 (968)
UNIT MODEL
CG LOCATION, IN (MM)
PACKAGE UNITS WITH MICROCHANNEL COILS
A B
AGZ030E 24.2 (615) 2.9 (74) 2.5 (64)
AGZ035E 23.5 (597) 2.2 (56) 2.5 (64)
UNIT MODEL
EVAP. DIMENSIONS IN (MM) CONNECTION SIZE
(VICTAULIC)
NOTE: LIFTING WEIGHTS ARE BASED ON UNIT SHIPPING WEIGHTS.
MOUNTING WEIGHTS ARE BASED ON UNIT OPERATING WEIGHT WITH EVAPORATOR WATER INCLUDED.
SHIPPING AND OPERATING WEIGHTS DO NOT INCLUDE THE WEIGHTS OF ANY OPTIONS OR ACCESSORIES.
0B
334547101
AGZ-E, 4 FANS

Related product manuals