EasyManua.ls Logo

Daikin BRC7EA628 - Page 5

Daikin BRC7EA628
12 pages
Print Icon
To Next Page IconTo Next Page
To Next Page IconTo Next Page
To Previous Page IconTo Previous Page
To Previous Page IconTo Previous Page
Loading...
English 4
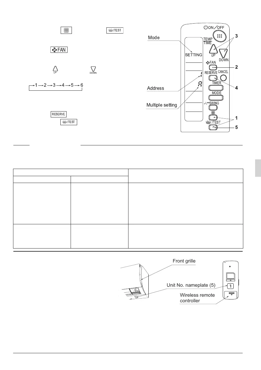
2. Setting the address of wireless remote controller (It is factory set to “1”)
¢Setting from the remote controller²
1. Hold down the button and the button
for at least 4 seconds to get the Field Set mode.
(Indicated in the display area in the figure at right.)
2. Press the button and select a multiple
setting (A/b). Each time the button is pressed the dis-
play switches between “A” and “b”.
3. Press the “ button and “ button to set the
address.
Address can be set from 1 to 6, but set it to 1 ~ 3 and
to same address as the receiver. (The receiver does
not work with address 4 ~ 6.)
4. Press the button to enter the setting.
5. Hold down the button for at least 1 second to
quit the Field Set mode and return to the normal
display.
Multiple settings A/b
When the indoor unit is being operated by outside control (central remote controller, etc.), it sometimes does
not respond to ON/OFF and temperature setting commands from this remote controller. Check what setting
the customer wants and make the multiple setting as shown below.
3.
Attach the included unit number nameplate (5)
to the front grill on the indoor unit and the back
of the wireless remote controller
.
[PRECAUTIONS]
Set the unit number of the receiver and the wire-
less remote controller to be equal. If the setting
differs, the signal from the remote controller
cannot be transmitted.
Remote controller
Movement when the operation is controlled by the
other air conditioners and equipment
Multiple setting Remote controller display
A: Standard All items displayed.
When operation changeover, temperature setting or
the like is carried out from the remote controller, the
indoor unit rejects the instruction.
(Signal receiving sound “peeh” or “pick-pick-pick”)
As a result, a discrepancy between the operation
state of the indoor unit and the indication of the
remote controller display occurs.
b: Multi System
Operations remain dis-
played shortly after exe-
cution.
All commands accepted.
(Signal receiving sound “pick-pick”)
Since the indication of the remote controller is turned
off, no discrepancy such as mentioned above occurs.
MODE
TIMER
RESERVE
CANCEL
DOWN
UP
/TEST
SWING
FAN
TIME
TEMP
ON OFF
SETTING
Mode
!
"
Address
Multiple setting
#
/TEST
FAN
72
DOWN
!"#$
4-5-48-
/TEST
Front grille
Unit No. nameplate (5)
Wireless remote
controller
3(1%ERRN3DJH:HGQHVGD\-DQXDU\30

Other manuals for Daikin BRC7EA628

Related product manuals