EasyManua.ls Logo

Daikin DC80VC - WIRING DIAGRAM DM80 VC;DC80 VC

Daikin DC80VC
52 pages
Print Icon
To Next Page IconTo Next Page
To Next Page IconTo Next Page
To Previous Page IconTo Previous Page
To Previous Page IconTo Previous Page
Loading...
50
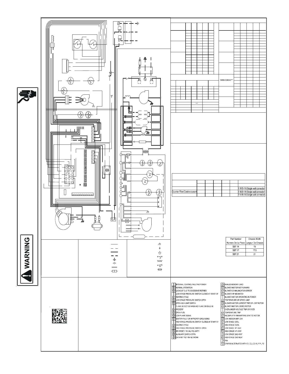
Wiring is subject to change. Always refer to the wiring diagram on the unit for the most up-to-date wiring.
HIGH VOLTAGE!
D
ISCONNECT
ALL
POWER
BEFORE
SERVICING
OR
INSTALLING
THIS
UNIT
.
M
ULTIPLE
POWER
SOURCES
MAY
BE
PRESENT
. F
AILURE
TO
DO
SO
MAY
CAUSE
PROPERTY
DAMAGE
,
PERSONAL
INJURY
OR
DEATH
.
TO +VDC
TO
MICRO
TO
R
GND (4)
+ VDC (1)
RX (2)
TX (3)
CIRCULATOR
INDOOR
AIR
BLWR
RD
GY
BL
BK
PROPERLY POLARIZED
HUMIDIFIER
GND
PROTECTION DEVICE
BURNER COMPARTMENT
POWER SUPPLY WITH
LINE
RD
TO
C
BK
RD
DISCONNECT POWER
IGNITER
FLAME SENSOR
INTEGRATED CONTROL MODULE
POWER BEFORE
BR
YL
TERMINAL
HI
BL
MVH (14)
PM
ECM MTR
HARNESS
NO
24 VAC
HI VOLTAGE FIELD
AUTO RES ET PRIMARY
LIMIT CONTROL
BEFORE SERVICING.
PS1 (2)
3
CIRCULATOR
BK
BK
OVERCURRENT
24V HUM.
IGNITER
115 VAC/1 /60 HZ
Ø
BLOWER COMPARTMENT
24
BK
PM
BK
INDUCED
DRAFT
BLOWER
HUM-OUT
C
3
115 VAC
INDUCTOR COIL
(ON SOME MODELS)
WH
YL
GND
TO 115VAC/ 1 /60 HZ POWER SUPPLY WITHØ
DEHU M
INTEGRATED CONTROL MODULE
GND
24V HUM.
2
WH
HOT
SURFACE
IGNITER
MVC (8)
NEUTRAL
DOOR
LOW FIRE PRESS.
SWITCH
4
3
2
CHASSIS GROUND
WH
VAC
LOW VOLTAGE (24V)
2 CIRCUIT
CONNECTOR
HUM
HI VOLTAGE (115V)
OVERCURRENT
PSO ( 7)
C
AIR CLEANER
TWO STAGE
GAS VALVE
(WHITE RODGERS)
DISCONNECT
HIGH FIRE
PRESS. SWTICH
INDOOR
HUMIDIFIER
N
BK
MANUAL RESET ROLLOUT
LIMIT CONTROLS
IND LO
40 VA
AUTO RESET AUXILIARY LIMIT
CONTROLS (TWO ON SOME MODELS)
YL
JUNCTION
BLWR
CIRCULATOR
BLOWER
R
1
GND
JUNCTION BOX
SWITCH (TEMP.)
NEUTRAL
BLOWER
COMPARTMENT
DOOR SWITCH
(OPEN WHEN
DOOR OPEN)
C
LINE
BK
4
NEUTRAL
POLARIZED AND
C
FS
2
PLUG CONNECTION
DISCONNECT
PU
RD
INTEGRATED CONTROL
PROT. DEVICE
HIGH FIRE
PRESSURE SWITCH
W1
INTERNAL TO
NO
EQUIPMENT GND
MVL (13)
O
SERVICING. WIRING
WH
YL
ID BLOWER TWO-STAGE PRESSURE
SWITCH ASSEMBLY
5
GND (5)
BK
IND HI
IGN
PK
HLO (10)
(ON SOME MODELS)
PU
L
AIR
WH
MANUAL RESET ROLLOUT LIMIT
CONTROLS
Y1
ELECTRONIC
Y2
RD
NEUTRAL
1
HLI (1)
WH
SWITCH
AUTO RESET PRIMARY
LIMIT CONTROL
NO
WH
TRANSFORMER
MUST BE PROPERLY
BL
OR
OVERCURRENT PROTECTION DEVICE
GN
2
GROUNDED.
LOW VOLTAGE FIELD
W2
WARNING:
FIELD GND
FIELD SPLICE
SWITCH (PRESS.)
11 5
NEUTRAL
BLWR
JUNCTION BOX
GND
1
AND GROUNDED.
BK
GAS
VAL VE
24V THERMOSTAT CONNECTIONS
PU
INDUCTOR COIL
TH (4)
C
HI
1
24V H UM .
TO UNIT MUST BE
VAC
G
C
TR (11)
GR
HOT SURFACE
FLAME
SENSOR
PS2 (12)
LOW FIRE
PRESSURE
SWITCH
1
INTEGRATED CONTROL MODULE
L
YL
3
WIRING TO UNIT
NO
NEUTRAL
N
BR
WH
40 VA
TRANSFORMER
ID
TO
MICRO
WARNING: DISCONNECT
PU
AUTO RESET
AUXILIARY LIMIT
CONTROL (TWO ON
SOME MODELS )
FUSE 3 A
2
HEAT OFF DLY
24 V
3 A
BL
G
12
2
TRIM ENABLE
4
5 CIRCUIT CONNECTOR
4 CIRCUIT MOTOR
CONNECTOR
DIP SWITCHES
4
1
FUSE
15
6
TRIM %
5
HEAT AF
LINE
2
RD
DEHUM ENABLE
2
9
14
Y2
3
HUM
1
YL
NEU TRAL
11
EAC
TWO-STAGE
IN TE GRAT ED
CONTROL
MODULE
8
WH
24 V T HERMOSTAT CONNEC TION S
W1
RD
R
BL
2
Y1
13
1
3
T-STAT
5
BR
BK
COOL PRFL
7
1
C
W2
3
FS
4
YL
YL
DIAGNOSTIC
LED'S
RD
O
DEHUM
10
OR
SEE
NOTE 5
COOL AF
GN
RD
BL
BK
HUM-
IN
HUM-
OUT
CONT FAN
HUM-IN
HUMIDIFIER
EAC
AUX
PU
SEE NOTE 6
COLOR
CODES:
PU
PURPLE
OR
ORANGE
YL YELLOW
BK BLACK
GR GREEN
BR BROWN
PK
PINK
RD RED
GY GRAY
BL
BLUE
WH
WHITE
TAP
Low
Stage
Cool
High
Stage
Cool
Low
Stage
Heat
High
Stage
Heat
MODEL
TAP Low
Stage
Cool
High
Stage
Cool
Low
Stage
Heat
High
Stage
Heat
A 412 631 784 1107 A 468 698 735 1012
B 570 839 851 1198 B 584 847 804 1098
C 718 1050 922 1316 C 738 1034 874 1201
D842
1239
981 1407 D 872 1253 934 1310
A 423 643 690 937 A 390 600 875 1250
B 582 782 743 1045 B 520 800 945 1350
C 690 982 807 1155 C 715 1100 1015 1450
D 802 1200 870 1254 D 910 1400 1085 1550
A 532 817 976 1401 A 465 730 735 1012
B 732 1123 1048 1495 B 584 878 804 1098
C 942 1445 1121 1579 C 780 1056 874 1201
D 1197 1861 1192 1684 D 924 1224 934 1310
A 556 848 1150 1591 A 588 857 908 1234
B 838 1177 1188
1646
B 742 1051 986 1365
C 1031 1480 12111 1792 C 878 1284 1061 1501
D 1299 1881 1284 1790 D 1049 1616 1142 1618
A 520 800 1050 1500
B 715 1100 1120 1600
C 910 1400 1190 1700
D 1170 1800 1260 1800
Tap
S3- 1 S3- 2 S3- 3 S3- 4 S4-1 S4-2 S4- 3 S4-4
A 582 830 1386 1998
A
OFF OFF OFF OFF OFF OFF OFF OFF B 786 1139 1405 2007
B
ON OFF ON OFF ON OFF ON OFF C 1047 1561 1415 2022
C
OFF ON OFF ON OFF ON OFF ON D 1326 1966 1435 2047
D
ON ON ON ON ON ON ON ON A 520 800 1210 1725
Profile
B 715 1100 1225 1750
A
C 910 1400 1245 1775
B
D 1170 1800 1260 1800
C
D
60 sec @ 100%
---- 7.5 min @82%
60 sec @ 100%
To Set Airflow: (1) Select model and desired High Stage Cooling Airflow. Determine the corresponding tap (A, B, C, or D). Set dip
switches S3-1* and S3-2* to the appropriate ON/OFF positions. (2) Select model and desired High Stage Heating Airflow. Determine
The corresponding tap (A, B, C, or D). Set dip switches S4-3* and S4-4* to the appropriate ON/OFF positions. (3) Selecting Airflow
A
djustment Factor: For 0% trim set S5-2* to OFF (trim disabled). If trim is desired set S5-2* to ON (trim enabled) and set S3-3* and S3-4*
to appropriate ON/OFF positions. Tap A is +5%, Tap B is -5%, Tap C is +10%, Tap D is -10%. To Set Comfort Mode: Select
Desired Comfort Mode profile (see profiles above). Set dip switches S4-1* and S4-2* to the appropriate ON/OFF positions.
Dehumidification: To enable, set switch S5-1* to ON. Cooling airflow will be reduced to 85% of nominal value during cool call. To
disable, set switch S5-1* to OFF. Continuous Fan Speed: Set dip switches S5-3* and S5-4* to select one of 4 continuous fan speeds
(25%, 50%, 75%, or 100%). “See installation manual for details” *the “S” number refers to one of four labeled dip switch section each
containing 4 individual dip switches. The following number refers to the individual labeled dip switch within that section.
30 sec @ 50% 7.5 min @82%
30 sec @ 50%
DC80VC0805C*** DM80VC0803B***
DM80VC0804C***
Speed Selection Dip Switches
Cool Selection
Switches
Adjust Selection
Switches
Profile Selection
Switches
Heat Selection
Switches
DM80VC0805D***
DM80VC1005C***
DC80VC0803B***
DC80VC0603B***
MODEL
DM80VC0603B***
DM80VC0604B***
DC80VC1005C***
60 sec @ 100%
Pre-Run Off Delay Short Run
----
---- 30sec @ 50%
4. UNIT MUST BE PERMANENTLY GROUNDED AND CONFORM TO N.E.C. AND LOCAL CODES.
REPLACED, IT MUST BE REPLACED WITH WIRING MATERIAL HAVING A TEMPERATURE
3. IF ANY OF THE ORIGINAL WIRE AS SUPPLIED WITH THE FURNACE MUST BE
6. HUMIDIFIER INSTALLATION OPTIONS: USE HUM TERMINAL TO RUN HUMIDIFIER DURING HEAT CALL
2. MANUFACTURER’S SPECIFIED REPLACEMENT PARTS MUST BE USED WHEN SERVICING.
1. SET HEAT ANTICIPATOR ON ROOM THERMOSTAT AT 0.7 AMPS.
RATING OF AT LEAST 105°C. USE COPPER CONDUCTORS ONLY.
NOTES:
5. TO RECALL THE LAST 6 FAULTS, MOST RECENT TO LEAST RECENT, DEPRESS SWITCH
FOR MORE THAN 2 SECONDS WHILE IN STANDBY (NO THERMOSTAT INPUTS).
(COMMUNICATING OR LEGACY MODES). USE HUM-IN AND HUM-OUT TERMINALS TO RUN
HUMIDIFIER DURING HEAT CALL (COMMUNICATING MODE OR LEGACY MODE) OR INDEPENDENTLY
FROM HEAT CALL (COMMUNICATING MODE ONLY - SETUP IS DONE WITHIN COMMUNICATING
THERMOSTAT)
This furnace must be installed in accordance with the manufacturer’s instructions and local codes.
In the absence of local codes, follow the National Fuel Gas Codes. ANSI Z223.1, or CAN/CGA-b149
Installation Codes.
Cenérateur d’air chaud doit être installé conformément aux instructions du fabricant et aux
codes locaux. En l’absence de code local, respecter la norme ANSI Z223.1, Intitulé National Fuel
Gas Code ou les codes d’installation CAN/CGA-b149.
Line contact only permissible between lines formed by intersections of top and two sides of furnace
jacket, and building joists, studs or framing.
Les seuls points de contact admissible se trouvent entre les lignes formées par les intersections du
dessus et des deux côtés de l’enveloppe du générateur d’air chaud, et les solivers, les pout res ou
la charpente du bâtiment.
1) All positioning is determined as installed unit is view from front.
Tous les positions sont determinées telles que vues de l’avant de l’appareil installé.
2) Allow 24” minimum service clearance.
Prévoir un dégagement minimum de 24” pouces pour les interventions de dépannage.
+ For installation on combustible flooring.
Installer sur un plancher combustible.
# For installation on non combustible flooring only.*
Installer sur un plancher non combustible seulement.*
* For installation on combustible flooring only when
installed on special base Part no.
Pour les planchers combustibles, n’installer que sur
les socle spécial n*.
For use with natural gas and propane. A conversion kit as supplied by the manufacturer, shall be
used to convert this furnace to the alternate fuel.
Pour utilisation avec le gaz naturel et le propane. Une troussede conversion fournie par le fabricant
doit être utilisee pour passer d’un combustible a l’autre.
WH
FIELD INSTALL OPTION
GND
Minimum Clearance to Combustible Materials in Alcove or Closet installations (in.)
Dégagements minimum des matériaux pour une installation en alcôve ou en amoire (en pouces)
Position
Upflow/Courant ascendant
Horizontal/Horizontale
Sides
tes
Front
Avant
Rear
Amére
Top
Haut
Bottom
Bas
Vent
Ventilation
1
1
11
1
1
3
3
Alcove
0
0
0
+
#*
+
0140F02430-A
W
IRING
D
IAGRAM
DM
80
VC
/
DC
80
VC

Table of Contents

Related product manuals