EasyManua.ls Logo

Daikin DFC0361D - Page 62

Daikin DFC0361D
72 pages
Print Icon
To Next Page IconTo Next Page
To Next Page IconTo Next Page
To Previous Page IconTo Previous Page
To Previous Page IconTo Previous Page
Loading...







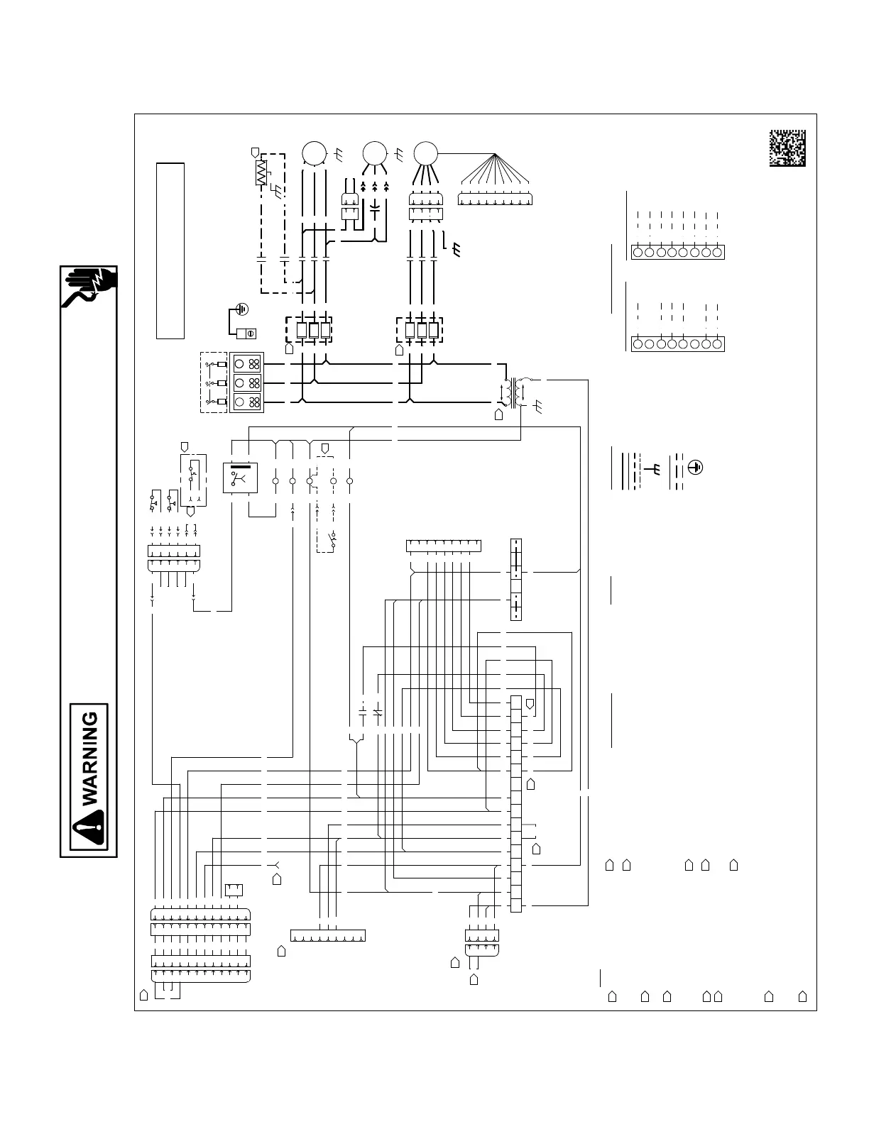
BC BLOWER CONTACTOR
BM BLOWER MOTOR
CAP CAPACITOR
CB CIRCUIT BREAKER
CC COMPRESSOR CONTACTOR
CCH CRANKCASE HEATER
CCP COMPRESSOR/COIL PROTECTION
CHR CRANKCASE HEATER RELAY
CHS
CRANKCASE HEATER SWITCH
CM
CONDENSER MOTOR
COMP
COMPRESSOR
CS COMPRESSOR SOLENOID
ECON ECONOMIZER
EHK ELECTRIC HEATER KIT
ES
EMERGENCY SHUTDOWN
FB FUSE BLOCK
FPS FREEZE PROTECTION SWITCH
GND EQUIPMENT GROUND
HPS HIGH PRESSURE SWITCH
LPS LOW PRESSURE SWITCH
MAT
MIXED AIR TEMP. SENSOR
PB POWER DISTRIBUTION BLOCK
PLF
FEMALE PLUG/CONNECTOR
PLM MALE PLUG/CONNECTOR
RLY RELAY
TB TERMINAL BLOCK
TON ON - DELAY TIMER RELAY
TR TRANSFORMER
PLF
PLM
4
3
2
1
4
3
2
1
ES
EHK
PLF
9
8
7
6
5
4
3
2
1
GR
2
4
6 8
BK
RD
CCH
BK
CHR
BK
CHR
7
WH
RD
5A
5B
WH
TB1 TSTAT
W
G
R
Y
C
O
WH
GR
PK
YL
BL
OR
W1
W2
G
R
Y1
Y2
C
O
TB1 TSTAT
W1
G
R
Y1
C
O
WH
GR
PK
YL
BL
OR
W1
W2
G
R
Y1
Y2
C
O
BR W2
PU Y2
BL
RD
GY
GR
YL
PU
WH
BR
BK
11
10
9
8
7
6
5
4
3
2
1
12
11
10
9
8
7
6
5
4
3
2
1
ECON
PLF EXT
ECON
PLM
12
11
10
9
8
7
6
5
4
3
2
1
12
11
10
9
8
7
6
5
4
3
2
1
12
ECON
PLM
YL
PU
PU
YL
BL
GR
GY
WH
PK
WH
BR
OR
PUYL
MAT
PLF
2
1
BK
BK
1
2
3
4
5
6
1
2
3
4
5
6
LPS
BL
BK
BL
HPS
YL/PK
BK
YL
PLF
CCP
PLM
YL/PK
BL/PK
BK
YL
BL/PK
BR
YL
BK
YL
9
FPS
BK
BK
9
CHS
RD
BL
RD
PK
7
CHR
1 0
PK BL
GND
10
11
1
8
2
3
9
4
5A
5B
7
11
10
6
NO
T
ES
REPLACEMENT WIRE MUST BE SAME SIZE
AND TYPE OF INSULATION AS ORIGINAL (AT
LEAST 105° C). USE COPPER CONDUCTORS
ONLY. USE N.E.C. CLASS 2 WIRE FOR ALL
LOW VOLTAGE FIELD CONNECTIONS.
IF OPTIONAL ECONOMIZER IS INSTALLED
REMOVE ECON PLM JUMPER AND PLUG IN
NEW HARNESS FROM ECONOMIZER KIT.
TR1 PRIMARY (HIGH VOLTAGE) CONNECTIONS:
ORANGE WIRE CONNECTED TO 240/460/575V
TAP AT THE FACTORY AND BLACK WIRE TO COM
TERMINAL. FOR 208V SUPPLY POWER, MOVE
ORANGE WIRE FROM 240V TAP TO THE 208V
TAP.
FUSE BLOCKS 1-2 ARE OPTIONAL.
IF OPTIONAL SAFETY EQUIPMENT SUCH AS A
PHASE MONITOR, FLOAT SWITCH OR SMOKE
DETECTOR IS INSTALLED, UNPLUG JUMPER
PLUG AND PLUG IN SAFETY DEVICE. IF
MULTIPLE SAFETIES ARE INSTALLED, PLUG IN
THE ADDITIONAL DEVICES IN SERIES. PLUG
IN JUMPER PLUG AT THE LAST SAFETY
DEVICE INSTALLED.
IF A THIRD PARTY SAFETY DEVICE IS FIELD
INSTALLED, CUT THE RED WIRE ON THE
JUMPER PLUG AND WIRE A NORMALLY
CLOSED DRY CONTACT IN SERIES WITH THE
CUT WIRE.
24 VAC ALARM OUTPUT FROM OPTIONAL
ECONOMIZER CONTROL MODULE.
CHR, CCH, CHS AND ALL ASSOCIATED
WIRING ARE OPTIONAL.
TO CHANGE EVAPORATOR MOTOR
SPEED, MOVE GREEN (FAN ONLY),
YELLOW (COOLING STG1), PURPLE
(COOLING STG2) OR WHITE (HEATING)
WIRES TO APPROVED SPEED TAPS, SEE
TABLE. ONLY PURPLE AND WHITE WIRE
CAN BE ON THE SAME SPEED TAP. SEE
INSTALLATION INSTRUCTIONS FOR
FURTHER DETAILS ON ADJUSTING
MOTOR.
REMOVE BLACK JUMPER WIRE IF
OPTIONAL FREEZESTAT IS INSTALLED.
IF OPTIONAL ELECTRIC HEAT IS
INSTALLED PLUG IN NEW HARNESS FROM
ELECTRIC HEATER KIT. FOR TWO STAGE
HEAT, REMOVE JUMPER ON TB1.
MOVE GRAY (GY) WIRE TO TB1 - S2 TO
ENABLE T6-T10 SPEED TAP, SEE TABLE.
10
6
2
L1
CC
L2
T2
T1
L3 T3
L1
BC
L2
T2
T1
L3 T3
4
FB2
F2
F2
F2
4
FB1
F1
F1
F1
CC
A1 A2
YL BL
BC
A1 A2
PK BL
RLY
1 0
PU BL
8
ALL
O
WABLE SPEED TAPS
T1 T2
T3 T4 T5 T6
T7
T8
T9
T10
FAN ONLY (GR) X - - - - X - - - -
COOLING STG1 (YL)
-
X - - - - X
-
-
-
COOLING STG2 (PU) -
-
-/X X X - -
-/X X
X
HEATING (WH) -
-
X -/X X - - X -/X X
TB1- DH = 0 VAC, USE SPEED TAP T1 - T5.
TB1 - DH = 24 VAC, USE SPEED TAP T6 - T10.
CS
V1 V2
YL BL
W
IRE COD
E
BLACK
BLUE
BLUE WITH PINK STRIPE
BROWN
GREEN
GRAY
ORANGE
PINK
PURPLE
RED
TAN
WHITE
YELLOW
YELLOW WITH PINK STRIPE
BK
BL
BL/PK
BR
GR
GY
OR
PK
PU
RD
TN
WH
YL
YL/PK
HIGH VOLTAGE
LOW VOLTAGE
OPTIONAL HIGH VOLTAGE
OPTIONAL LOW VOLTAGE
CHASSIS GROUND
FIE
LD
W
IRIN
G
FACTOR
Y
W
IRIN
G
HIGH VOLTAGE
LOW VOLTAGE
EARTH GROUND
CO
MP
ON
EN
T
LE
GEND
0140L07365-A
W2
Y1
O
Y2
S2
R
W1
C
S1
G
RD
DH
BR
B
A
C D
T1 T2 T3 T4
T5
PU
PU
THERMOSTAT ++
TB1
PK
RD
BL
WH
BR
BR
WH
YL
RD
RD
PK
BL
YL
COM
CB
GR
TB2
BL
BL
BL
RD
PK
GR
GR
PU
PU
BL
COMP
RD
BK
L3
L1
CAP
CM
PB
L1
L2 L3
LINE
VOLTAGE
PU
BR
BK
PU
BR
BK
RD
OR
BK
RD
OR
BK
RD
YL
L2
208-230/460/575V/3PH/60Hz
BK
PU
BK
PLF
PLM
CM
BK
BK
OR
POWER AND CONTROLS WIRING DIAGRAM
DFC072, 3 PHASE, DIRECT DRIVE
GR
GR
M
1~
M
3~
RD
BK
BK
RD
OR
BK
RD
OR
OR
BK
BL
PU
PK
YL
GR
PUBR
T
HERMOSTAT FI
ELD
W
IRIN
G++
1 STAGE COOLING/HEATING
2 STA
GE COOLING/HEATING
GR
L1
L2
L3
GR
BM
PLF2
PLM2
BK
RD
OR
BM
PLM1
BK
RD
OR
M
3~
GR
BM
TON
t = 180s
R1
Y1
BL
Y2
R2
BK
YL
BL
BM
PLF1
PU
YL
GR
WH
BR
PU
YL
GR
WH
BR
GY
BL
GY
YL
BL
GR
WH
PK
GY
BR
BK
GY
BL
PK
PK
PK
PK
PK BL
BL
PK BL
PK
RD
BL
BL
WHGR YL
WH
GR
YLWH
GR
RLY
7
8
PU
RLY
2
4
PU
PU
WH
WH
GY
GY PU
PU
YL
YL
YL
1
2
3
4
5
6
7
8
9
2
1
2
1
4
3
2
1
4
3
2
1
9
8
7
6
5
4
3
2
1
RD
3
TR1