EasyManua.ls Logo

Daikin DFC0361D - Page 63

Daikin DFC0361D
72 pages
Print Icon
To Next Page IconTo Next Page
To Next Page IconTo Next Page
To Previous Page IconTo Previous Page
To Previous Page IconTo Previous Page
Loading...







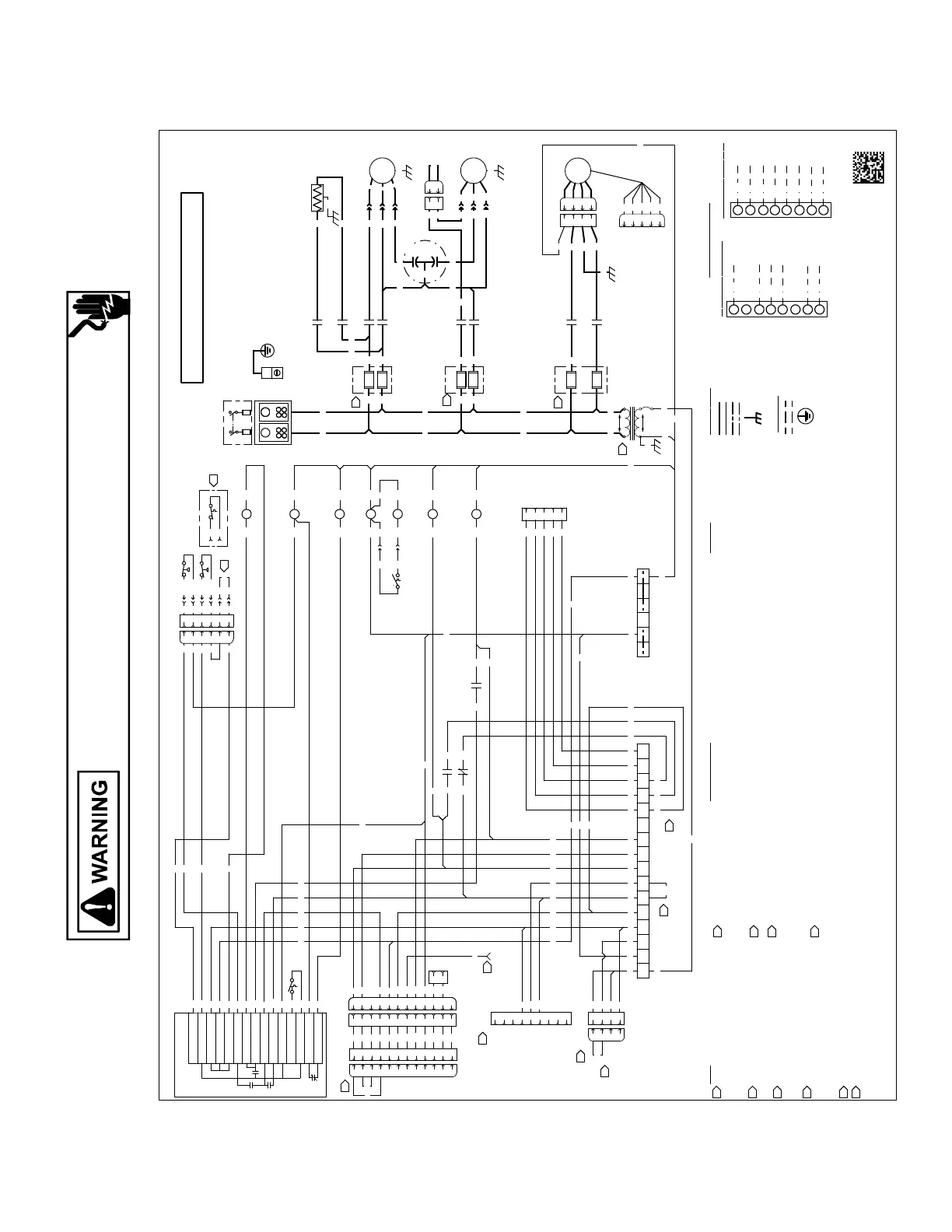
BC
BLOWER CONTACTOR
BM
BLOWER MOTOR
BR
BLOWER RELAY
CAP
CAPACITOR
CB
CIRCUIT BREAKER
CC
COMPRESSOR CONTACTOR
CCH
CRANKCASE HEATER
CCP
COMPRESSOR/COIL PROTECTION
CHR
CRANKASE HEATER RELAY
CHS
CRANKCASE HEATER SWITCH
CM
CONDENSER MOTOR
CMC
CONDENSER MOTOR CONTACTOR
COMP
COMPRESSOR
DFT
DEFROST TEMPERATURE SWITCH
DR
DEFROST RELAY
ECON
ECONOMIZER
EHK
ELECTRIC HEAT KIT
ES
EMERGENCY SHUTDOWN
FB
FUSE BLOCK
FPS
FREEZE PROTECTION SWITCH
GND
EQUIPMENT GROUND
HPS
HIGH PRESSURE SWITCH
MAT
MIXED AIR TEMP. SENSOR
LPS
LOW PRESSURE SWITCH
PB POWER DISTRIBUTION BLOCK
PLF
FEMALE PLUG/CONNECTOR
PLM
MALE PLUG/CONNECTOR
RVC REVERSING VALVE COIL
TB
TERMINAL BLOCK
TR TRANSFORMER
1
2
3
4
5
6B
8
9
7
6A
3
2
5
5
4
9
FPS
BK
BK
9
11
10
9
8
7
6
5
4
3
2
1
12
11
10
9
8
7
6
5
4
3
2
1
ECON
PLF EXT
ECON
PLM
12
11
10
9
8
7
6
5
4
3
2
1
12
11
10
9
8
7
6
5
4
3
2
1
12
ECON
PLM
YL
PU
PU
YL
BL
GR
GY
WH
PK
WH
BR
OR
PU
YL
MAT
PLF
2
1
BK
BK
CHS
RD
BL
RD
PK
CHR
1 0
PK BL
BC
A1 A2
PK
BL
8
3
ALLOWABLE SPEED TAPS
T1
T2
T3 T4 T5
FAN (GR)
X*
-
-
-
-
COOLING (YL) -
X*
X
X
X
HEATING (WH) - X X* X X
RVC
V1 V2
BK
BL
6A
6B
7
RD
4
3
2
1
4
3
2
1
O-RV
R-PS1
R-DFT
PS2
R
O
C-RV
C
C
DFT
DF1
DF2
PCB
W
CNT
Y
9
8
7
6
5
4
3
2
1
BL
BK
GR
RD
BK
BL
BL
5
4
3
2
1
BK
RD
POWER AND CONTROLS WIRING DIAGRAM
DFH036-060, 1 PHASE, DIRECT DRIVE
BK
OR
BL
BL
N
G
L
C
N
G
L
C
4
3
2
1
5
6
5
4
3
2
1
6
5
4
3
2
1
2
1
2
1
DEFROST CONTROL
THER
MOSTAT
F
IELD WIRI
NG
++
1
S
T
AG
E
C
O
OLI
NG/HE
A
T
ING
2 S
TA
GE COOL
I
NG/HEA
T
ING
TB1 TSTAT
W1
G
R
Y1
C
O
WH
GR
PK
YL
BL
OR
W1
W2
G
R
Y1
Y2
C
O
W2
BR
Y2
PU
TB1 TSTAT
W
G
R
Y
C
O
WH
GR
PK
YL
BL
OR
W1
W2
G
R
Y1
Y2
C
O
THERMOSTAT++
IF A THIRD PARTY SAFETY DEVICE IS FIELD
INSTALLED, CUT THE RED WIRE ON THE
JUMPER PLUG AND WIRE A NORMALLY
CLOSED DRY CONTACT IN SERIES WITH
THE CUT WIRE.
24 VAC ALARM OUTPUT FROM OPTIONAL
ECONOMIZER CONTROL MODULE.
TO CHANGE EVAPORATOR MOTOR SPEED,
MOVE GREEN (FAN ONLY), YELLOW
(COOLING), OR WHITE (HEATING) WIRES TO
APPROVED SPEED TAP. SEE INSTALLATION
INSTRUCTIONS FOR FURTHER DETAILS ON
ADJUSTING MOTOR.
REMOVE BLACK JUMPER WIRE IF OPTIONAL
FREEZESTAT IS INSTALLED.
CCH
BK
RD BK
BK
CHR
CHR
REPLACEMENT WIRE MUST BE SAME SIZE AND
TYPE OF INSULATION AS ORIGINAL (AT LEAST 105°
C). USE COPPER CONDUCTORS ONLY. USE N.E.C.
CLASS 2 WIRE FOR ALL LOW VOLTAGE FIELD
CONNECTIONS.
IF OPTIONAL ECONOMIZER IS INSTALLED REMOVE
ECON PLM JUMPER AND PLUG IN NEW HARNESS
FROM ECONOMIZER KIT.
IF OPTIONAL ELECTRIC HEAT IS INSTALLED,
PLUG IN NEW HARNESS FROM ELECTRIC
HEATER KIT.
FOR TWO STAGE HEAT, REMOVE
JUMPER ON TB1.
TR1 PRIMARY (HIGH VOLTAGE) CONNECTIONS:
ORANGE WIRE CONNECTED TO 240V TAP AT THE
FACTORY AND BLACK WIRE TO COM TERMINAL. FOR
208V SUPPLY POWER, MOVE ORANGE WIRE FROM
240V TAP TO THE 208V TAP.
FUSE BLOCKS 1, 2, & 3 ARE OPTIONAL
IF OPTIONAL SAFETY EQUIPMENT SUCH AS A PHASE
MONITOR, FLOAT SWITCH OR SMOKE DETECTOR IS
INSTALLED, UNPLUG JUMPER PLUG AND PLUG IN
SAFETY DEVICE. IF MULTIPLE SAFETIES ARE
INSTALLED, PLUG IN THE ADDITIONAL DEVICES IN
SERIES. PLUG IN JUMPER P
LUG AT THE LAST SAFETY
DEVICE INSTALLED.
BR
1 0
YL BL
TR1
CB
GR
TB1
ES
PLM
ES
PLF
RD
RD
PK
GR
RD
PK
YL
PU
BL
GR
OR
PK
BL
TB1
W2
Y1
O
Y2
S2
R W1
C
S1
G
DH
T1
T2
T3
T4
T5
YL
WH
PU
PU
WH BR
YL
GR
TB2
B
A C D
BL
BL
WIRE CODE
BLACK
BLUE
BLUE WITH PINK STRIPE
BROWN
GREEN
GRAY
ORANGE
PINK
PURPLE
RED
TAN
WHITE
YELLOW
YELLOW WITH PINK STRIPE
BK
BL
BL/PK
BR
GR
GY
OR
PK
PU
RD
TN
WH
YL
YL/PK
HIGH VOLTAGE
LOW VOLTAGE
OPTIONAL HIGH VOLTAGE
OPTIONAL LOW VOLTAGE
CHASSIS GROUND
FIELD W
I
RING
FA
CTORY
WIR
I
NG
HIGH VOLTAGE
LOW VOLTAGE
EARTH GROUND
CO
MPONENT LEG
END
RD
RD
COM
BL
GR YL
WH PU
BL
YL
BL
YL
EHK
PLF
YL
DFT
YL
PU
PU
BL
BRBR
WH
BR
WH
PK
GY
BK
RD
RD
BL
BL
BL
BR
WH
BL
BR
PB
L1
GND
L2
LINE
VOLTAGE
FB1
F1
F1
BK
RD
208-230V/1PH/60Hz
L1
L2
T1
T2
C
S
CMBR
RD
GR
FB3
F3
F3
RD
YL
BR
BK
PU
PU
BK
5
L1
L2
T1
T2
BK
BC
COMP
CAP
COM
PU
PU
CMC
L1
L2
T1
T2
GR
YL
PU
BR
BM
PLF1
WH
FB2
F2
F2
BK
RD
BK
PU
BR
R
BK
PU
YL
GR
WH
BR
PLM2
BM
PLF2
BM
PLM1
BM
BM
PK
PK
RD
PK
GR
GR
M
1~
M
1~
M
1~
BR
HPS
LPS
CCP
PLF
CCP
PLM
BL
BL
YL
YL
BL/PK
YL/PK
YL/PK
BL/PK
PU
BK
BK
BK
BK
YL
PU
PU
PK
PK
BK
CC
BK
PLF
CM
PLM
CM
YL
0140L07473-A
OR
WH
BK
PK
GR
YL
WH
BL OR
DR
2
4
GY
BL
NOTES
GR
2 4
6 8
GY
GY
GY
YL
GR
GR
YL
WH
PK
BL
RD
BK
RD
FAN
HERM
PU
BR
PU
BL
BK
BK
BK
RD
BR
7
8
YL
BR
2
4
YL
YL
WH
WH
X* DENOTES DEFAULT FACTORY WIRING.
OR
OR
DR
1 3
OR BL
CC
A1 A2
YL BL
CMC
A1 A2
YL BL