EasyManua.ls Logo

Daikin DR80TC - Wiring Diagram

Daikin DR80TC
12 pages
Print Icon
To Next Page IconTo Next Page
To Next Page IconTo Next Page
To Previous Page IconTo Previous Page
To Previous Page IconTo Previous Page
Loading...
10     11
Wiring Diagram
9 8 7 6 5 4 3 2 1
9 8 7 6 5 4 3 2
F
C
D
E
B
A
C
D
E
B
A
SC
3 2
1
F
0140F20013
CC
10.25
±
.10
FRAME
10.75
±
.10
LABEL
5.50
±
.10
FRAME
6.00
±
.10
LABEL
.25
TYP
SPECIAL CHARACTERISTICS: (REFER MSP 822-01 FOR DETAILS)
= CRITICAL CHARACTERISTIC REQUIRES AN INITIAL CPK OF 1.33 AND USE OF STATISTICAL PROCESS CONTROL.
= SIGNIFICANT CHARACTERISTIC REQUIRES AN INITIAL CPK OF 1.00 AND USE OF STATISTICAL PROCESS CONTROL.
INABILITY TO MEET THE REQUIRED INITIAL CPK VALUE WILL REQUIRE 100% INSPECTION.
COMPONENTS AND MATERIALS SPECIFIED HEREIN SHALL COMPLY WITH GOODMAN S4900170 MATERIALS OF CONCERN SPECIFICATION
COMPONENTS AND MATERIALS SPECIFIED HEREIN SHALL CONFORM TO THE APPLICABLE SECTION OF GOODMAN MSP 860-01
WORKMANSHIP STANDARD.
CONFIDENTIAL PROPERTY OF DAIKIN COMFORT TECHNOLOGIES MANUFACTURING, L.P. OR ITS AFFILIATES NOT TO BE DISCLOSED TO
OTHERS, COPIED, OR USED FOR ANY PURPOSE EXCEPT AS AUTHORIZED IN WRITING. MUST BE RETURNED UPON DEMAND,
ON COMPLETION OF ORDER, OR OTHER PURPOSE FOR WHICH IT WAS LENT
DATEENGCHKDESCRIPTIONREVECN/DR
09-21-23CKINITIAL RELEASEA2331385
DAIKIN COMFORT TECHNOLOGIES MANUFACTURING, L.P.
DRAWING TO BE INTERPRETED IN
ACCORDANCE WITH ASME Y14.100
TITLE
LABEL, WIRING DIAGRAM
DIMENSIONS ARE IN INCHES
UNLESS OTHERWISE NOTED.
TOLERANCES UNLESS
OTHERWISE NOTED
ANGLES
1.5
.X .1
.XX
.03
.XXX
.015
HOLES
: .005
TUBE CUT LG:
.063
DWN BY: BS SCALE: NTS
CREATE DATE: 07-2l-23 SHEET: 1 OF 1
DWG.
NO.
0140F20013 A
TONNAGE MENU
TONNAGE
SELECTION
AIR
FLOW
TONNAGE
SELECTION
AIR
FLOW
1.0 400 3.6 1440
1.1 440 3.7 1480
1.2 480 3.8 1520
1.3 520 3.9 1560
1.4 560 4.0 1600
1.5 600 4.1 1640
1.6 640 4.2 1680
1.7 680 4.3 1720
1.8 720 4.4 1760
1.9 760 4.5 1800
2.0 800 4.6 1840
2.1 840 4.7 1880
2.2 880 4.8 1920
2.3 920 4.9 1960
2.4 960 5.0 2000
2.5 1000 5.1 2040
2.6 1040 5.2 2080
2.7 1080 5.3 2120
2.8 1120 5.4 2160
2.9 1160 5.5 2200
3.0 1200 5.6 2240
3.1 1240 5.7 2280
3.2 1280 5.8 2320
3.3 1320 5.9 2360
3.4 1360 6.0 2400
3.5 1400
NOTES:
1. MATERIAL: BOPP FILM 3.3 MIL PER SPECIFICATION S4900061 TYPE W
2. TEXT TO BE BLACK ON WHITE BACKGROUND
3. BARCODE MUST ADHERE TO S4900070 (TWO DIMENSIONAL BARCODE STANDARDS AND CHECK DIGIT ALGORITHM).
4. SUPPLIER PACKAGING MUST COMPLY WITH GOODMAN SPECIFICATION S4900110
MAXIMUM AIRFLOW OUTPUT
• 3 TON 60k BTUH = 1,400 CFM
• 3 TON 80k BTUH = 1,650 CFM
• 4 TON MODELS = 1,760 CFM
• 5 TON MODELS = 2,200 CFM
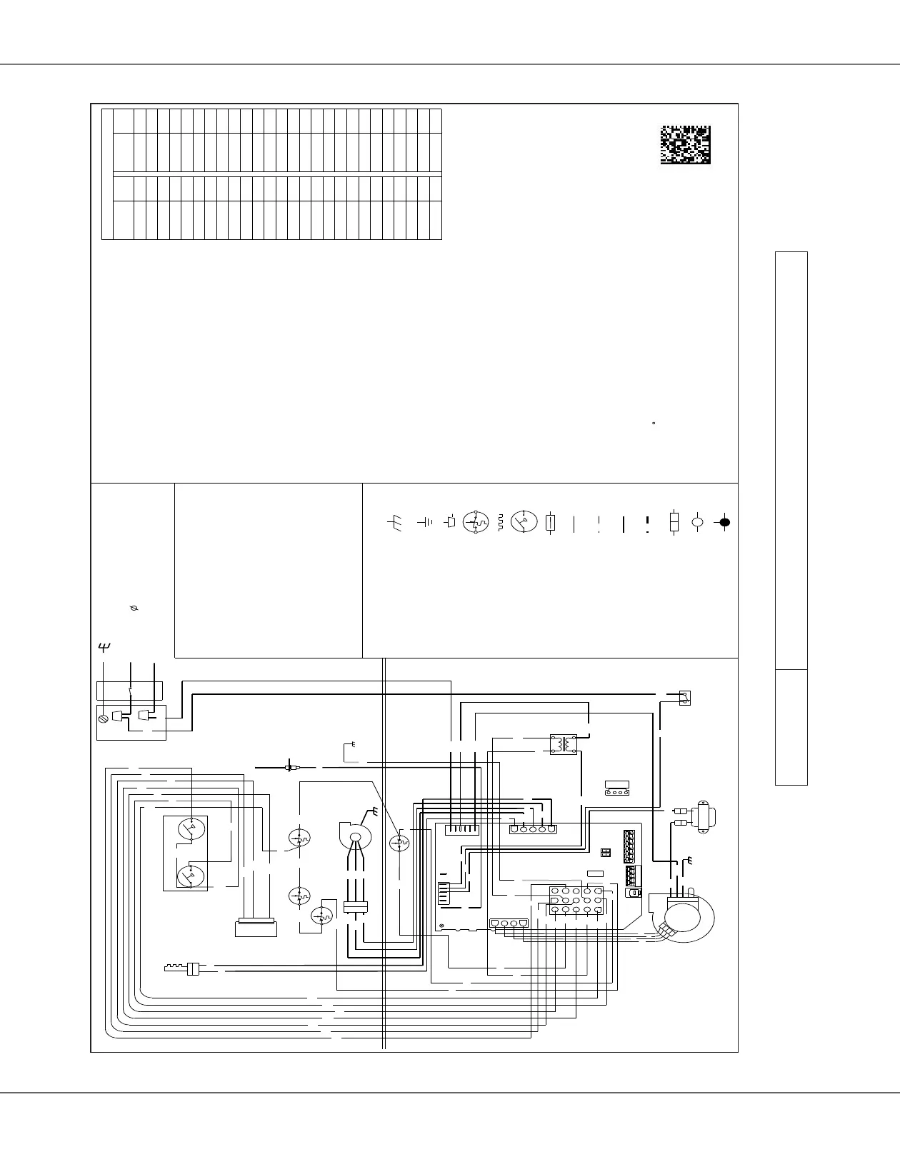
0140F20013-A
BK
WH
GR
DISCONNECT
L
JUNCTI
ON BOX
N
BURNER COMPARTMENT
RD
RD
WH
BLOWER COMPARTMENT
24
BK
INDUCED
DRAFT (ID)
BLOWER
C
WH
3
2
VAC
BK
YL
GND
BK
PU
RD
HIGH FIRE
PRESSURE SWITCH
WH
ID BLOWER TWO-STAGE
PRESSURE
SWITCH ASSEMBLY
PK
WH
MANUAL RESET ROLLOUT
LIMIT CONTROLS
RD
AUTO RESET PRIMARY
LIMIT CONTROL
NO
WH
115
1
PU
VAC
C
LOW FIRE
PRESSURE
SWITCH
OR
NO
PU
AUTO RESET
AUXILIARY LIMIT
CONTROL (TWO
ON SOME MODELS)
24 V
3 A
GY
12
2
4
5 CIRCUIT
CONNECTOR
4 CIRCUIT
MOTOR
CONNECTOR
4
1
FUSE
15
6
5
LINE
2
RD
2
9
14
3
1
OR
11
EAC
CONTROL
MODULE
8
BR
RD
BL
13
3
5
WH
7
1
3
FS
4
YL
OR
DIAGNOSTIC
LED'S
PK
10
GR
RD
BL
BK
PU
YL
PK
WH
WH
BK
NEUTRAL
THERMOSTAT
C R1 2
DE
Y
G
W
C
R
HUM
PK
RD
BK
RD
WH
WH
WH
BR
GY
BK
BK
OR
2
HOT
SURFACE
IGNITER
2 CIRCUIT
CONNECTOR
1
WH
BK
RD
GY
ECM MTR
HARNESS
3
BK
INDUCTOR COIL
(ON SOME
MODELS)
GND
4
INDOOR AIR CIRCULATOR
BLOWER
4
2
5
BK
PK
WH
1
GR
1
3
2
BK
BL
BK
BK
BLOWER
COMPARTEMENT
DOOR SWITCH
(OPEN WHEN
DOOR OPEN)
CHASSIS
GROUND
YL
GR
FLAME
SENSOR
OR
GY
YL
BR
OR
TWO STAGE
GAS VALVE
(WHITE-ROGERS)
HI
M
C
TO
115 VAC/ 1
/ 60HZ
POWER SUPPLY WITH
OVERCURRENT
PROTECTION DEVICE
WARNING: DISCONNECT
POWER BEFORE
SERVICING. WIRING
TO UNIT MUST BE
PROPERLY POLARIZED
AND GROUNDED
SWITCH (PRESSURE)
FIELD SPLICE
FIELD GROUND
EQUIPMENT GROUND
PROTECTION DEVICE
PLUG CONNECTION
SWITCH (TEMPERATURE)
JUNCTION
OVERCURRENT
TERMINAL
IGNITER
HIGH VOLTAGE (115V)
HIGH VOLTAGE FIELD
LOW VOLTAGE (24V)
LOW VOLTAGE FIELD
GND
MENU NAVIGATION AND SELECTION INSTRUCTIONS
USING PHONE APPLICATION OVER BLUETOOTH NETWORK:
1) CONNECT TO THE FURNACE (INSTRUCTIONS PROVIDED BY
PHONE DURING THE CONNECTION PROCESS).
2) SELECT DESIRED SETTINGS MENU
3) SELECT ITEM THAT REQUIRES ADJUSTMENT AND MAKE
NECESSARY SELECTION
4) SUBMIT CHANGES
USING ON-BOARD PUSH BUTTONS:
1) USE THE RIGHT AND LEFT BUTTONS TO SCROLL BETWEEN
MENUS
2) USE THE CENTER BUTTON TO SELECT DESIRED MENU WHEN
MENU CODE IS SHOWN ON7-SEGMENT DISPLAYS
3) USE THE LEFT AND RIGHT BUTTONS TO SCROLL THROUGH
OPTIONS WITHIN THE DESIRED MENU
(THE DISPLAY WILL FLASH WHILE SCROLLING THROUGH
OPTIONS FOR SELECTION)
4) USE THE CENTER BUTTON TO SELECT THE DISPLAYED OPTION
(WHEN SELECTED THE DISPLAY WILL STOP FLASHING)
5) USE THE CENTER BUTTON TO FINALIZE SELECTION AND
RETURN TO THE MAIN MENU
AIRFLOW SETTINGS INSTRUCTIONS
1) FOR NON-COMMUNICATING INSTALLATIONS, SELECT THE TYPE
OF UNIT INSTALLED
IN THE ODS MENU (1AC = SINGLE-STAGE AIR CONDITIONER,
1HP = SINGLE-STAGE HEAT PUMP, 2AC = 2 STAGE AIR CONDITIONER,
2HP = 2 STAGE HEAT PUMP) DEFAULT = OFF (NO OUTDOOR UNIT).
2) THE TONNAGE MENU MUST BE USED TO SELECT COOLING/HEAT
PUMP AIRFLOW (NON-COMMUNICATING INSTALLATION). TONNAGE
SELECTION OPTIONS AND CORRESPONDING AIRFLOW CFM CAN
BE FOUND TO THE RIGHT. [AIRFLOW = TONNAGE SELECTION X 400]
DEFAULT SELECTION IS 6.0 TONS.
3) [OPTIONAL] USE THE COOLING TRIM MENU (CTF) TO ADJUST THE
COOLING AIRFLOW FROM -10% TO +10% (2% INCREMENTS).
THIS APPLIES FOR 2 STAGE COMMUNICATING OUTDOOR UNITS
AND SINGLE OR 2 STAGE NON-COMMUNICATING OUTDOOR UNITS.
4) [OPTIONAL] USE THE HEATING TRIM MENU (HTF) TO ADJUST THE
HEAT PUMP AIRFLOW FROM -10% TO +1
NOTES:
1. MANUFACTURER'S SPECIFIED REPLACEMENT PARTS MUST
BE USED WHEN SERVICING
2. IF ANY OF THE ORIGINAL WIRE AS SUPPLIED WITH THE
FURNACE MUST BE REPLACED,
AT LEAST 105
C. USE COPPER CONDUCTORS ONLY.
3. UNIT MUST BE PERMANENTLY GROUNDED AND CONFORM
TO N.E.C. AND LOCAL CODES.
4. WHEN THIS FURNACE IS PAIRED WITH NON R-32
REGRIGERANT SYSTEMS. DEFAULT SETTINGS
WILL NEED TO BE CHANGED. REFER TO
INSTALLATION MANUAL FOR FURTHER INSTRUCTIONS
40 VA
TRANSFORMER
YL
BR
GY
OR
WH
OR
RD
PU
PK
RD
PK
WIRE
COLOR:
WHITE
BLACK
YELLOW
BLUE
RED
ORANGE
BROWN
TAN
PINK
GRAY
GREEN
PURPLE
VIOLET
COLOR
DESIGNATION:
WH
BK
YL
BL
RD
OR
BR
TN
PK
GY
GR
PU
VT
A2L SENSOR
CONNECTOR
A2L MODE IS ENABLED BY DEFAULT
REFER TO INSTALLATION MANUAL
FOR FURTHER INSTRUCTIONS.
5V
2
1
GND
     
      
     
Warning
High Voltage:           


Related product manuals