EasyManua.ls Logo

Daikin FAA71AUVEB - 3. Operation Range; Cooling Operation Temperature Limits; Heating Operation Temperature Limits

Daikin FAA71AUVEB
18 pages
Print Icon
To Next Page IconTo Next Page
To Next Page IconTo Next Page
To Previous Page IconTo Previous Page
To Previous Page IconTo Previous Page
Loading...
5 English
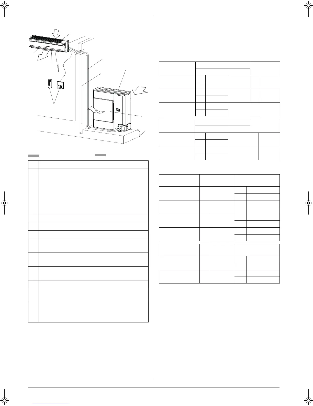
NAMES AND FUNCTIONS OF PARTS
Refer to figure above
a Indoor unit
b Outdoor unit
c
Remote controller
For using of BRC1E or wireless remote con-
troller, please refer to operation manual pro-
vided with the remote controller.
The remote controller may not be needed
depending on the system configuration.
d Suction air
e Discharged air
f Air outlet
g
Airflow flap (Vertical airflow direction adjust-
ment flap)
h
Airflow flap (Horizontal airflow direction
adjustment flap)
i
Refrigerant piping, electric wire connection,
earth wire
j Drain pipe
k
Air inlet
The built-in air filter removes dust and dirt.
l
Earth wire
Wire to ground from the outdoor unit to pre-
vent electrical shocks and fire.
e
e
a
b
c
d
d
f
f
g
h
i
j
k
l
3. OPERATION RANGE
If the temperature or the humidity is beyond the fol-
lowing conditions, safety devices may work and the
air conditioner may not operate, or sometimes,
water may drop from the indoor unit.
COOLING [°C]
HEATING C]
D
B: Dry bulb temperature
WB: Wet bulb temperature
The setting temperature range of the remote con-
troller is 16°C to 32°C depends on heating/cooling
mode.
OUTDOOR
UNIT
INDOOR
Outdoor
temperature
Temperature Humidity
RZQG
DB 18~37
80%
DB
–15~50
WB 12~28
RZQSG71~140
DB 20~37
80%
DB
–15~43
WB 14~28
RZQ200
DB 20~37
80%
DB
–5~46
WB 14~28
OUTDOOR
UNIT
INDOOR
Outdoor
temperature
Temperature Humidity
RZAG71~140
DB 18~37
80%
DB
–20~52
WB 12~28
RZASG71~140
DB 20~37
80%
DB
–15~46
WB 14~28
OUTDOOR UNIT
Indoor
temperature
Outdoor
temperature
RZQG DB 10~27
DB
–19.5~21
WB
–20~15.5
RZQSG71 DB 10~27
DB
–14~21
WB
–15~15.5
RZQSG100~140
DB 10~27
DB
–14~21
WB
–15~15.5
RZQ200 DB 10~27
DB
–14~21
WB
–15~15
OUTDOOR UNIT
Indoor
temperature
Outdoor
temperature
RZAG71~140
DB 10~27
DB
–19.5~21
WB
–20~15.5
RZASG71~140
DB 10~27
DB
–14~21
WB
–15~15.5
4PEN465287-1C.book Page 5 Thursday, March 23, 2017 2:47 PM

Other manuals for Daikin FAA71AUVEB

Related product manuals