EasyManua.ls Logo

Daikin FAYP71BV1 - Indoor Unit Installation

Daikin FAYP71BV1
25 pages
Print Icon
To Next Page IconTo Next Page
To Next Page IconTo Next Page
To Previous Page IconTo Previous Page
To Previous Page IconTo Previous Page
Loading...
5 English
[ CAUTION ]
Only use the included parts or parts which match the specifications when installing the unit.
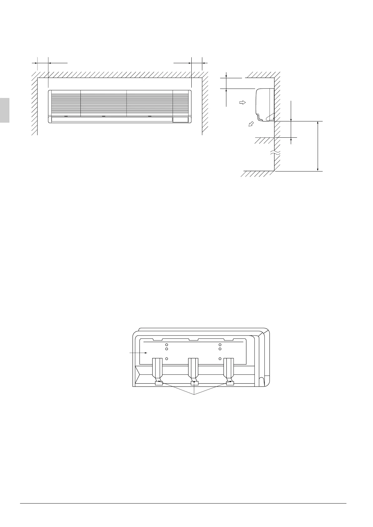
Install the indoor unit no less than 2.5 m above the floor. Where unavoidably lower, take what
measures are necessary to keep hands out of the air outlet.
2. Use the installation panel for installation.
Consider whether the location where the unit will be mounted can support its weight, and if necessary,
strengthen by adding supporting boards or beams before mounting. Make sure that any reinforcement
is strong enough to withstand vibration and loud noise. (The mounting pitch is listed on the mounting
pattern paper, so refer to it when considering whether strengthening is necessary or not.)
3. The indoor unit may not be directly installed on the wall.
Use the attached installation panel before installing the unit.
4. INDOOR UNIT INSTALLATION
1. Detach the installation panel from the indoor unit.
The installation panel is attached to the rear of the unit.
To detach, remove the screws from the bottom of the panel. ( Refer to Fig. 1 )
2. Attach the installation panel to the wall, using the paper pattern for installation.
(a)Check the position of the drill hole for the piping through-hole using the included pattern paper.
Keep approximately 50 mm between the ceiling and the unit.
(b)Temporarily tack the mounting board, and use a level to make sure that it is either level or slightly
tipped down on the side of the drainage pipe.
(c)Secure the mounting board to the wall with either a screw or a bolt.
If using the attached wood screws, fix 4 screws to each the left and right sides (total of 8 or more).
If using bolts, attach 2 M8 bolts to each the left and right sides (total of 4).
If installing the unit on a concrete wall, attach the panel with a field supplied anchor (M8).
50 50
50
250
2500 or higher
from the floor
For installation
in high places
Required space for installation or servicing
Floor
Air outlet
Air inlet
Obstruction
1) Installation
panel
Screws
Fig. 1
01_EN_3P184443-2.fm Page 5 Monday, July 3, 2006 3:14 PM

Other manuals for Daikin FAYP71BV1

Related product manuals