EasyManua.ls Logo

Daikin FDEQ100B7V3B - Page 222

Daikin FDEQ100B7V3B
390 pages
Print Icon
To Next Page IconTo Next Page
To Next Page IconTo Next Page
To Previous Page IconTo Previous Page
To Previous Page IconTo Previous Page
Loading...
Additional Checks for Troubleshooting ESIE05-04
3–60 Part 3 Troubleshooting
3
1
3
4
5
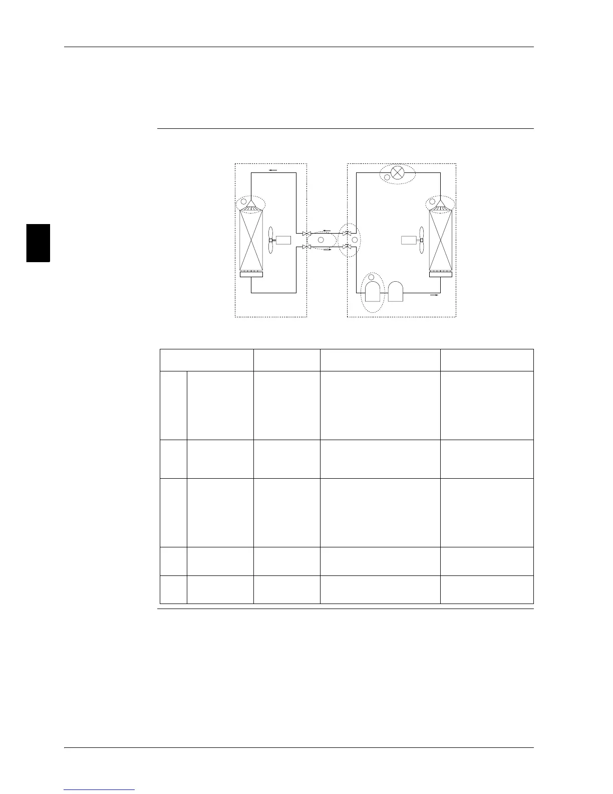
4.8 Checks
4.8.1 Clogged Points
Temperature differences must occur before or after the clogged points!
Check points Check factor Causes Remedies
1 Around
expansion
mechanism
Temperature
difference
Q Dust
Q Choked moisture
Q Reduced effective pipe
diameter due to adherent
contamination, etc.
Replace the expan-
sion valve.
2 Accumulator Frosting
Q Choked moisture Blow a nitrogen gas,
and then replace the
refrigerant.
3 Distributor Temperature
difference
Q Dust
Q Choked moisture
Q Reduced effective pipe
diameter due to adherent
contamination, etc.
Replace the heat
exchanger or
distributor.
4 Field piping Temperature
difference
Q Collapsed pipe Replace the pipe.
5 Stop valve Temperature
difference
Q The stop valve is not fully
open.
Open the stop valve
fully.
RAC
Indoor Unit Outdoor Unit
COMP
1
2
33
4 5

Table of Contents

Related product manuals