EasyManua.ls Logo

Daikin FDEQ100B7V3B - Fbq100, 125 B

Daikin FDEQ100B7V3B
390 pages
Print Icon
To Next Page IconTo Next Page
To Next Page IconTo Next Page
To Previous Page IconTo Previous Page
To Previous Page IconTo Previous Page
Loading...
General Outline ESIE05-04
1–18 Part 1 System Outline
3
1
1
4
5
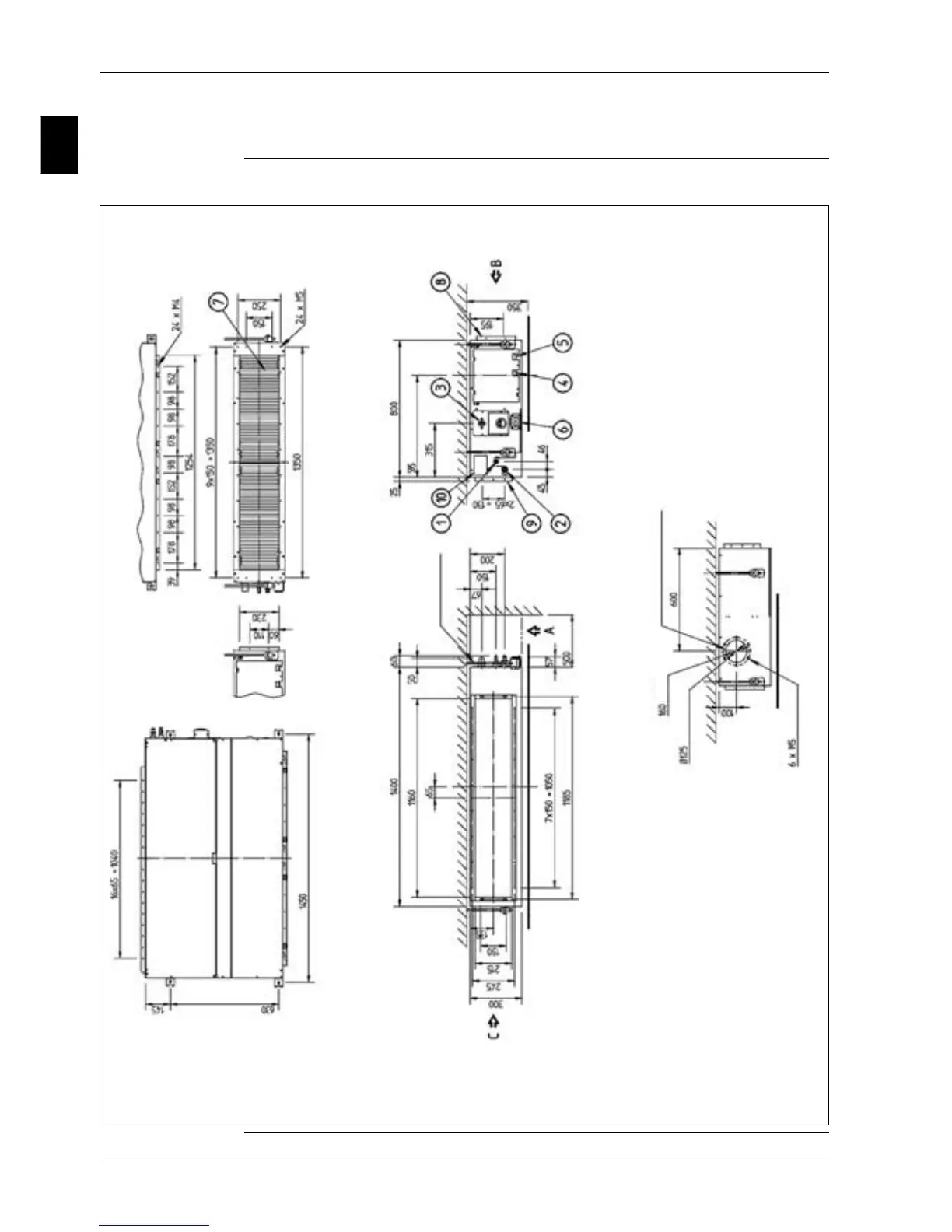
1.9 FBQ100, 125B
Outlook and
dimensions
The illustration below shows the outlook and the dimensions of the unit (mm).
or more
(Service Space)
Suspension bolt
(Suspension position)
VIEW A
(On circumference)
(Knock out hole)
Fresh air intake position
VIEW C
VIEW B
or more
(Installation Space)
NOTES:
1. Refer to ‘Outlook drawing for installing optional
accessories’ when installing optional accessories.
2. The required ceiling depth varies according to the
configuration of the specific system.
3. For maintenance of the air filter, it is necessary to
provide a service access panel according to the
installation method. (Refer to the ‘Filter installation
method’ drawing)
P.C.D.
(Suspension position)

Table of Contents

Related product manuals