EasyManua.ls Logo

Daikin FWEC3 - Comunicazione Seriale

Daikin FWEC3
192 pages
Go to English
To Next Page IconTo Next Page
To Next Page IconTo Next Page
To Previous Page IconTo Previous Page
To Previous Page IconTo Previous Page
Loading...
Manuale d'installazione e d'uso
7
FWEC3
Advanced plus electr
onic controller
FC66002765
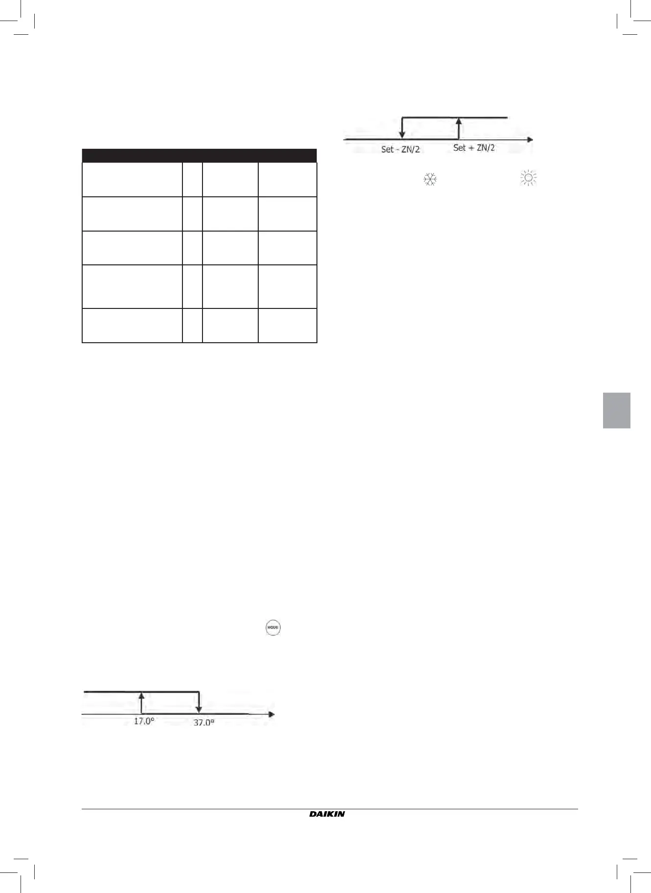
4 in funzione della temperatura dell'aria:
Dove:
Set è la temperatura impostata con le frecce
ZN è la zona neutra (parametro P03)
La modalità di funzionamento del termostato è indicata sul
display dai simboli
(raf
freddamento) e
(riscalda-
mento)
VENTILAZIONE
ASPETTI GENERALI
Il controllo può gestire due tipologie di ventilazione:
- ventilazione a gradini, con un numero sso di velocità se-
lezionabili (3 o 4);
- ventilazione modulante, con velocità variabile da 0% a
100%
L'utilizzo dell'una o l'altra tipologia di gestione è chiaramente
legata al tipo di ventilatore (modulante o non modulante)
montato a bordo macchina, che il comando seleziona in base
al valore impostato per il parametro di con gurazione P14. A
sua volta la regolazione a gradini segue due logiche diverse in
base al tipo di valvola/e (ON/OFF oppure modulante); anche
questa informazione, come quella sulla tipologia di ventilazione,
è dedotta dal comando in base al valore assunto dal parametro
di con gurazione P14. Ne consegue che l'impostazione del
parametro di con gurazione P14 va eseguita con attenzione al
ne di garantire il corretto funzionamento dell'unità.
N.B.: in presenza di ventilazione modulante, al ne di
una corretta regolazione, il comando tiene conto
anche del numero di velocità implicitamente
indicate con il valore assegnato al parametro
di configurazione P00. Anche se appare
contraddittorio parlare di "numero di velocità"
in presenza di ventilazione modulante, tale
informazione rimane essenziale per indicare al
sistema di controllo se si tratta di unità adatta a
funzionare in termoconvezione naturale oppure
no. In funzione di tale informazione, la regolazione
modulante della ventilazione segue logiche
diverse.
Riassumendo, le logiche di regolazione automatica gestite
dal comando (e descritte in dettaglio nel seguito) sono le
seguenti:
- ventilazione a gradini con valvola ON/OFF (o assente) e 3
velocità, in modalità raffreddamento e riscaldamento (logiche
speculari);
- ventilazione a gradini con valvola ON/OFF (o assente) e 4
velocità, in modalità estate e inverno (logiche speculari);
- ventilazione a gradini con valvola modulante e 3 velocità, in
modalità estate e inverno (logiche speculari);
- ventilazione a gradini con valvola modulante e 4 velocità, in
modalità estate e inverno (logiche non speculari);
- regolazione della ventilazione modulante con valvola ON/
OFF, in modalità estate e inverno (logiche speculari);
- regolazione della ventilazione modulante con valvola
modulante
CONFIGURAZIONI DELLE USCITE ANALOGICHE
0-10V (PARAMETRO P14)
La tabella che segue è una guida alla corr
etta impostazione
del parametro P14 in base al tipo di valvola/e e ventilatore di cui
è dotata l'unità. Per ogni tipologia di unità, è indicato il valore
da assegnare al parametro P14 e la conseguente modalità di
utilizzo delle due uscite analogiche.
TIPO UNIT
A P14 AOUT1 AOUT2
UNITÀ A 2 O 4 TUBI CON
VALVOLA/E ON/OFF E
VENTILATORE NON MODULANTE
0 NON UTILIZZATA NON UTILIZZATA
UNITÀ A 2 TUBI CON VALVOLA
MODULANTE E VENTILATORE
NON MODULANTE
1
MODULAZIONE
VALVOLA
--
UNITÀ A 2 TUBI CON VALVOLA
MODULANTE E VENTILATORE
MODULANTE
2
MODULAZIONE
VALVOLA
MODULAZIONE
VENTILATORE
UNITÀ A 4 TUBI CON
VALVOLE MODULANTI (NON È
CONSENTITO IL VENTILATORE
MODULANTE)
3
MODULAZIONE
VALVOLA ACQUA
FREDDA
MODULAZIONE
VALVOLA ACQUA
CALDA
UNITÀ A 2 O 4 TUBI CON
VALVOLA/E ON/OFF E
VENTILAZIONE MODULANTE
4--
MODULAZIONE
VENTILATORE
COMUNICAZIONE SERIALE
Collegamento alla r
ete di comunicazione RS485
La rete di comunicazione, tipologia Bus, è costituita da
un semplice cavo schermato a 2 conduttori, connesso
direttamente alle porte seriali RS485 dei comandi (morsetti
A, B e GND).
Per la realizzazione della rete utilizzare cavo AWG 24 (diam.
0,511 mm)
La rete di comunicazione deve avere la seguente struttura
generale ( gura 4):
Nel caso di soluzione "MASTER-SLAVE" dovrà essere installata
una resistenza di terminazione su entrambi i comandi agli
estremi della rete.
N.B.: (1) Rispettare la polarità della connessione:
indicata con A(-) e B(+)
(2) Evitare anelli di massa (schermatura a terra
solo ad una estremità)
LOGICHE
COMMUTAZIONE RAFFREDDAMENTO/RISCALDAMENTO
Sono pr
esenti 4 differenti logiche di selezione della modalità
di funzionamento del termostato de nite in base alla con gu-
razione impostata sul comando (parametro P00):
1 Locale: scelta dall'utente agendo sul tasto
2 Distanza: in funzione dello stato dell'ingr
esso digitale DI1
(logica contatto: vedi parametri con gurazione scheda)
3 In funzione della temperatura dell'acqua
N.B.: nel caso di allarme sonda acqua il controllo della
modalità torna temporaneamente nella modalità
Locale.
estate
inver
no Temperatura acqua
estate
inver
no
Temperatura aria

Related product manuals