EasyManua.ls Logo

Daikin FWKE-E - Page 119

Daikin FWKE-E
131 pages
Print Icon
To Next Page IconTo Next Page
To Next Page IconTo Next Page
To Previous Page IconTo Previous Page
To Previous Page IconTo Previous Page
Loading...
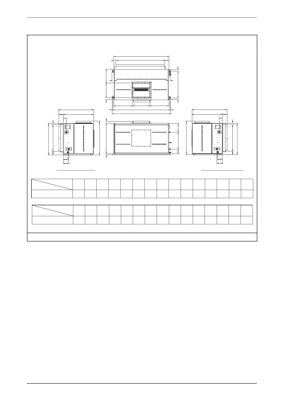
Outlines & Dimensions
115
Model: FUD30B (Vertical Air Discharge)
A
X
ZA
Z
T
S
K
ZB
ZC
ZD
S
W
Z
Y
X
R
Q U
ZAZ
S
K
ZB
ZC
ZD
B
E
H
I
F
J
G
C
D
F
G
V
I
T
W
V
N
O
P
L M L
NOTE:
FOR VERTICAL AIR DISCHARGE
LEFT PIPING (OPTIONAL) RIGHT PIPING (STANDARD)
Dimension
Model
A B C D E F G H I J K L M N O
FUD30B 1540 1370 1600 1640 53 50 20 117 48 754 885 533 474 382 408
Dimension
Model
P Q R S T U V W X Y Z ZA ZB ZC ZD
FUD30B 60 468 120 35 88 262 155 132 980 60 850 130 747 103 945
Note: Dimension in mm

Related product manuals