EasyManua.ls Logo

Daikin Rebel Applied DPSA - Page 6

Daikin Rebel Applied DPSA
180 pages
Print Icon
To Next Page IconTo Next Page
To Next Page IconTo Next Page
To Previous Page IconTo Previous Page
To Previous Page IconTo Previous Page
Loading...
IM 1287-6 • REBEL APPLIED ROOFTOP 6 www.DaikinApplied.com

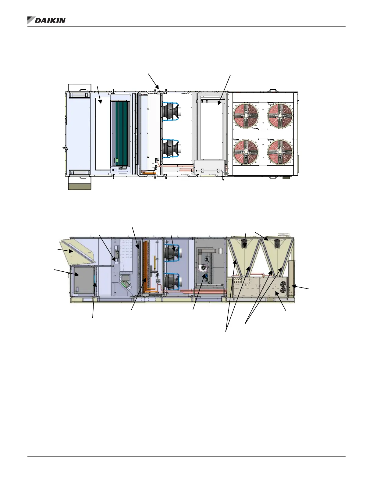
Figure 3: Typical Component Locations—DPSA Units
Top View
Side View
Bottom Return Air Opening
Bottom Discharge Air
Opening
Condensate Connection 1.5” NPT
Outside/Return Air Dampers
(Economizer Dampers)
Exhaust
Hood
Return Air Fan
Filter
Evaporator
Coil
Supply Air
Fan
Propane, Steam, Hot Water,
Main Control Panel
Condenser Fan
Condenser Coils
(Circuit 1)
Condenser Coils
(Circuit 2)
Low Voltage Control
Panel
Outdoor Air
Hood

Related product manuals