EasyManua.ls Logo

Daikin RPS - RPS;RFS Roof Curb Assembly Diagram

Daikin RPS
152 pages
Print Icon
To Next Page IconTo Next Page
To Next Page IconTo Next Page
To Previous Page IconTo Previous Page
To Previous Page IconTo Previous Page
Loading...
IM 893-10 • ROOFPAK SINGLEZONE UNITS 22 www.DaikinApplied.com
MeChanICal InsTallaTIon
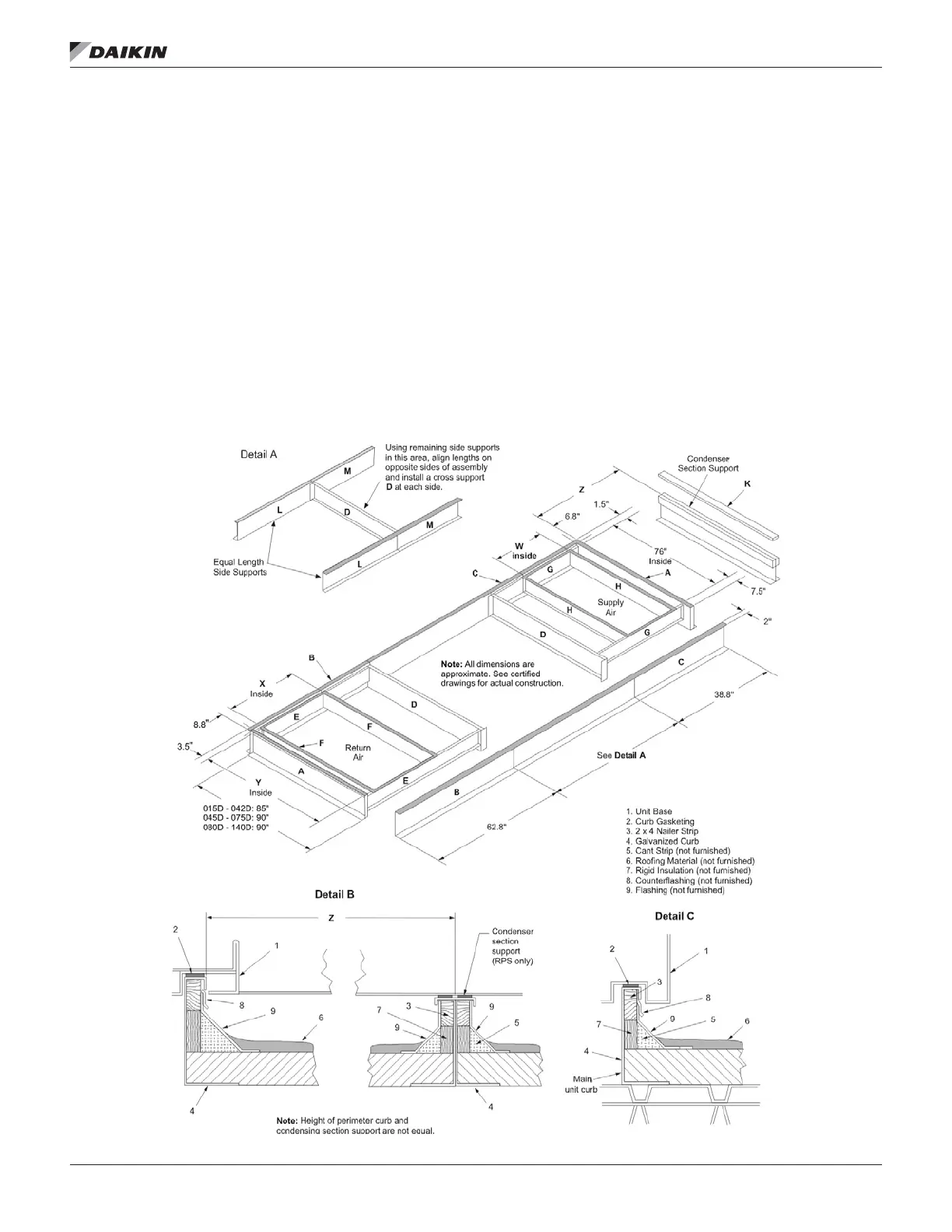
RPS/RDT Assembly instructions (Figure 24)
1. Set curbing parts A through K per dimensions shown
over roof opening or on a level surface. Note location of
return and supply air openings.
2. If applicable, set other curbing parts (D, L, M, etc.) in
place making sure that the orientation complies with the
assembly instructions. Check alignment of all mating bolt
holes. See Detail A.
3. Bolt curbing parts together using fasteners provided.
Tighten all bolts nger tight.
4. Square entire curbing assembly and securely tighten all
bolts.
5. Position curb assembly over roof openings. Curb must
be level from side to side and over its length. Check that
top surface of the curb is at with no bowing or sagging.
6. Weld curbing in place. Caulk all seams watertight.
Remove backing from 0.25ʺ (6 mm) thick × 1.50ʺ (38
mm) wide gasketing and apply to surfaces shown by
cross-hatching.
7. Flash curbing into roof as shown in Detail B.
8. Parts E and F are not required on units with no return
shaft within the curb perimeter.
9. Parts G and H are not required on units with no supply
shaft within the curb perimeter.
10. Be sure that electrical connections are coordinated (see
Figure 25).
Figure 24: RPS/RFS Roof Curb Assembly

Table of Contents

Other manuals for Daikin RPS

Related product manuals