EasyManua.ls Logo

Daikin RXQ8PY1 - Rxyq14 Pyl, Rxyq16 Pyl, Rxyq18 Pyl

Daikin RXQ8PY1
355 pages
Print Icon
To Next Page IconTo Next Page
To Next Page IconTo Next Page
To Previous Page IconTo Previous Page
To Previous Page IconTo Previous Page
Loading...
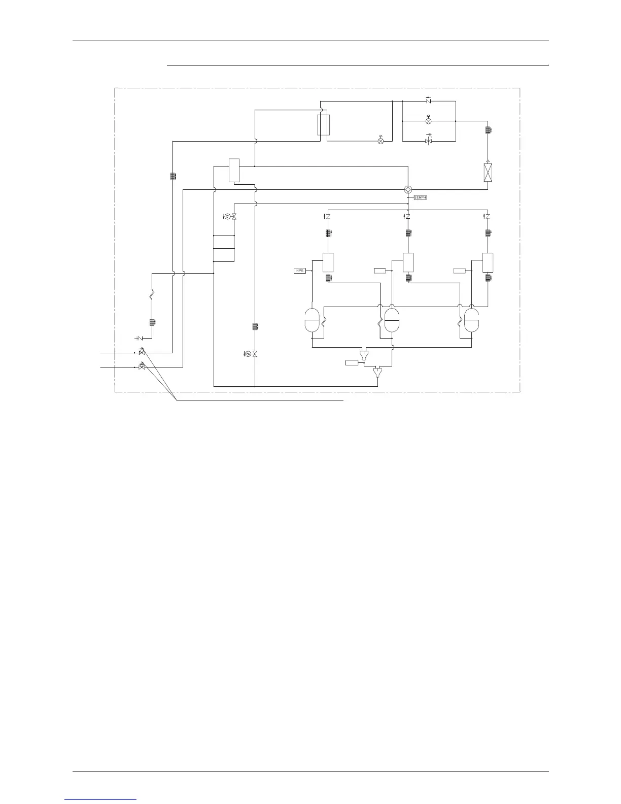
SiEN34-705 Appendix
General Information 177
RXYQ14PYL, RXYQ16PYL, RXYQ18PYL
3D050785A
Filter
Solenoid
valve
Accumulator
Check valve
Electronic expansion valve
Pressure
regulating
valve
Electronic
expansion
valve
Four way valve
High pressure sensor
Filter
Filter Filter
Check valve Check valve
Filter Filter
HPS
High pressure
switch
Filter
Filter
HPS
High pressure
switch
OIL
SEPARATOR
OIL
SEPARATOR
OIL
SEPARATOR
Check valve
Filter
Filter
Stop valve (with service port ø7.9mm flare connection)
Solenoid valve
COMPRESSOR
INV
High pressure
switch
COMPRESSOR
STD1
COMPRESSOR
STD2
Low pressure sensor
SENPL

Table of Contents

Related product manuals