EasyManua.ls Logo

Daikin RXQ8PY1 - Page 185

Daikin RXQ8PY1
355 pages
Print Icon
To Next Page IconTo Next Page
To Next Page IconTo Next Page
To Previous Page IconTo Previous Page
To Previous Page IconTo Previous Page
Loading...
SiEN34-705 Appendix
General Information 179
FXZQ
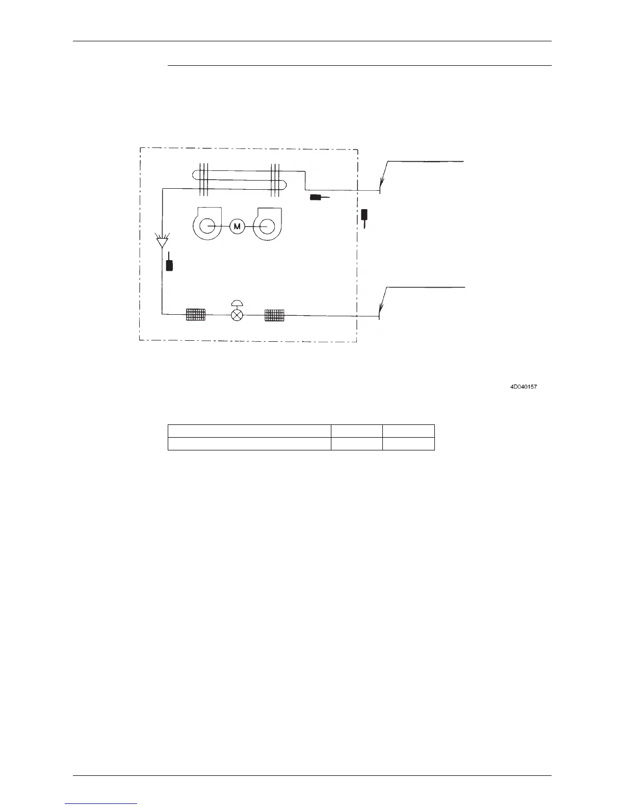
! Refrigerant pipe connection port diameters
Heat exchanger
Filter
Electronic
expansion valve
Filter
Fan
Th2
Th3
Gas pipe connection port
(flare connection)
Liquid pipe connection port
(flare connection)
Liquid pipe connection port
(flare connection)
Th1: Thermistor for suction air temp.
Th2: Thermistor for liquid air temp.
Th3: Thermistor for gas line temp.
Th1
(mm)
Model Gas Liquid
FXZQ20M / 25M / 32M / 40M / 50M φ12.7 φ6.4

Table of Contents