EasyManua.ls Logo

Daikin RXQ8PY1 - Page 197

Daikin RXQ8PY1
355 pages
Print Icon
To Next Page IconTo Next Page
To Next Page IconTo Next Page
To Previous Page IconTo Previous Page
To Previous Page IconTo Previous Page
Loading...
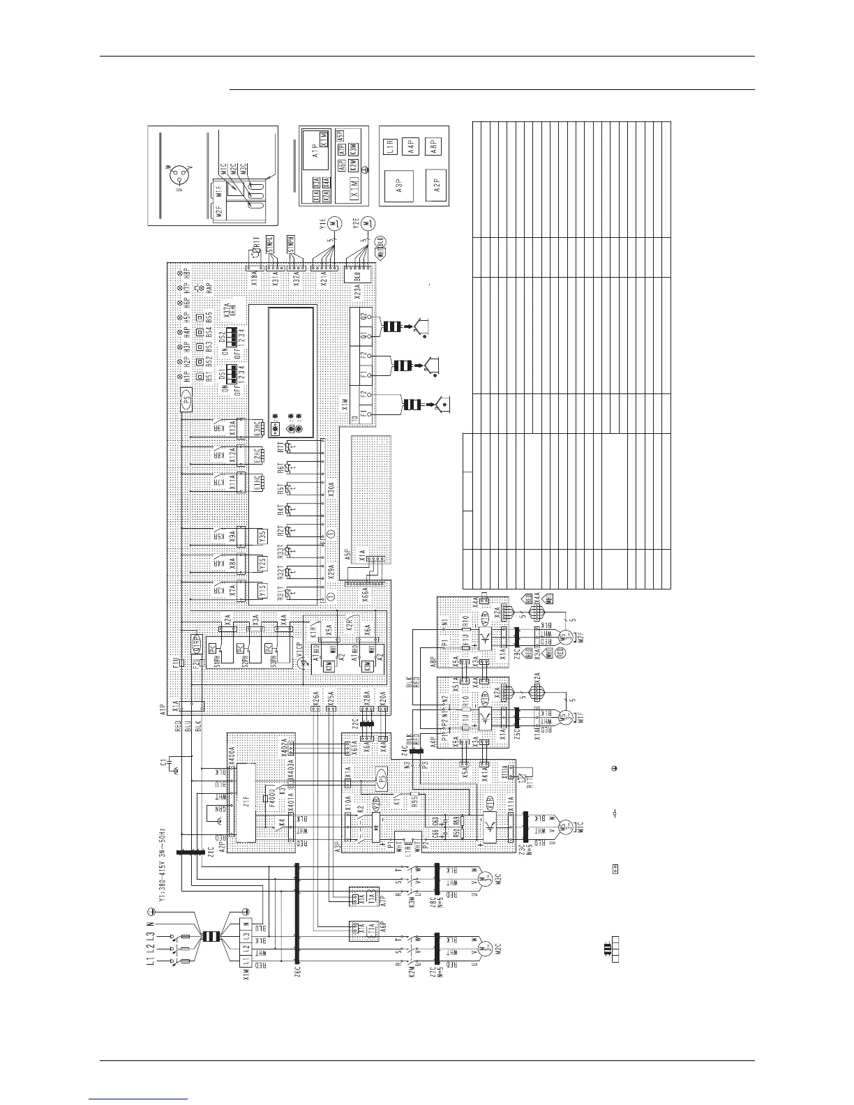
SiEN34-705 Appendix
General Information 191
RXQ14PY1, RXQ16PY1, RXQ18PY1
3D055261A
Notes
1. This wiring diagram is applied only to the outdoor unit.
2. : Field wiring.
3. :
Terminal strip,
: Connector :Terminal :Protective earth (screw)
4. When using the optional adapter, refer to the installation manual of the optional adapter.
5. For connection wiring to indoor-outdoor transmission F1 • F2, outdoor-outdoor transmission F1 • F2,
Outdoor-Multi Transmission Q1 • Q2, refer to the installation manual.
6. How to use BS1~5 and DS1~3 switch, refer to “service precaution” label on EL. COMPO. BOX COVER.
7. When operating, don’t shortcircuit the protection device (S1PH,S3PH).
8. Colors (BLK:Black, RED:red, BLU:blue, WHT:white, PNK:Pink, YLW:Yellow, BRN:brown, GRY:gray, GRN:green,
ORG:0range.
(BACK)
(FRONT)
EL.COMPO.BOX
EL.COMPO.BOX
TERMINAL OF M1C,M2C
LAYOUT OF M1C, M3C, M1F, M2F
OUTER SHELL
Outdoor (F1) (F2)
NOTE 5
TO IN/D UNIT
TO OUT/D UNIT
POWER SUPPLY
Indoor (F1) (F2)
Printed circuit board (Main)
Printed circuit board (Noise filter)
Printed circuit board (INV)
Printed circuit board (FAN)
Printed circuit board (ABC I/P)
Printed circuit board (Current sensor)
Push button switch
(Mode, set, return, test, reset)
Capacitor
Capacitor
DIP switch
Crankcase heater
Fuse (8A, DC650V) (A4P,A8P)
Fuse (T, 3.15A, 250V) (A1P)
Fuse (T, 6.3A, 250V) (A2P)
Pilotlamp (Service monitor-orange)
[H2P] Prepare, test ---------------Flickering
Malfunction detection---Light up
Pilotlamp (Service monitor-green)
Magnetic relay
Magnetic contactor (M1C)
Magnetic contactor (M2C,M3C)
Magnetic relay (K2M,K3M)
A1P
A2P
A3P
A4P,A8P
A5P
A6P;A7P
BS1~5
C1
C63,C66
DS1,DS2
E1HC,3HC
F1U
F1U,F2U
F400U
H1P~8P
HAP
K1,K3
K2,K4
K2M,K3M
K1R,K2R
L3-BLK
L2-WHT
L1-RED
N-BLU
Magnetic relay (Y1S)
Magnetic relay (Y2S)
Magnetic relay (Y3S)
Magnetic relay (E1HC)
Magnetic relay (E2HC)
Magnetic relay (E3HC)
Reactor
Motor (Compressor)
Motor (Fan)
Switching power supply (A1P,A3P)
Phase reversal detect circuit
Resistor (Current sensor) (A4P,A8P)
Resistor
Resistor (Current limiting)
Thermistor (Air) (A1P)
Thermistor (Fin) (A3P)
Thermistor (Suction)
Thermistor (M1C,M3C discharge)
Thermistor (Heat exc. deicer)
Thermistor (Heat exc. outlet)
Thermistor (Liq. pipe)
Thermistor (Accumulator)
Pressure sensor (High)
K3R
K4R
K5R
K7R
K8R
K9R
L1R
M1C,M3C
M1F,M2F
PS
Q1RP
R10
R50, R59
R95
R1T
R1T
R2T
R31T,R32T
R4T
R5T
R6T
R7T
S1NPH
Pressure switch (low)
Pressure switch (high)
Current sensor (A6P,A7P)
Safety devices input
Power module (A3P,A4P,A8P)
Diode bridge (A3P)
Connector (M1F,M2F)
Terminal strip (Power supply)
Terminal strip (Control) (A1P)
Electronic expansion valve (Main)
Solenoid expansion valve (Subcool)
Solenoid valve (Hot Gasl)
Solenoid valve (Oil)
Solenoid valve (4 Way valve)
Noise filter (Ferrite core)
Noise filter (With surge absorber)
S1NPL
S1PH,3PH
T1A
V1CP
V1R
V2R
X1A~4A
X1M
X1M
Y1E
Y2E
Y1S
Y2S
Y3S
Z1C~7C,Z9C
Z1F
NOTE 4
TO MULTI UNIT
Outdoor (Q1) (Q2)
Is connector color for
printed circuit board.
Is connector color for component.
Is discrimination color for
component lead wire.

Table of Contents