EasyManua.ls Logo

Daikin UWL040B5 - Page 23

Daikin UWL040B5
48 pages
Print Icon
To Next Page IconTo Next Page
To Next Page IconTo Next Page
To Previous Page IconTo Previous Page
To Previous Page IconTo Previous Page
Loading...
22
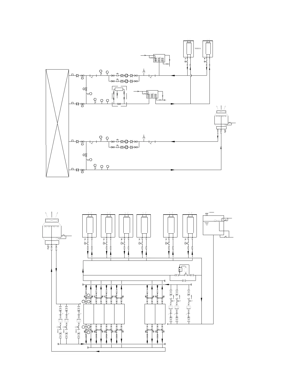
Installation illustration for the water system of a single unit:
Installation illustration for water system of multi-unit combination:
T
T
P
P
P
1
2
T
T
P
P
P
CHEMICAL CLEANING INLET
S
S
UWL
FLEXIBLE CONNECTOR
GATE VALVE
FLITER
PRESSURE GAUGE
THERMOMETER
PUMP
AUTO AIR DIS-
CHARGE VALVE
REFILL
DRAIN
EXPANSION WATER TANK
FAN COIL
FAN COIL
WATER FLOW
SWITCH
HEATER
DRAIN
REFILL
DRAIN
WATER TANK
COOLING TOWER
DRAIN
REFILL
CHEMICAL CLEANING INLET
FLEXIBLE CONNECTOR
GATE VALVE
FLITER
PRESSURE GAUGE
THERMOMETER
PUMP
AUTO AIR DIS-
CHARGE VALVE
WATER FLOW
SWITCH
6
5
3
4
REFILL
DN20
DN20
DRAINAGE
FULL
AIR DISCHARGE
UWL
UWL
FAN COIL
FAN COIL
FAN COIL
FAN COIL
UWL
UWL
UWL
FAN COIL
2
- - -
3
4
1
5
6
- - -
- - -
FAN COIL
REFILL
UWL
- - -
DRAINAGE
COOLING TOWE
R