EasyManua.ls Logo

Daikin WSC079 - Page 35

Daikin WSC079
58 pages
Print Icon
To Next Page IconTo Next Page
To Next Page IconTo Next Page
To Previous Page IconTo Previous Page
To Previous Page IconTo Previous Page
Loading...
IM 1044-2 Centrifugal Chillers 35
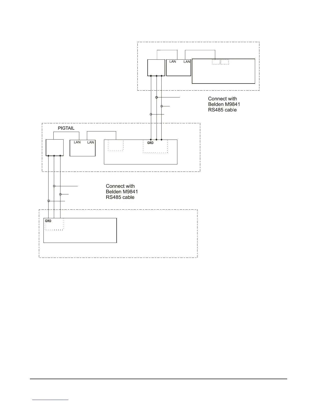
Figure 21, Communication Wiring
NOTE: A fourth chiller, Chiller D would be connected to chiller C same as chiller C to chiller B.
Chiller A
PIGTAIL
485
OPDR
C
A
B
UCM
J10
J11
BLU/WHT
WHT/BLU
SHIELD
(+)
(-)
UNIT CONTROL
J11 PORT
Chiller B
485
OPDR
C
BLU/WHT
WHT/BLU
SHIELD
B
A
UCM
J10
PORT
Chiller C
(+)
(-)
J11 Port
UNIT CONTROL
UNIT CONTROL
P
P
P
P

Related product manuals