EasyManua.ls Logo

Daikin WSC079 - Page 43

Daikin WSC079
58 pages
Print Icon
To Next Page IconTo Next Page
To Next Page IconTo Next Page
To Previous Page IconTo Previous Page
To Previous Page IconTo Previous Page
Loading...
IM 1044-2 Centrifugal Chillers 43
piston is forced back against the spring by the oil pressure, compressing the spring, and filling the piston cavity
with oil. When the pump stops, the spring pressure on the piston forces the oil back out to the bearings.
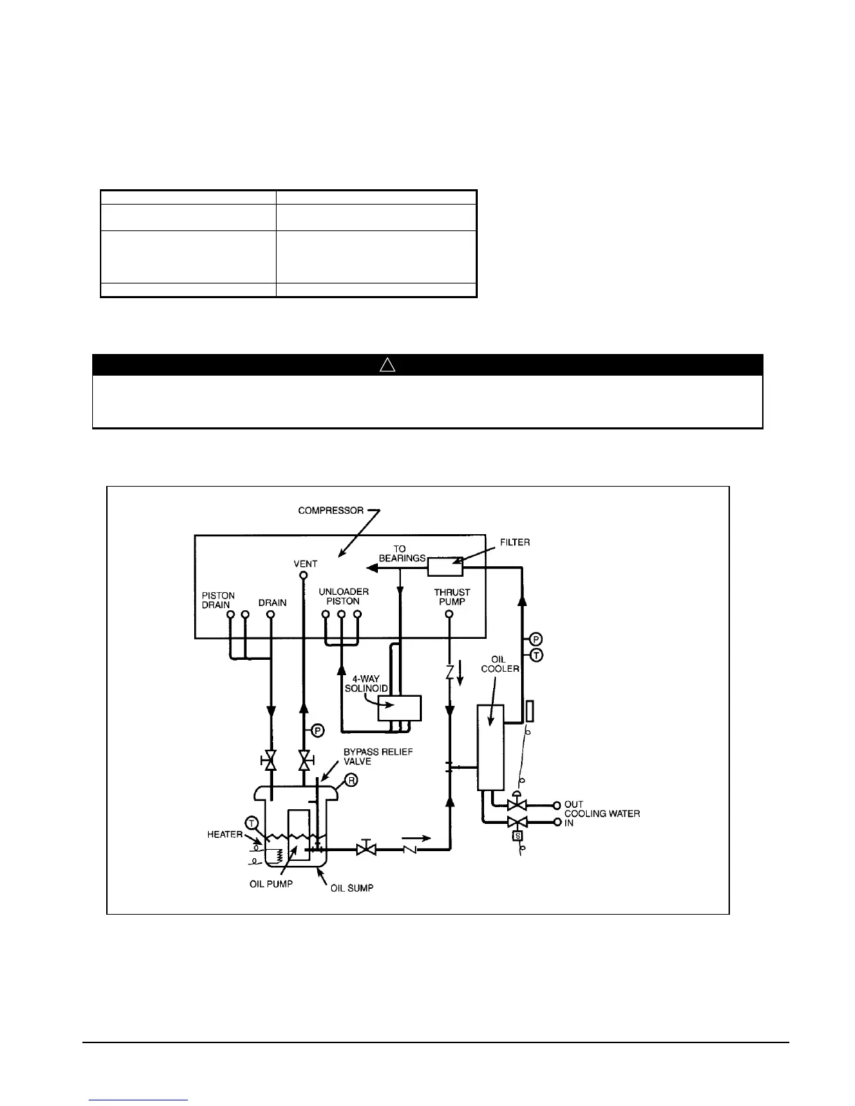
In compressor model CE126 the compressor coast down lubrication is supplied from a gravity-feed oil reservoir.
A typical flow diagram is shown in Figure 29.
Table 15, Approved Polyolester Oils For R-134a Units
Compressor Models
CE063 - 126
Lubricant Designation
Mobil Artic EAL 46;
ICI Emkarate RL32H
(2)
Daikin Part Number
55 Gal. Drum
5 Gal. Drum
1 Gal. Can
735030432, Rev 47
735030433, Rev 47
735030435, Rev 47
Compressor Oil Label 070200106, Rev OB
NOTES:
1. Approved oil from two suppliers can be mixed, although they have slightly different viscosity.
2.
Lubricant from either s
upplier can be furnished when ordering by Daikin part number.
WARNING
This unit contains POE lubricants that must be handled carefully and the proper protective equipment (gloves, eye
protection, etc.) must be used when handling POE lubricant. POE must not come into contact with any surface or
material that might be harmed by POE, including certain polymers (e.g. PVC/CPVC and polycarbonate piping).
Figure 29, Typical Oil Flow Diagram
NOTES:
1. Connections are not necessarily in correct relative location.
2. R = relief valve, P = pressure sensor, T = temperature sensor, S = solenoid valve
!

Related product manuals