EasyManua.ls Logo

Daitsu DS-12KIDR - Electrical Connections; Drilling a Hole in the Wall for the Piping; Refrigerant Piping Connection

Daitsu DS-12KIDR
89 pages
Print Icon
To Next Page IconTo Next Page
To Next Page IconTo Next Page
To Previous Page IconTo Previous Page
To Previous Page IconTo Previous Page
Loading...
Air Conditioner Service Manual
34
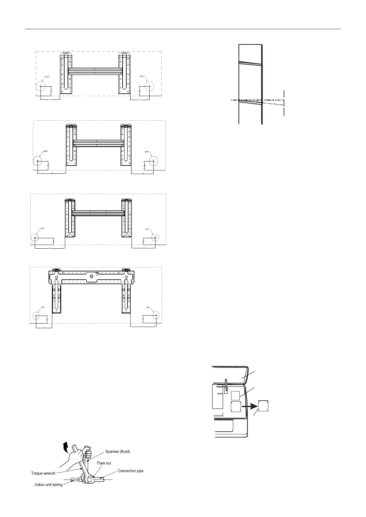
9K
12K
18K
24K
Note: The shape of the mounting plate may be
different from the one above, but installation method
is similar.
2.5.2 Drilling a hole in the wall for the piping
1) Decide where to drill the hole in the wall for the
piping (if necessary) according to the position of the
mounting plate
2) Install a flexible flange through the hole in the wall
to keep the latter intact and clean.
The hole must slope downwards towards the exterior.
Note: Keep the drain pipe down towards the direction
of the wall hole, otherwise leakage may occur.
2.5.3 Electrical connections---Indoor unit
1).Lift the front panel.
2).Take off the cover as indicated in the picture (by
removing a screw or by breaking the hooks).
3).For the electrical connections, see the circuit
diagram on the right part of the unit under the front
panel.
4).Connect the cable wires to the screw terminals by
following the numbering, Use wire size suitable to
the electric power input (see name plate on the unit)
and according to all current national safety code
requirements.
5).The cable connecting the outdoor and indoor units
must be suitable for outdoor use.
6).The plug must be accessible also after the appliance
has been installed so that it can be pulled out if
necessary.
7).An efficient earth connection must be ensured.
8).If the power cable is damaged, it must be
replaced by an authorized Service Centre.
Refrigerant piping connection
The piping can be run in the 3 directions indicated by
5mm
Indoors
Out doors
Front panel
Terminal block cover
Wiring diagram

Table of Contents

Related product manuals