EasyManua.ls Logo

Danfoss PVG 128 - Page 3

Danfoss PVG 128
6 pages
Print Icon
To Next Page IconTo Next Page
To Next Page IconTo Next Page
To Previous Page IconTo Previous Page
To Previous Page IconTo Previous Page
Loading...
Proportional Valve Group PVG 128/256
© Danfoss A/S, 2017-03 AN00000355xx-04 • Rev 0101 • March 2017 3
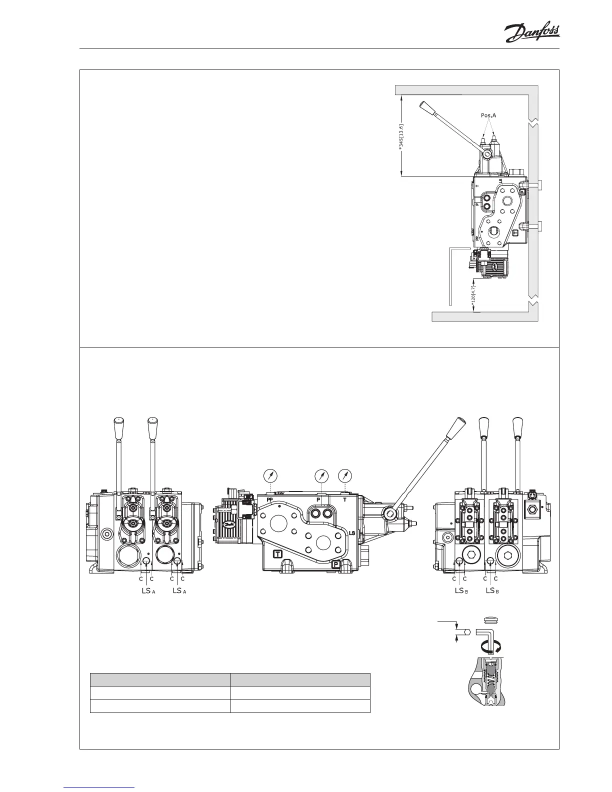
PVG – Trykindstilling LS
A
, LS
B
PVG – Pressure setting LS
A
, LS
B
PVG – Druckeinstellung LS
A
, LS
B
PVG – Réglage de pression LS
A
, LS
B
PVG – Nominel tryk
PVG – Rated pressure
PVG – Nomineller Druck
PVG – Pression nominale
4 [0.16]
360º ~120 bar
[1740 psi]
P006094
T
C-C
Relief valve LS
A/B
Product Rated pressure
PVG 128 with PVSI 350 bar [5076 psi]
PVG 256 w PVSI 350 bar [5076 psi]
PVG – Udluftning
Hvis gruppen er monteret vertikalt, anbefales det at udlufte ved justerskruer
(Pos. A)
PVG – Bleeding
If the group is installed vertically, it is recommended to bleed it at the adjusting
screws (Pos. A)
PVG – Entlüftung
Wenn die Gruppe vertikal montiert ist, empfehlen wir an den Justierschrauben
zu entlüften (Pos. A)
PVG – Purge
Si l’ensemble est monté verticalement, il est recommandé de le purger au
moyen des vis dajustage (Pos. A)
P006 091

Other manuals for Danfoss PVG 128

Related product manuals