EasyManua.ls Logo

Danfoss VLT 5202 - Torque and Speed Control Examples

Danfoss VLT 5202
240 pages
Print Icon
To Next Page IconTo Next Page
To Next Page IconTo Next Page
To Previous Page IconTo Previous Page
To Previous Page IconTo Previous Page
Loading...
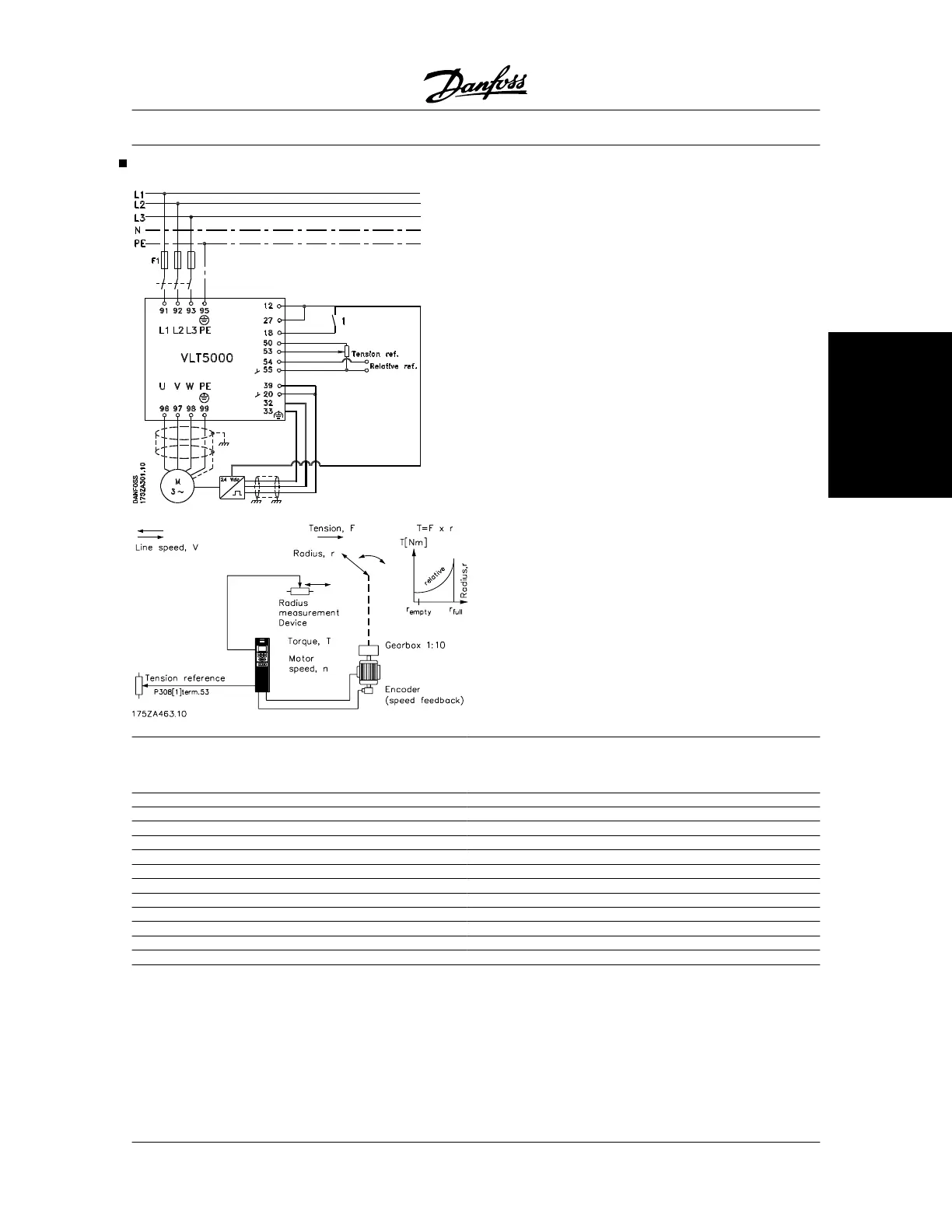
Torque control, speed feedback
A winder winds material onto a roll or unwinds material
from a roll at a constant tension.
A device measures the radius of the roll and adjusts
the motor torque to ensure that the tension is constant.
The measuring device must have a non-linear output
signal.
The following must be programmed in order shown:
Function:
Parameter: Setting: Data value:
Configuration 100 Torque control, speed feedback[5]
Rotation, frequency/direction 200 Both directions, 0-132 Hz [1]
Reference/feedback range 203 -Max. - +Max. [1]
Minimum reference 204 Set to min. torque (Nm)
Maximum reference 205 Set to max. torque (Nm)
Reference function 214 Relative [1]
Terminal 32, encoder input A 306 Encoder feedback, input A [25]
Terminal 33, encoder input B 307 Encoder feedback, input B [24]
Encoder feedback, pulses/rev. 329 Set to encoder pulses per rev.
Terminal 53, analog input 308 Reference [1]
Terminal 54, analog input 311 Relative reference [4]
Speed PID lowpass filter 421 10 msec.
VLT
®
5000 Series
MG.51.C5.22 - VLT
p
is a registered Danfoss trademark. 171
Examples of use

Table of Contents

Other manuals for Danfoss VLT 5202

Related product manuals