EasyManua.ls Logo

Danfoss VLT HVAC Drive FC 102 - Page 54

Danfoss VLT HVAC Drive FC 102
146 pages
Print Icon
To Next Page IconTo Next Page
To Next Page IconTo Next Page
To Previous Page IconTo Previous Page
To Previous Page IconTo Previous Page
Loading...
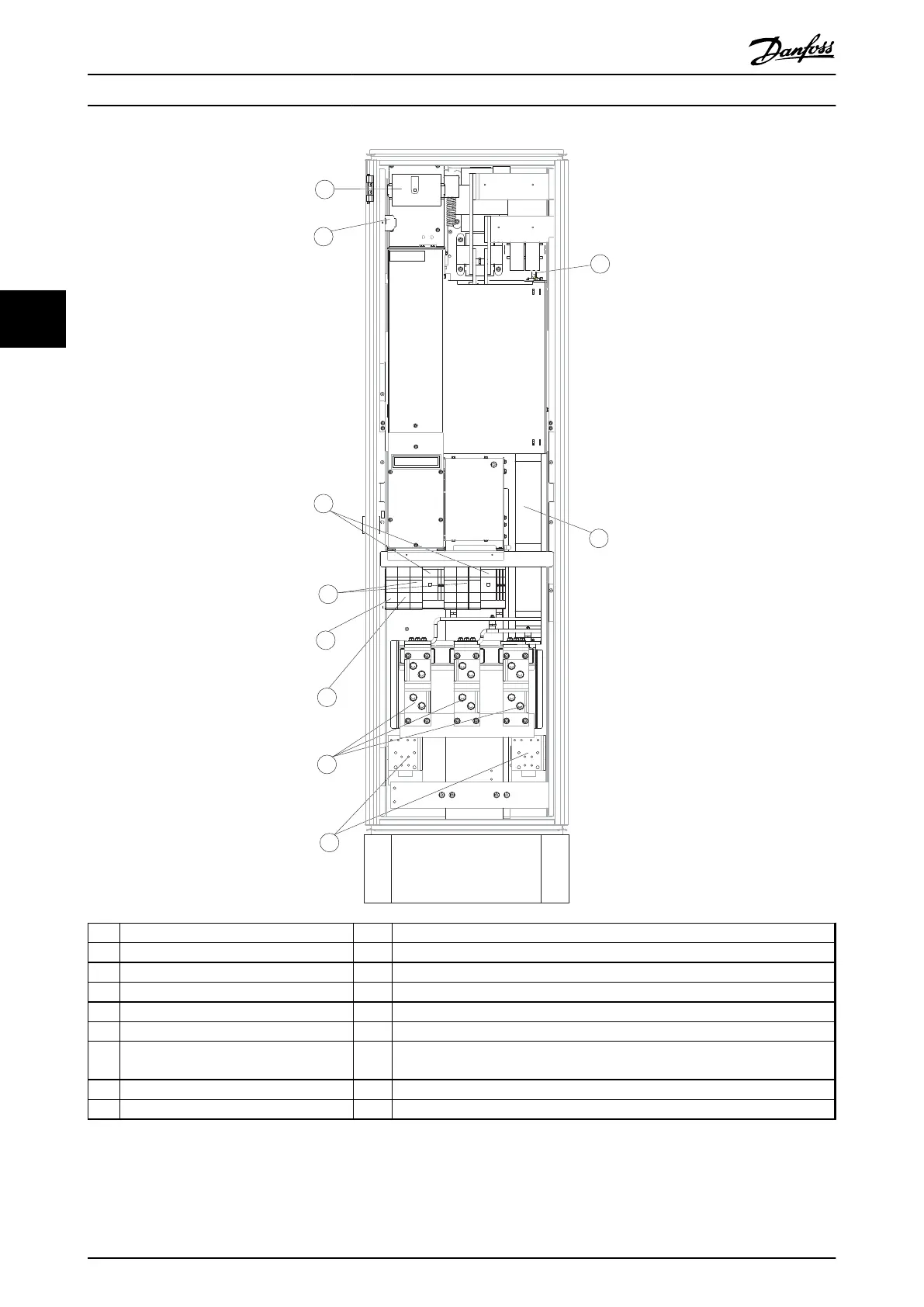
+DC 89
FASTENER TORQUE: M10 19Nm (14 FT -LB)
+DC 89
130BA860.10
1
5
4
3
2
8
10
9
FUSE
C J3
ONNECT
CH22 CH22 CH22
CTI25MB
FASTENER TORQUE: M10 19Nm (14 FT -LB)
CTI25MB
CH22 CH22 CH22
7
6
1) 24 V DC, 5 A 5) Loadsharing
T1 Output Taps -DC +DC
Temp Switch 88 89
106 104 105 6) Control Transformer Fuses (2 or 4 pieces). See fuse tables for part numbers
2) Manual Motor Starters 7) SMPS Fuse. See fuse tables for part numbers
3) 30 A Fuse Protected Power Terminals 8) Manual Motor Controller fuses (3 or 6 pieces). See fuse tables for part numbers
4) Mains 9) Line Fuses, enclosure types F1 and F2 (3 pieces). See fuse tables for part
numbers
R S T 10) 30 Amp Fuse Protected Power fuses
L1 L2 L3
Illustration 4.12 Rectifier Cabinet, Enclosure Types F1, F2, F3 and F4
Electrical Installation
VLT HVAC Drive FC 102 Operating Instructions
52 MG11F402 - Rev. 2013-12-16
44

Table of Contents

Other manuals for Danfoss VLT HVAC Drive FC 102

Related product manuals