EasyManua.ls Logo

Dannmar D4-9 - Specifications

Dannmar D4-9
85 pages
Print Icon
To Next Page IconTo Next Page
To Next Page IconTo Next Page
To Previous Page IconTo Previous Page
To Previous Page IconTo Previous Page
Loading...
D4-9 / D4-9X Four-Post Lifts 10 P/N 5900251Rev. A1August 2021
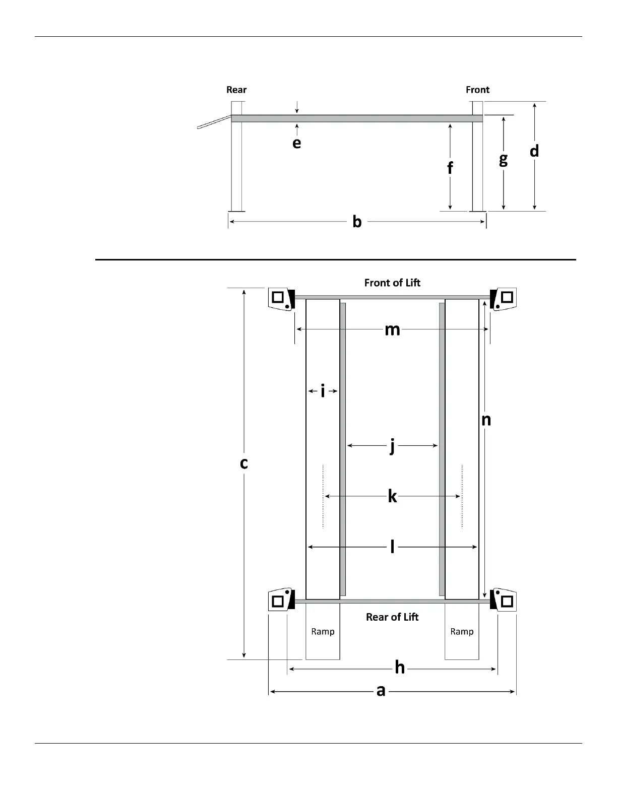
Specifications
Side
View
Top
View

Related product manuals