EasyManua.ls Logo

Data Aire LCS - Field Piping, Remote Condenser; Field Piping, Remote Condensing Unit

Data Aire LCS
40 pages
Print Icon
To Next Page IconTo Next Page
To Next Page IconTo Next Page
To Previous Page IconTo Previous Page
To Previous Page IconTo Previous Page
Loading...
11
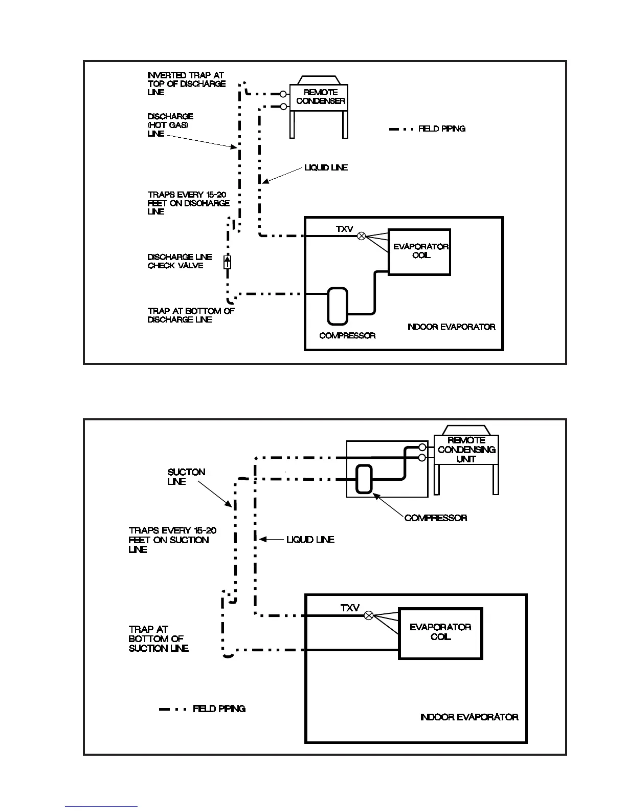
2.1.5 Field Piping, Remote Condenser
2.1.6 Field Piping, Remote Condensing Unit

Table of Contents

Related product manuals